Horizon-8EE.pdf - 第5页
5 DEK Horiz on 8 EE Machine Product ivity Options Proc ess Specification Print Met hod Paste roll height monito r Stencil Fra me VectorGuard® Stencil Posit ioning Semi auto matic lo ading inc orpor ating sque egee dri p …

4
DEK Horizon 8EE
Machine Standard Configuration
Operating Environment
Specification
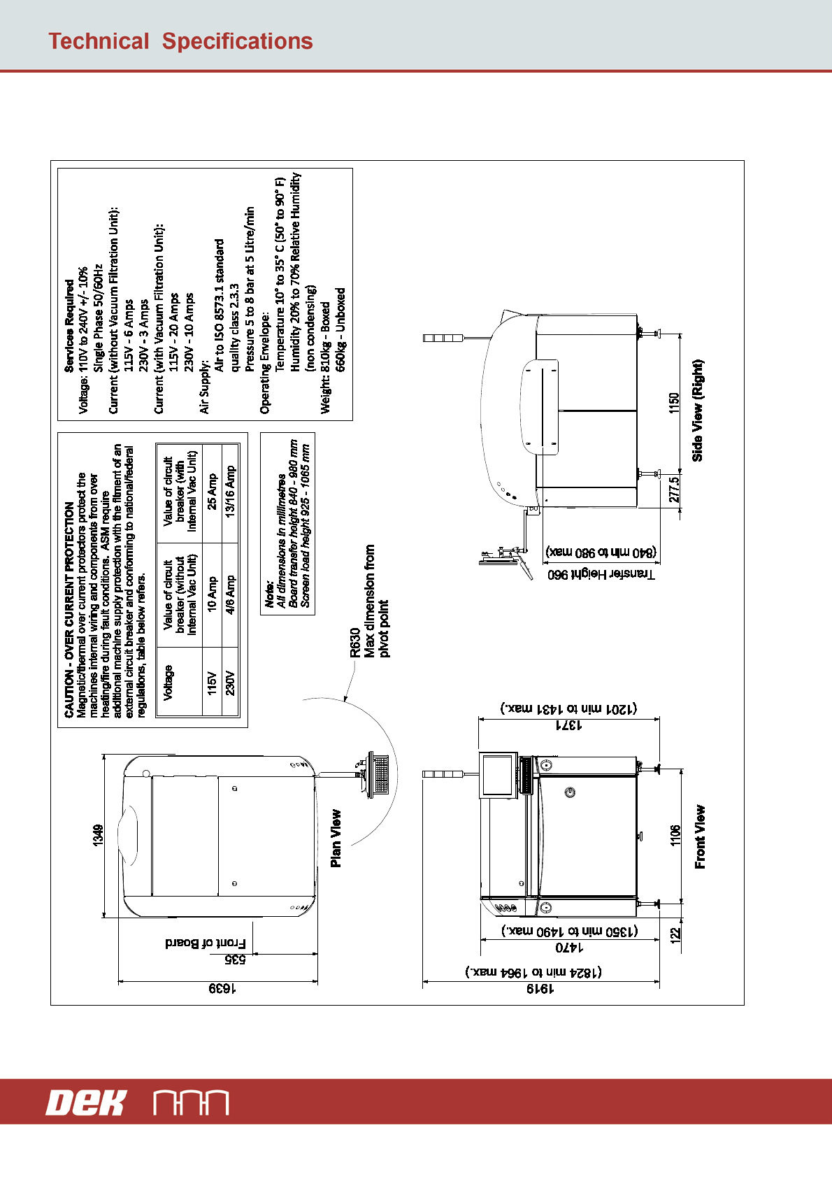
Temperature
10° to 35° C (50° to 95° F)
Humidity
30% to 70% relative humidity (non-condensing)
Services
Specification
Voltage
100 Volts to 240 Volts +/- 10%. Single phase 50/60Hz
Maximum Current at 115V
20 Amps with vacuum pump
6 Amps without vacuum pump
Maximum Current at 230V
10 Amps with vacuum pump
3 Amps without vacuum pump
Over Current Protection
An external circuit breaker ≤ 25 Amps is required to be fitted in line with the
machine supply
Air Supply
To ISO 8573.1 Standard Quality Class 2.3.3
Pressure 5 bar to 8 bar
General usage 5 litres/minute at 5 bar to 8 bar
Maximum usage 226 litres/minute at 6 bar
Shipping Information
Specification
Approximate Weight
790kg boxed (dependent upon configured options selected with machine)
630kg unboxed (dependent upon configured options selected with machine)
Approximate Dimensions
2060mm x 1500mm x 1570mm (81.1” x 59” x 61.8”)
Certification
Specification
CE
98/37/EC
89/336/EEC
73/23/EEC
Subsequent amendments
Acoustic Noise Level
Less than 70dB 2003/1/EC

5
DEK Horizon 8EE
Machine Productivity Options
Process
Specification
Print Method
Paste roll height monitor
Stencil Frame
VectorGuard®
Stencil Positioning
Semi automatic loading incorporating squeegee drip tray*
Vacuum Assist for Under Stencil Cleaner
Venturi vacuum unit
* Need to remove drip tray when using ProActiv
Transport
Specification
Substrate Support
Vacuum tooling capability
Vacuum tooling sensor
Vacuum cups
Grid-Lok® Tooling
Substrate Fixture
Foil-less clamps
250mm over the top clamps
Snuggers (edge clamping)
Cycle Time Improvement
10 seconds to 8 seconds
Vision
Specification
HawkEye®750 Functionality
Enabled
Software & Communications
Specification
Statistical Process Control
On board, reported via operator interface (QC-CALC)
Handling & Cleaner Options
Specification
Under Stencil Cleaning
Blue large board cleaner (600mm)
Substrate Handling Size (maximum)
620mm (X) x 508.5mm (Y) – Long Board Option
Data Capture
Specification
Product Data Capture
ProDEK closed loop
Other
Specification
MMI
Left hand side

6
DEK Horizon 8EE
Machine Footprint