ThermoFlex-Manual.pdf - 第37页
Section 2 ThermoFlex 2-19 Thermo Scientific Shipping crate dimensions (approximate): 62" (157 cm) wide 78" (198 cm) tall 48" (122 cm) deep T op View Rear View 5 9 / 16 " 14.2 8 1 / 16 " 20.5 25&qu…

Section 2
2-18 ThermoFlex
Thermo Scientific
48
15
/
16
"
124.4
6"
15.2
34
5
/
8
"
88.0
46
1
/
2
"
118.1
30
15
/
16
"
78.6
16
13
/
16
"
42.7
2
5
/
8
"
6.6
6
1
/
16
"
15.4
ThermoFlex15000/20000/24000
Dimensions
(inches/centimeters)
Front View
Side View
For ThermoFlex24000
Air-Cooled Chillers
58
5
/
8
"
148.9
• Thermo Fisher Scientic reserves the
right to change specications without
notice.

Section 2
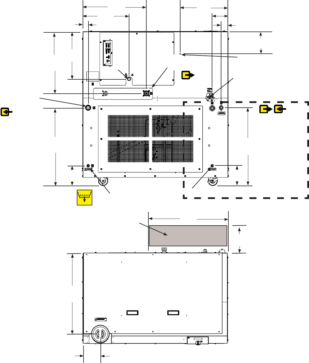
ThermoFlex 2-19
Thermo Scientific
Shipping crate dimensions
(approximate):
62" (157 cm) wide
78" (198 cm) tall
48" (122 cm) deep
Top View
Rear View
5
9
/
16
"
14.2
8
1
/
16
"
20.5
25"
63.5
The applicable options t
within this envelope, see
Section 5.
25
7
/
8
"
65.7
Process Return
1" FNPT Stainless Steel
2
1
/
4
"
5.7
7"
17.8
20
1
/
8
"
51.1
15
1
/
16
"
38.3
5
1
/
16
"
12.9
14
11
/
16
"
37.3
15
1
/
4
"
38.8
24
5
/
8
"
62.8
24
5
/
8
"
62.8
19
13
/
16
"
50.3
6
5
/
16
"
16.0
6
5
/
16
"
16.0
1
3
/
4
"
4.4
Facility water
connections
Supply
Cast Bronze 3/4" FNPT
Return
Stainless 3/4" FNPT
Facility drain 1/4" FNPT
Process drain 1/4" FNPT
Optional 1/4" FNPT
Auto-Rell Port
Process drain valve
Process Discharge
1" FNPT Wrought Iron
DRAIN
Water-cooled only
Power
Inlet
ThermoFlex15000/20000/24000
• Thermo Fisher Scientic
reserves the right to change
specications without notice.
Section 2
2-20 ThermoFlex
Thermo Scientific