Q4X3C-E-MPA-45.pdf - 第26页
1-B 本体部 Main Body パーツレイアウト Kit No. キット品 番 Kit Name キット名称 KXFX045AA00 セクションNo. PARTS LAYOUT Section No. M3

Ref
No.
Remarks
R
1
Q't
y
1-A
本体部
Main Body
イラスト
No.
Part No.
品 名品番 数量
R
2
パーツリスト
Kit No.
キット品
番
Kit Name
キット名称
KXFX045AA00
Part Name
備 考
セクションNo.
PARTS LIST
Section No.
R
3
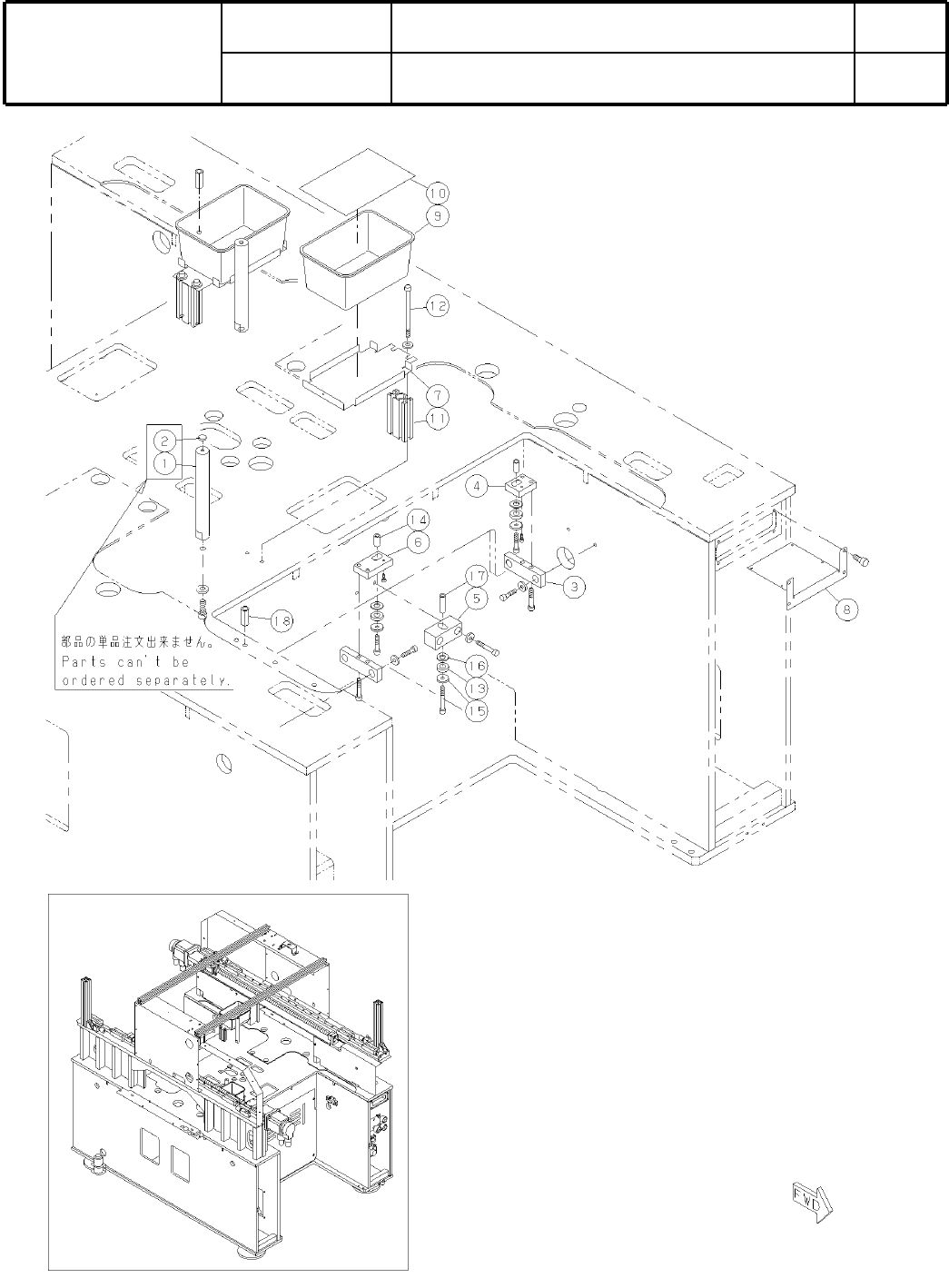
FRAME
1
1 KXFB09YVB00
BOLT
4
2 KXFB05CGA01
PLATE
4
3 N210009258AA
BLOCK
2
4 N210004918AA
COLLAR
4
5 KXFB05CKA01
BLOCK
2
6 KXFB09WHB00
COVER
3
7 N210018280AA
COVER
1
8 N210018282AA
COVER
1
9 N210018289AA
BRACKET
1
10 KXFB02NSA00
SADDLE
2
11 KXF0A4TAA00 FCD13
SCREW
17
12 N510018305AA
Cross recessed Truss head machine screw M6X10-4.8 A2S (Trivalent)
NUT
4
13 N510017920AA
Hexagon nut Type-3 Best class M30-6H-4T A2J (Trivalent)
WASHER
4
14 N510018511AA
Round finish plain washer 30 10H A2J (Trivalent)
URETHANE
4
15 KXF0CX7AA00 AN25-30
FILTER
1
16 KXF0DKLAA00 PS/300(DA 0DKLA)
PIN
3
17 KXF0CXKAA00 1017003-60012
LOCK
2
18 KXF09H6AA00 C-555-50
NUT
4
19 N510017897AA
Hexagon nut Type-3 Best class M12-6H-4T A2J (Trivalent)
WASHER
4
20 KXF0CPDAA00 WSSB25-12-2
SCREW
4
21 XXF12C50FT
Hexagon socket set screw Flat point M12X50-45H SOB
M2

1-B
本体部
Main Body
パーツレイアウト
Kit No.
キット品
番
Kit Name
キット名称
KXFX045AA00
セクションNo.
PARTS LAYOUT
Section No.
M3

Ref
No.
Remarks
R
1
Q't
y
1-B
本体部
Main Body
イラスト
No.
Part No.
品 名品番 数量
R
2
パーツリスト
Kit No.
キット品
番
Kit Name
キット名称
KXFX045AA00
Part Name
備 考
セクションNo.
PARTS LIST
Section No.
R
3
SHAFT
2
1 KXFB02GCB01
TARGET
2
2 KXFB03KAA01
PLATE
4
3 KXFB02GLA00
PLATE
2
4 KXFB02GMA01
BLOCK
2
5 KXFB02GNA00
PLATE
2
6 KXFB02GPA01
BRACKET
2
7 KXFB09VDA00
BRACKET
1
8 N210096318AA
TRAY
2
9 KXF0CGAAA00 195391A-62
SHEET
2
10 KXF0DKNAA00 Hanenite sponge sheet(DA 0DKNA)
FRAME
2
11 N510001361AA SFF-244 L=77
BOLT
4
12 N510017461AA
Hexagon socket head cap screw M6X95-10.9 A2J (Trivalent)
WASHER
6
13 KXF0CP7AA00 URWH20-10-5
COLLAR
4
14 KXF0CP3AA00 NCLB6-10-18.5
WASHER
6
15 KXF0CPBAA00 WSSB20-6-3
WASHER
6
16 KXF0CXCAA00 WSSB20-10-2
COLLAR
2
17 KXF0CXDAA00 NCLB6-10-31.5
PIN
2
18 KXF0CXMAA00 1017003-80020
M4