JM-100-Rev02.pdf - 第51页
- 46 - NOTE( 注記 ) *INSTALLATION POSITION AND DIRECTION VARY IF THE PWB TR ANSFER REFERENCE IS DIFFERENT. 基板搬送基準が異なると取付位 置、方向が変わります。 REF.NO NOTE PART NO D E S C R I P T I O N 品 名 Qty 1 401-37176 CONVEYOR_RAIL_R_A SM 搬送レール…

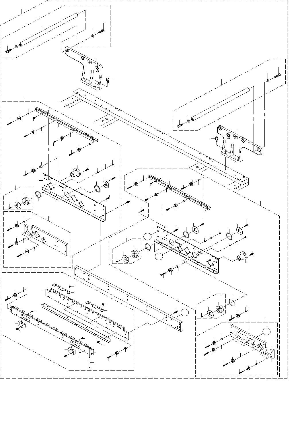
- 45 -
23.PWB CONVEYOR COMPONENTS (2)
基板搬送関係(2)
5
8
9
9
8
7
6
4
35
37
45
47
43
1
B
46
44
2
40
41
38
39
49
48
37
36
49
48
17
4
31
28
31
29
24
3
14
16
18
22
23
21
10
10
30
27
26
25
21
20
19
12
13
7
9
8
7
11
15
42
43
42
34
32
33
34
32
33
30
50
52
51
53
85
84
90
91
89
92
91
93
71
55
57
73
74
57
73
74
89
92
87
96
90
91
91
93
86
88
84
83
85
83
79
69
70
54
54
63
62
95
54
68
67
66
65
54
77
76
78
77
76
78
76
78
77
78
60
75
65
64
61
62
63
80
77
82
94
56
69
70
66
67
68
61
58
59
60
81
76
72
A
B
A

- 46 -
NOTE( 注記 ) *INSTALLATION POSITION AND DIRECTION VARY IF THE PWB TRANSFER
REFERENCE IS DIFFERENT.
基板搬送基準が異なると取付位置、方向が変わります。
REF.NO NOTE PART NO D E S C R I P T I O N
品 名
Qty
1 401-37176 CONVEYOR_RAIL_R_ASM
搬送レールR組
1
2 SL-6041092-TN SCREW M4 L=10
座金付き六角穴ボルト M4 L=10
(10)
3 SL-6041292-TN SCREW M4 L=12
座金付き六角穴ボルト M4 L=12
(4)
4 401-37178 RAIL_PLATE_RL_ASM
レールプレートRL組
(1)
5 401-37179 SUPPORT PLATE RL ASM
サポートプレートRL組
(1)
6 401-36815 SUPPORT_PLATE_RL
サポートパネルRL
(1)
7 E2111-715-0A0 CONVEYOR PULLEY ASM.
搬送プーリ(組)
(3)
8 WP-0430800-SC WASHER M4
平座金小形丸 M4
(3)
9 SM-4040855-SC SCREW
なべ小ねじ M4 L=8
(3)
10 SM-4040855-SC SCREW
なべ小ねじ M4 L=8
(2)
11 E2089-721-0A0 CONVEYOR PULLEY B ASM.
搬送プーリB組
(1)
12 E2055-721-000 PULLEY SPACER
プーリスペーサ
(1)
13 SM-4042501-SC SCREW M4X0.7 L=25
なべ小ねじ M4X0.7 L=25
(1)
14 WP-0430801-SC WASHER M4
平座金 M4
(1)
15 WS-0410002-KN SPRING WASHER M4
ばね座金 M4
(1)
16 NM-6040001-SC NUT M4X0.7 TYPE1
六角ナット M4X0.7 1種
(1)
17 400-00839 DRIVE PULLEY R ASM
ドライブプーリR組
(1)
18 400-00840 DRIVE PULLEY R
ドライブプーリR
(1)
19 E2160-721-000 PULLEY FLANGE
プーリフランジ
(1)
20 SL-6030892-TN SCREW M3 L=8
座金付き六角穴ボルト M3 L=8
(3)
21 E3931-750-000 PULLEY WASHER
プーリスラストワッシャ
(2)
22 E2160-721-000 PULLEY FLANGE
プーリフランジ
(1)
23 SL-6030892-TN SCREW M3 L=8
座金付き六角穴ボルト M3 L=8
(3)
24 SB-8200001-00 BEARING
ころがり軸受
(2)
25 401-36813 RAIL_PLATE_RL
レールプレートRL
(1)
26 401-38183 CONVEYOR_RAIL
搬送レール
(1)
27 SL-6031492-TN SCREW M3 L=14
座金付き六角穴ボルト M3 L=14
(4)
28 SM-6051002-TN SCREW
六角穴ボルト
(8)
29 SL-6041092-TN SCREW M4 L=10
座金付き六角穴ボルト M4 L=10
(2)
30 E2111-715-0A0 CONVEYOR PULLEY ASM.
搬送プーリ(組)
(2)
31 WP-0430800-SC WASHER M4
平座金小形丸 M4
(2)
32 401-38303 RESIST_LIGHTEN_ROLLER_ASM
レイジストライテンローラ組
(2)
33 WP-0430800-SC WASHER M4
平座金小形丸 M4
(2)
34 SM-4041601-SC SCREW M4X0.7 L=16
なべ小ねじ M4 L=16
(2)
35 401-37177 CONVEYOR_RAIL_RC_ASM
搬送レールRC組
(1)
36 401-38179 CONVEYOR_RAIL_FC
搬送レールFC
(1)
37 SL-6041092-TN SCREW M4 L=10
座金付き六角穴ボルト M4 L=10
(4)
38 400-00812 RAIL GUIDE SHAFT
レールガイドシャフト
(2)
39 SM-8040602-TP SCREW M4X0.7 L=6
止めねじ
(2)
40 401-10109 SAFETY BAR
安全バー
(2)
41 SL-6040892-TN SCREW M4 L=8
座金付き六角穴ボルト M4 L=8
(4)
42 E2123-721-000 PWB GUIDE PLATE F
基板ガイドプレートF
(4)
43 SL-6030892-TN SCREW M3 L=8
座金付き六角穴ボルト M3 L=8
(12)
44 E2111-715-0A0 CONVEYOR PULLEY ASM.
搬送プーリ(組)
(4)
45 WP-0430800-SC WASHER M4
平座金小形丸 M4
(4)
46 SM-4040855-SC SCREW
なべ小ねじ M4 L=8
(4)
47 401-36825 RAIL_GUIDE_R
レールガイドR
(1)
48 E4105-729-0A0 SHAFT SUPPORT B ASM.
シャフトサポート組
(2)
49 SM-8030302-TP SCREW M3X3
止めねじ M3X3
(2)
50 401-38303 RESIST_LIGHTEN_ROLLER_ASM
レイジストライテンローラ組
(2)
51 401-38182 ROLLER_SPACER
ローラスペーサ
(2)
52 SM-4041601-SC SCREW M4X0.7 L=16
なべ小ねじ M4 L=16
(2)
53 401-37180 RAIL_PLATE_RR_ASM
レールプレートRR組
(1)
54 E3931-750-000 PULLEY WASHER
プーリスラストワッシャ
(4)
55 401-38183 CONVEYOR_RAIL
搬送レール
(1)
56 SB-8200001-00 BEARING
ころがり軸受
(2)
57 SM-4040855-SC SCREW
なべ小ねじ M4 L=8
(2)
58 E2089-721-0A0 CONVEYOR PULLEY B ASM.
搬送プーリB組
(1)
59 E2055-721-000 PULLEY SPACER
プーリスペーサ
(1)
60 SM-4042501-SC SCREW M4X0.7 L=25
なべ小ねじ M4X0.7 L=25
(2)
61 WP-0430801-SC WASHER M4
平座金 M4
(2)
62 WS-0410002-KN SPRING WASHER M4
ばね座金 M4
(2)
63 NM-6040001-SC NUT M4X0.7 TYPE1
六角ナット M4X0.7 1種
(2)
64 SM-6051002-TN SCREW
六角穴ボルト
(8)
65 400-00839 DRIVE PULLEY R ASM
ドライブプーリR組
(2)
66 400-00840 DRIVE PULLEY R
ドライブプーリR
(1)
67 E2160-721-000 PULLEY FLANGE
プーリフランジ
(1)
68 SL-6030892-TN SCREW M3 L=8
座金付き六角穴ボルト M3 L=8
(3)
69 SL-6030892-TN SCREW M3 L=8
座金付き六角穴ボルト M3 L=8
(6)
70 E2160-721-000 PULLEY FLANGE
プーリフランジ
(2)
71 SL-6031492-TN SCREW M3 L=14
座金付き六角穴ボルト M3 L=14
(4)
72 SL-6041092-TN SCREW M4 L=10
座金付き六角穴ボルト M4 L=10
(2)
73 E2111-715-0A0 CONVEYOR PULLEY ASM.
搬送プーリ(組)
(2)
74 WP-0430800-SC WASHER M4
平座金小形丸 M4
(2)
75 401-37181 SUPPORT PLATE RR ASM
サポートプレートRR組
(1)
76 E2111-715-0A0 CONVEYOR PULLEY ASM.
搬送プーリ(組)
(6)
77 WP-0430800-SC WASHER M4
平座金小形丸 M4
(6)
78 SM-4040855-SC SCREW
なべ小ねじ M4 L=8
(6)
79 401-36816 SUPPORT_PLATE_RR
サポートパネルRR
(1)
80 E2111-715-0A0 CONVEYOR PULLEY ASM.
搬送プーリ(組)
(1)
81 WP-0430800-SC WASHER M4
平座金小形丸 M4
(1)
82 401-36814 RAIL_PLATE_RR
レールプレートRR
(1)
83 401-38303 RESIST_LIGHTEN_ROLLER_ASM
レイジストライテンローラ組
(2)
84 SM-4041201-SC SCREW M4X0.7 L=12
なべ小ねじ M4X0.7 L=12
(2)
85 WP-0430800-SC WASHER M4
平座金小形丸 M4
(2)
86 SL-6052092-TN SCREW M5 L=20
座金付き六角穴ボルト M5 L=20
(2)
87 401-36817 RAIL_STAND_RL
レールスタンドRL
(1)
88 SL-6052092-TN SCREW M5 L=20
座金付き六角穴ボルト M5 L=20
(2)
89 401-37167 GUIDE_SHAFT_ASM_L
ガイドシャフト組L
(4)
90 SL-6052042-TN SCREW
座金付き六角穴ボルト
(1)
91 WP-0501046-SC WASHER 5 X 14 X 1
平座金 5X14X1
(2)
92 401-36819 GUIDE_SHAFT_L
ガイドシャフトL
(1)
93 SL-6051292-TN SCREW M5 L=12
座金付き六角穴ボルト M5 L=12
(1)
94 SL-6041292-TN SCREW M4 L=12
座金付き六角穴ボルト M4 L=12
(4)
95 401-46998 CONVEYOR_SUPPORT_PLATE
搬送サポートプレート
(1)
96 401-36818 RAIL_STAND_RR
レールスタンドRR
(1)

- 47 -
24.PWB CONVEYOR COMPONENTS (3)
基板搬送関係(3)
36
35
31
1
21
21
21
16
4
26
3
14
11
7
6
30
18
17
26
30
18
17
26
35
20
20
33
34
32
2
17
18
30
19
22
24
23
25
26
28
27
14
10
13
5
24
5
6
19
8
10
28
8
22
22
11
7
29
23
25
19
15
12
15
24
23
25
26
26
9
27
9
28
27
12