NPM-D3A 电路图.pdf - 第234页
4 3 2 1 PS-ON J1 NBC-7153-01 Panasonic Factory Solutions Co.,Ltd. パナソニック ファクトリーソリューションズ株式会社 Name Drawing No. Loc. No. F4K1020-05A 1 2 3 4 5 6 7 8 A B C D E F 1 2 3 4 5 6 7 8 A B C D E F Page. No. NBC-7153-01 SET UP DIAGR…

Servo Driver
1
0
2
3
MSD
1
0
2
3
4
5
9
8
7
6
LSD
COM COM LINK
X4
X3A
X3B
X1
X3 X5
X6
Axis ID MSD LSD
FY 0 1
RY 0 3
-K502
-K504
X2
Panasonic Factory Solutions Co.,Ltd. パナソニック ファクトリーソリューションズ株式会社
Name
Drawing No.
Loc. No.
F4K1020-05A
1
2 3 4 5 6 7 8
A
B
C
D
E
F
1 2 3 4 5 6 7 8
A
B
C
D
E
F
Page. No.
MEDDT7364N09
SET UP DIAGRAM
MEDDT7364N09+001AA

4 3 2
1
PS-ON
J1
NBC-7153-01
Panasonic Factory Solutions Co.,Ltd. パナソニック ファクトリーソリューションズ株式会社
Name
Drawing No.
Loc. No.
F4K1020-05A
1
2 3 4 5 6 7 8
A
B
C
D
E
F
1 2 3 4 5 6 7 8
A
B
C
D
E
F
Page. No.
NBC-7153-01
SET UP DIAGRAM
NBC-7153-01+001AA

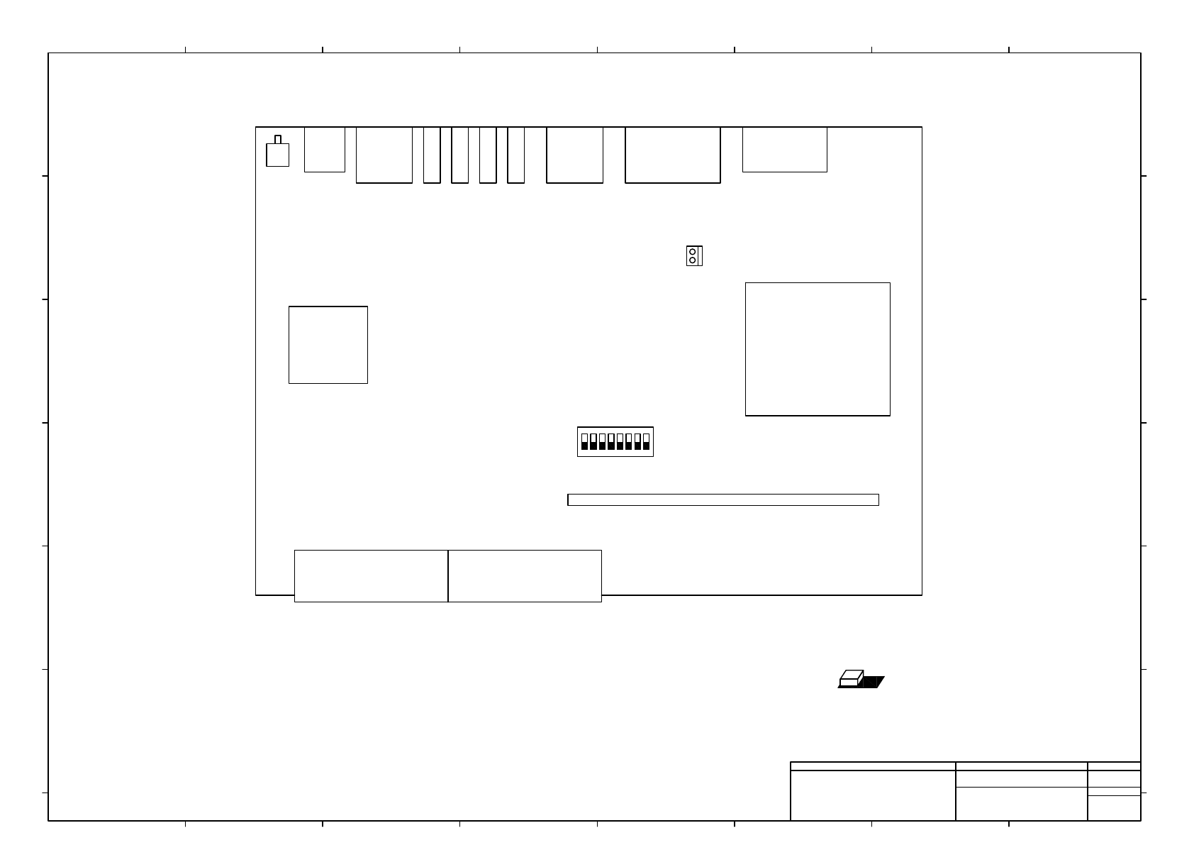
ON
8
1
Memory-Card
2 3 4 5 6 7
CPU
CF
NBC-JC155X-D7
SW1
LAN1
LAN2
CN7
CN6
CN5
CN4
CN8
CN9
100M
100M/1G
RST
USB4
USB3
USB2
USB1
CN2
CN1
COM2
COM1
CN3
CRT
MOUSE
KB
J20
Note : White part means a convex part of Dip switch.
Panasonic Factory Solutions Co.,Ltd. パナソニック ファクトリーソリューションズ株式会社
Name
Drawing No.
Loc. No.
F4K1020-05A
1
2 3 4 5 6 7 8
A
B
C
D
E
F
1 2 3 4 5 6 7 8
A
B
C
D
E
F
Page. No.
CPU BOARD
SET UP DIAGRAM
NBC-JC155X-D7+001AA