hsdx_e.pdf

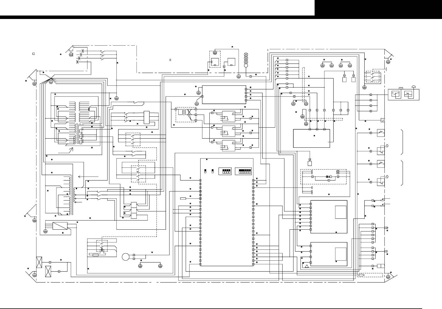
HSD-X KV6 0601 Contr ol Wiring Diagram

100%1 / 11
HSD-X
KV6 0601
Control Wiring Diagram
HSD-X (KV6)
Over view
Control box
I/O head
I/O conveyor unit -A-
I/O conveyor unit -B-
Power transformer terminal
Air circuit
Wiring parts list
Table of contents
Con dential & Proprietary
PAGE
1
HSD-X (KV6)
Con dential & Proprietary
KV6-000-CN1
Over view
POWER SOURCE
3~50/60Hz
KM10
23 24
13 14
A1 A2
R
S
T
>2.5sq
W50
V50
U50
W51
V51
U51
0V
190V
200V
208V
220V
240V
0V
190V
200V
208V
220V
240V
0V
200V
208V
220V
240V
0V
190V
200V
208V
220V
240V
0V
190V
200V
208V
220V
240V
0V
190V
200V
208V
220V
240V
190V
N
S1
R1
T1
U20
U10
U21
S1
R1
NOTE1
U21
V10
V10
V10
V10
V10
V10
XT21
U60
V60
U61
V61
V10
V10
W51
V51
U51
W52
V52
U52
V54
U54
5
3
1
KM10
2
4
6
W52
V52
U52
W54
200/208/220/240
NOTE1
PE
V10
V10
V10
380/400/416V 10%
L1
L2
L3
CRT1
ROBOT
CRT2
VISION
12
34
56
MAIN SWITCH
U1A/V10
XS11
AC 100V
1A MAX
SERVICE
CONCENT
AC IN
CONNECTION BOARD
CNF1
CNF2
CNF3
CNF4
CNF5
CNF6
CNF7
CNF13
CNF10
CNF11
CV ACIN
CV JP1
CV JP2
CMTR1
CNF32
CNF33
CNF34
CNF12
CNF30
FAN2
FAN1
SB13
READY SW
PROG.UNIT ASSYA3
A1 CONTROL BOX ASSY(MCX2)
CN5
I/O1
I/O2
CONTROL
BOX ASSY
CONVEYOR1 H
CONVEYOR1 L
CONVEYOR
SPEED
ADJUSTMENT
CONV1 FG
FLEXIBLE
X-FRAME
X-FRAME
See Page 2
I/O HEAD
CV1H
CV1L
I/O
RIGHT
DUCT X
+24V CN5
SERIAL1
CNX1
C1
CNF15
CNF16
CNF18
CNF21
CNF31
CNF24
CMTR2
C1
C2
CNF8
CNF9 CONTACTA2
CONTACTA1
YPU/HHK
PATLITE
EPW1
EPW2
EPW3
FRONT PANEL
EMG2/2A
EMG1B/1C
FRONT SIDE
REAR SIDE
S1 S2
U11
U1A
V10
U11
NOTE1: This DIAGRAM shows 200V.
See PAGE 6.
F AREA
See PAGE 4
EMG1D/1E
EMG2C/2D
SENSOR PWR
LED DRIVER
S1
R1
CN2 (DC24V IN)
CN6 (EMG)
CNX1 (COMU1)
CNX2 (COMU2)
CN7 (DI1)
CNX1_A
CNX1Z (COMU1)
CN2 (DC24V IN)
CN7 (DI1)
CNX2_A
CNX1_B
CONV
I/O
A
CONV
I/O
B
CN2_A
CN2_B
CN6_A
BUSY IN/
HOUR METER
CN7_B
CN7_A
N1115
CN8 (EMG/INT)
CN8_A
See PAGE 4
See PAGE 5
See PAGE 3
N1012
LEFT
CN5
HCN5
HCN5
Y1OT Y1ORG
CN3 (ORG/OT)
CN3_A
W1ORG
HCN5
Y1OT/
Y1ORG
Y1OT/
Y1ORG
FLEXIBLE
+24V
+24VH/+24V
CNX1
I/O
I/O H2
I/O H1
CN15_A
CN15 (DO5)
N1113
F.AREA
R.AREA
YPU/READY
EMG
+24V
CMN1
+EMG
FAN/
+EMG
FAN/
CM1
TG1
H1
H2
H3
DUCT Y
H001 H003H002
U20
V10
V10
U20
DIS.POW
I/O I/O
CONV1
H
CONV1
L
N1120
I/O PWR
I/O PWR TF
Y1 OT CNF35
CNF40
R.FDR1
R.FDR2
F.FDR2
F.FDR1
N1006
N1005
T1833
N1116
T1831
T1837
T1822
CNF50
CNF37BP OUT
CONV VR
I/O CVA1
+24V IN
220V
220V
200V
220V
200V
W50
V50
U50
U60
V60
U2A
SENS/H1
SENS/H2
SENS/H3
T1832
N1117
53 54
61 62
73 74
83 84
KM10A
EMG7
T1821B
V61
U61 U62
EMG6
+24VC
V62
U21
220V
200V
100V
0V
240V
220V
208V
200V
190V
0V
240V
220V
208V
200V
190V
0V
S4
CNF47BUZZER
CNF14 SERVICE KEY
I/O CVA3 CNF38
BA OUT/
UR OUT/
LR IN/
COUNT RESET
BUSY OUT/
BA IN/
UR IN/
LR OUT
H1
H2
H3
Rating 4kVA MAX.
I/O CVA2
S3
CNF19 OPTION +24V
CNF20 OPTION DO
EMG OPCNF25
CNF26
CNF27
CNF28
CNF29
TF1
TF2
TF3
FAN1
FAN 2
CNF39S.P LAMP
CNF41
FEEDER PWR CNF42
TF5 CNF43
TF6 CNF44
EMG SPARE CNF45
OP FEEDER PWR CNF46
EMG CNF48
TF4 CNF49
NEXT
INTERFACE
PREVIOUS
INTERFACE
EMG
See PAGE 2
T1823A
CN2
CN2
0V
AC200V
CN4_B
1
DIS.POW
+24V
FG
0V
+24V +24E
EMG7 EMG6
EMG7 0V
1
2
AC15V
AC15V
AC15V
5
4
9
10
3
2
1 6
7
5
4 9
10
3
2
1 6
7
4
2
3
1
6
5
E
5
4 9
10
3
2
1 6
7
J51
J77
J78
J79
J22
J170
J80
J168
J81
J203
J82
J43
J181
J83
J171
J259
J161
J84
J172
J101
J85
J203
J220
PT1
J86
J168
J87
J41
J201
J88
J102
J222
J602
J220
J202
J91
J606
J102
J90
J610
J41
J92
TU1
THERMO UNIT
P.IN
OUT
ALM
+
-
J605
J260
J101
J109
J607
J167
J608
SB11
EMG SWITCH
J603
J114
SB12
EMG SWITCH
J14
J167
J108
SQ150
COVER
LIMIT SW
J609
J49
SQ151
COVER
LIMIT SW
J4
J50
J15
J11
GS21
DC24V 14A
+24V
0
N
FG
L
J163
QF23 5A
J65
QF21 3A
J165
J66
J67
J164
J166
J113
TC11 750VA
I01141
KV6TRNS
J16
J63
J19
I01143
KV6CTRL
J220
J24
TU1
THERMO UNIT
P.IN
OUT
ALM
+
-
P40
BUZZER
T1830
B
J223
CONV I/O B
KV6CONVB
TC12
AC15 2.1A
J224
CONV I/O A
KV6CONVA
J154
J161
I/O HEAD
KV6IOH
J155
J181
J220
J32
QF32 2A
J33
NF11
J34
J35
J37
QF11 set13A
J68
QF31 10A
J38
S10
J39
P22
J18
P23
J21
1234
ON
OFF
56
QF25 0.5A
J21
J219
J11
HL11
ALARM (RED)
ERROR (YELLOW)
RUN (GREEN)
T1821
T1820
T1822
J203
J612
J32
P21
J604
J3
J611
J37
J601
J11
J219
J11
J38
J11
M12
CONVEYOR
MOTOR 1
J39
J47
J68
J613
J44
J41
1234
ON
OFF
J29
J26
B
A
J48
TM11 2.48KVA
W
V
U
J22
J24
J167
J61
J62
J68
J3
J49
J50
QS11
R
S
T
R1
S1
T1
J68
J26
J58
J68
J58
TU1
THERMO UNIT
P.IN
OUT
ALM
+
-
J203
J68
J24
C
D
J170
J73
J29
J71
J41
J72
QF22 1A
SQ05
Y1OT
SQ01
Y1ORG
J74
J52
J48
J30
SQ02
W1ORG
J63
J219
J89
PU AXIS BRAKE