RS-1_OPE.pdf - 第12页
操作手册 1-2 1-1- 4 简称说明 简 称 意 义 中文 英文 AT C 自动工具 更换 装置 (Aut o T ool Ch anger ) CVS 元件验证 系统 (C o m p onent V er if ic ation Syst em ) EPU 外部编程装置 (Ex ternal Pr og rammi ng Unit ) ETF 电动式带式供料器 ( Elect ric Ta p e Feeder ) HMS 高度…

操作手册
1-1
第
1
章
装置概要
1-1 本装置概要
1-1-1 前言
本书是 RS-1 设备的生产操作入门书。
学习本书内容,即可使用已编成的生产程序,进行基板生产。
生产的详细信息,收录在附件 CD『RS-1 使用说明书』中。
1-1-2 关于标记
● 菜单、命令等用括弧「 」标记。
菜单名连续时用 “/” 标记。
例:「文件」/「打开」
● 固有名词用括弧“ ”标记。
● 按键用[ ]标记。
例:[ESC]、[ENTER]
● 手册名用『 』标记。
例 :『 RS-1 使用说明书』
● 多个有关联的名称用“/”标记,文字共同部分省略。
例:Windows 7 及 Windows 10 → Windows 7 / 10
1-1-3 本书的构成
● 第 1 章 设备的概要
对本设备的构成及概要,进行介绍。
● 第 2 章 作业步骤
对从接通电源到生产的流程,进行说明。
● 第 3 章 生产时的各项处理
对生产时发生频度较高的各种错误、原因、对策方法,进行说明。
● 第 4 章 生产时的错误处理/暂停
本节就生产中发生错误时的处理,以及暂停后的处理进行说明。
● 第 5 章 故障排除
元件的贴片位置偏移、贴片角度偏移等的处理方法。
本书是 RS-1 设备的生产操作入门书。
本书未刊载的内容,请参见附件 CD『RS-1 使用说明书』。

操作手册
1-2
1-1-4 简称说明
简 称
意 义
中文 英文
ATC 自动工具更换装置 (Auto Tool Changer)
CVS 元件验证系统 (Component Verification System)
EPU 外部编程装置 (External Programming Unit)
ETF 电动式带式供料器 (Electric Tap e Feeder)
HMS 高度测量装置 (Height Measurement System)
IS Lite IS Lite IS Lite
IFS-NX 智能供料器系统 (Intelligent Feeder System)
LNC 激光校准新概念 (Laser align New Concept)
MTS 矩阵托盘服务器 (Matrix Tray Server)
OCC 位置校正摄像机 (Offset Correction Camera)
PWB 基板 (Printed Wiring Board)
S-VCS 高速不间断图像识别 (Scanning Vision Centering System)
VCS 图像识别元件位置校正装置 (Vision Centering System)

操作手册
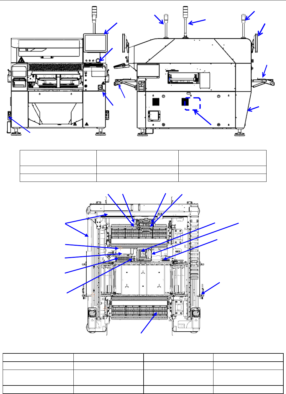
1-3
①
②
⑦
③
⑤
⑧
⑥
④
⑤
⑨
⑯
⑮
⑮
1-2 本装置的构成
①前侧液晶监视器 ④信号灯 ⑦真空泵/喷射泵
(装置内左侧)
②操作面板
⑤迷你信号灯
(OP)
⑧漏电断路器(后部
-
右侧)
③电源开关
⑥空气调节器
⑨后侧液晶监视器
(OP)
①
ATC
单元
⑤基板传送单元
⑨
CAL
块单元
⑬负载控制单元
(OP)
②LNC120 Head 单元
⑥VCS 单元
⑩供料器台架单元
⑭
共面性单元(OP)
③
Head
单元
8
贴片头
⑦
X-Y
单元
⑪
HMS
单元
⑮供料器设置单元
(
仅后部
OP)
④
OCC
单元
(L)
⑧
CVS
单元
(OP)
⑫废弃盒
⑯键盘
(OP)
①
②
③
④
⑤
⑦
⑥
⑨
⑩
⑪
⑧
⑫
⑬
⑭