TR6SNR_TR6SNV_TR6SNX-Rev04PDFA.pdf - 第15页
- 12 - NOT E( 注記 ) #01. ...F OR EN EN 用 #02....EXCEPT E N EN を 除く #03....FOR TR6SXL X, TR6 SXLX(EN) TR 6 SXLX ,TR 6 SXLX(EN)用 #04....FOR TR6SXL X, TR6 SER TR 6 SXLX,TR 6 SER 用 #05....EXCEPT TR6SXL X TR 6 SXLX を除く #06....…

- 11 -
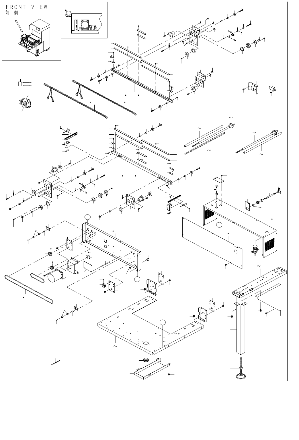
6. COVER COMPONENTS
カバー関係
1
2
33 4
557 10 8 11
12
13 12 14
12 1512 13 27
8
10 22
19 21
28 20
6
16
17
23
24
19
25
18
19
32
36
29 30
38
31
37
39
37 42
37
40
37
41
46 48
46 50 54
44 56
46 51
46
47
45 46
8
10 26
46
49
52
55
43
53
57

- 12 -
NOTE( 注記 ) #01....FOR EN EN 用
#02....EXCEPT EN EN を除く
#03....FOR TR6SXLX,TR6SXLX(EN) TR 6 SXLX,TR 6 SXLX(EN)用
#04....FOR TR6SXLX,TR6SER TR 6 SXLX,TR 6 SER 用
#05....EXCEPT TR6SXLX TR 6 SXLX を除く
#06....FOR TR6SER TR 6 SER 用
#07....FOR TR6SNV TR 6 SNV 用
REF.NO NOTE PART NO D E S C R I P T I O N
品 名
Qty
1 400-48881 X COVER
Xカバー
1
2 400-48885 X DOOR RAIL R
X ドアレール R
1
3 NM-3034000-SF FLANGE NUT
フランジナット M 3
6
4 400-48886 X DOOR RAIL L
X ドアレール L
1
5 E1524-716-000 DOOR CUSHION
ドアクション
2
6 400-48882 X DOOR
Xドア
1
7 400-48884 X DOOR BRL
X ドア BRL
1
8 NM-6040001-SC NUT M4
六角ナット M 4
11
9 WP-0430801-SC WASHER 4.3X9X0.8
平座金 4.3 X 9 X 0.8
11
10
#05
WS-0410002-KN SPRING WASHER
ばね座金 M 4
11
11 400-48883 X DOOR BRR
X ドア BRR
1
12 SB-1040005-00 ROLLING SHAFT HOLDER
ころがり軸受
4
13 400-48899 S DOOR SD
SドアSD
2
14 E4560-531-000 PM LINK SC (B) H
PM リンク SC(B)H
1
15 400-49199 X COVER LOCK SC
X カバーロック SC
1
16 E1046-717-000 X COVER HANDLE
X カバーハンドル
1
17 SM-0040601-SC SCREW M4X0.7 L=6
トラス小ねじ M 4 X 0.7 L =6
2
18
#01
E2420-723-000 X SAFETY SW STAY
X セーフティ SW ステー
1
19 SM-6030602-TN HEX SCREW M3 X 6
六角穴ボルト M 3 X 0.5 L =6
6
20 E1572-726-000 TRAY CLAMP SHEET
トレイクランプシート
1
21 400-48900 S DOOR BR
SドアBR
1
22 400-48901 S DOOR
Sドア
1
23
#01
400-45206 COVER OPEN SW ASM
カバーオープン SW 組
1
24
#01
SL-4043091-SC SCREW M4 L=30
座金付きなべ小ねじ M 4 L =30
2
25
#01
HA-0045500-20 SWITCH
ドアスイッチ操作キー
1
26
#02
400-48717 X DOOR DOG
Xドアドグ
1
27 400-49058 DOOR SUPPORT 6S
ドアサポート6 S
1
28 SM-6030802-TN BOLT
六角穴ボルト
2
29 400-48891 DOOR 6S
ドア6 S
1
30 SL-6040892-TN BOLT
座金付き六角穴ボルト
4
31 400-48894 EMBEDDED PULLS
埋め込み取手
1
32 E1063-717-000 DOOR COVER Z
ドアカバー(Z)
1
33 SM-0041001-SC SCREW M4 L=10
トラスねじ M 4 L =10
6
34 NM-6040001-SC NUT M4
六角ナット M 4
9
35 WP-0430801-SC WASHER 4.3X9X0.8
平座金 4.3 X 9 X 0.8
6
36
#05
WS-0410002-KN SPRING WASHER
ばね座金 M 4
6
37 SM-0040601-SC MTC DOOR SW KEY BR
MTC ドア SW キー BR
26
38 400-48893 DOOR PACKING
ドアパッキン
1
39 400-48879 SIDE COVER L
サイドカバー L
1
40 400-48880 TOP COVER
トップカバー
1
41 400-48888 X SIDE COVER
X サイドカバー
1
42 400-48877 E COVER L
EカバーL
1
43 HX-0032600-0M DOME PLUG
ドーム プラグ
1
44
#01
E2411-723-000 BREAKER COVER B
ブレーカカバー B
1
45
#05
E2005-723-0A0 X COVER ASM.
Xカバー組
1
46 SM-0040601-SC SCREW M4X0.7 L=6
トラス小ねじ M 4 X 0.7 L =6
32
47 400-48878 SIDE COVER R
サイドカバー R
1
48 400-49939 XF COVER 6S SILK
XF カバー6 S シルク
1
49 400-48889 Y COVER 6S
Yカバー6S
1
50 400-48890 E COVER F
EカバーF
1
51 400-48892 E COVER R
EカバーR
1
52
#03
400-94981 S_COVER_XL
シャトルカバー_ XL
1
53
#06
400-49321 S COVER EX
SカバーEX
1
54
#01
400-98346 RETAINING WASHER M4
リテーニングワッシャ M 4
6
55
#04
SM-0040601-SC SCREW M4X0.7 L=6
トラス小ねじ M 4 X 0.7 L =6
3
56
#01
SM-0040601-SC SCREW M4X0.7 L=6
トラス小ねじ M 4 X 0.7 L =6
3
57
#07
401-18288 S COVER 10V
S カバー10 V
1

- 13 -
7. CONVEYOR UNIT
コンベアユニット
13
4
7
12
10
6
8
72
78
78
72
70
76
57
33
85
83
83
24
23
24
23
41
41
42
15
69
34
35
62
61
62
121
120
120
103
120
119
32
29
29
40
38
36
39
42
38
36
40
38
36
39
38
36
18
17
19
22
21
20
61
23
24
40
A
A
40
3
2
11
77
70
76
77
53
9
131
95
97
1 63
80
81 126
16 75
14
27
28
28
30
30
31
32
31
49
46
45
44
48
47
43
51
52
37
52
50
41
42
24
23
43
48
44
45
47
46
49
51
52
52
50
68
50
66
67
68
66
67
71
74
74
72
70
76
78
77
78
72
71
70
76
77
73
79 127
83
82
82
24
23
84
85
82
24
23
84
85
82
82
82
82
83
23
24
85
86
88
89
91
92
94
92
94
62
64
65
122
122
101
102
102
62
105
98
100
107
111
109
5
83
41
42
55
104
106
113
104
106
104
106
113
113
113
104
104
104
89
91
26
25
B
B
56
54
58
59
60
112
118
117
116
115
114
117
116
115
114
110
62
108
85
123
125
124
130
129
128
128
129
130
9 131