NPM-TT2说明书.pdf - 第106页
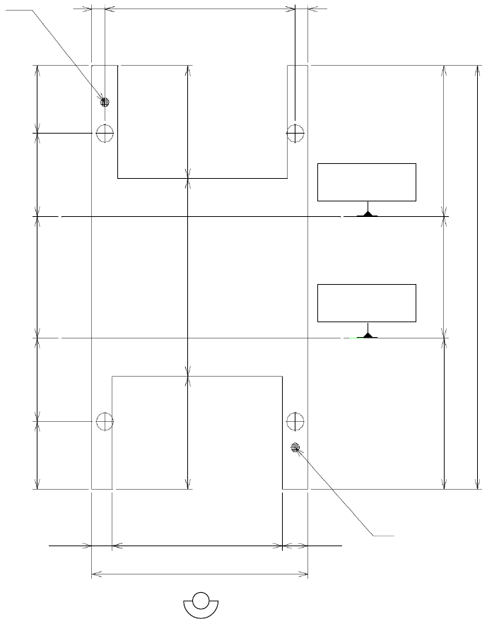
NPM-TT2 2016.0415 - 100 - ( 单位 : mm) ■ 调整螺栓的配置图 75 75 1 1 13 Air 636 470 686 470 381 1 1 16 636 686 2 388 851 993 120 150 1 263 电源 前 侧 基板传送基准 ( 前侧轨道 ) 381 851 基板传送基准 ( 后侧轨道 )

NPM-TT2 2016.0415
- 99 -
13.
尺寸图
(
单位
: mm)
Remarks
上述示图的缩小比例与实际机器在严格上讲,并不完全一致。
在研讨生产线构成和尺寸时,请另行索取资料。
本机下部如有设置通风道等时,请确保与主体间空隙保持
40 mm
以上。
前 侧
1 629
1 514
1 444
900
1 300 (传送带长度)
1 265 (罩外形)
2 798
1 056 686 1 056
1 314
托盘供料器
971 971 686
基板传送高度
基板传送基准
(前侧轨道)
基板传送基准
(后侧轨道)
13 站料架座
托盘供料器 13 站料架座
2 893
1 103.5 686 1 103.5
交换台车
交换台车
交换台车连接时 托盘供料器连接时

NPM-TT2 2016.0415
- 100 -
(
单位
: mm)
■ 调整螺栓的配置图
75 75
1 113
Air
636
470 686 470 381
1 116 636
686
2 388
851
993 120 150
1 263
电源
前 侧
基板传送基准
(
前侧轨道)
381
851
基板传送基准
(
后侧轨道)

NPM-TT2 2016.0415
- 101 -
■ 托盘供料器
(
单位
: mm)
※ 托盘供料器高度
896 mm
,是
NPM-TT2
的基板搬送高度是
900 mm
时的标准值。
可调整范围是
: 896 mm
+65
-16.5
896
※
1 052
985
873
828
480