NPM-TT2说明书.pdf - 第108页
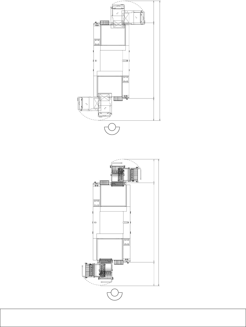
NPM-TT2 2016.0415 - 102 - 安装托盘供料器时,是必须的最小限 空间。 在维护作业时有时会卸下托盘供料器 ,所以设置机器时请必须确保以下的空间。 ( 单位 : mm) 交换台车时,是必须的最小限空间。 设置机器时请必须确保以下的空间。 Remarks 交换台车设置范围的地面倾斜,需要 台车的左右方向在 6 mm 以内,前后方向在 11 mm 以内。 地面倾斜度超过此范围时,不可搬移 交换台车。 前 …

NPM-TT2 2016.0415
- 101 -
■ 托盘供料器
(
单位
: mm)
※ 托盘供料器高度
896 mm
,是
NPM-TT2
的基板搬送高度是
900 mm
时的标准值。
可调整范围是
: 896 mm
+65
-16.5
896
※
1 052
985
873
828
480

NPM-TT2 2016.0415
- 102 -
安装托盘供料器时,是必须的最小限空间。
在维护作业时有时会卸下托盘供料器,所以设置机器时请必须确保以下的空间。
(
单位
: mm)
交换台车时,是必须的最小限空间。设置机器时请必须确保以下的空间。
Remarks
交换台车设置范围的地面倾斜,需要台车的左右方向在
6 mm
以内,前后方向在
11 mm
以内。
地面倾斜度超过此范围时,不可搬移交换台车。
前 侧
4 190
2 628 781 781
前 侧
2 628
4 154
763 763

NPM-TT2 2016.0415
- 103 -
14.
有关许可证
为了启动以下软件(选购件),需要各自的使用许可证。
PanaCIM-EE 对应
元件校对
自动机种切换
料架准备导向
上位通信
APC 系统对应
※1
其他厂家检查机界面软件
※2
支援站箱(元件校对类型)
元件供给导向
吸着错误自动恢复功能
吸着前检查(极性)
留言板
每台启动的设备都需要一个使用许可证。
对以上的软件选择,生产线中的所有设备,必须是相同的。
如果一条线中软件的使用许可证或有或无,就不能保证生产线整体的运转。
※1 每台接收 APC 补正数据的 NPM-TT2 都需要本选购件。
※2 每台接收 APC 补正数据的 NPM-TT2 都需要本选购件。(APC 系统许可证也需要相同数量。)
【重要】
为了使用以上应用软件,需要在下页的「软件的使用条件」签字同意。请必须浏览确认。
正确例子 错误例子
自动机种切换 × 3
自动机种切换 × 2
NPM-TT2
有许可证
有许可
(
前後
:
无许可证
NPM-TT2