NPM-TT2说明书.pdf - 第66页
NPM-TT2 2016.0415 - 60 - 7. 印刷基板设计基准 7.1 印刷基板规格概要 ( ) 内的数値 : 单轨模式时 项 目 规 格 基板尺寸 PC 尺寸 双轨模式 ※ 1 : 50 × 50 mm ~ 510 × 300 mm 单轨模式 ※ 1 : 50 × 50 mm ~ 510 × 590 mm M 尺寸 双轨模式 ※ 1 : 50 × 50 mm ~ 510 × 260 mm 单轨模式 ※ 1 : 50 × 50…

NPM-TT2 2016.0415
- 59 -
6.
其他标准规格
6.1
程序功能
数据编制都是在数据编制系统
NPM-DGS
进行。在
NPM-DGS
作成的生产数据,通过
FA
电脑下载于设备。
但是,部分数据修正也可在机器主体上进行。
在设备主体修正的数据以及校正内容被保存,可以再利用。
※
NPM-DGS
用的硬件,请客户准备。
(NPM-DGS
是其他产品。
)
有关
NPM-DGS
的详细情况,请参照别册的「
NPM-DGS
规格说明书」。
6.2
信号塔
信号灯的颜色和亮灯标准
信号灯
颜色
分 类
亮灯标准
红色
紧急停止错误
・ 马达等的轴异常
・ 空气压力下降
・ 基板支撑部异常
・ 贴装头故障
・ 编带故障
等
黄色
中途停止错误
・ 吸着错误
・ 贴装错误
・ 基板传送错误
・ 元件用完
・ 吸嘴更换错误
等
绿色
运转中
自动运转等动力为
ON
时
(
但是,红色和黄色闪烁时熄灯
)
蓝色或者
红色
连接的设备中,成为瓶颈的设备
(
循环时间最长的设备
)
蓝色灯亮。
另外,按紧急停止开关,红色灯亮。
※ 亮灯规格,可以变更设定。
设备设定
PCB 数据
元件数据
最佳化
生产数据
标准
:
横置
距离地面
1 514 mm
红
黄
绿
(
蓝色或者红色
)
红
黄
绿
距离地面
1 629 mm
也可以纵置。
高度从地面起是
1 629 mm
。
(
蓝色或者红色
)
数据编制系统 NPM-DGS

NPM-TT2 2016.0415
- 60 -
7.
印刷基板设计基准
7.1
印刷基板规格概要
( )
内的数値
:
单轨模式时
项 目
规 格
基板尺寸
PC 尺寸
双轨模式
※1
: 50 × 50 mm ~ 510 × 300 mm
单轨模式
※
1
: 50 × 50 mm ~ 510 × 590 mm
M 尺寸
双轨模式
※1
: 50 × 50 mm ~ 510 × 260 mm
单轨模式
※
1
: 50 × 50 mm ~ 510 × 510 mm
贴装可能范围
PC 尺寸
双轨模式
※1
: 50 × 44 mm ~ 510 × 294 mm
单轨模式
※
1
: 50 × 44 mm ~ 510 × 584 mm
M 尺寸
双轨模式
※1
: 50 × 44 mm ~ 510 × 254 mm
单轨模式
※
1
: 50 × 44 mm ~ 510 × 504 mm
基板厚度
0.3 mm ~ 8.0 mm
基板重量
1.5 k
g以下
※
2
基板弯曲容许
基板断面
贴装前基板状态
※
1
进行生产时,需要对应该生产模式的基板支撑块。
※
2
基板重量
(
包括载体重量
)
超过
1.5 k
g 的情况时,请另行联络。
※
3
使用支撑销自动更换功能的情况时,支撑销形状、销的配置条件等有异。
详细请参阅「
9.
选购件
:
支撑销的自动更换」。
※ 有关陶瓷基板的对应请另行联络。
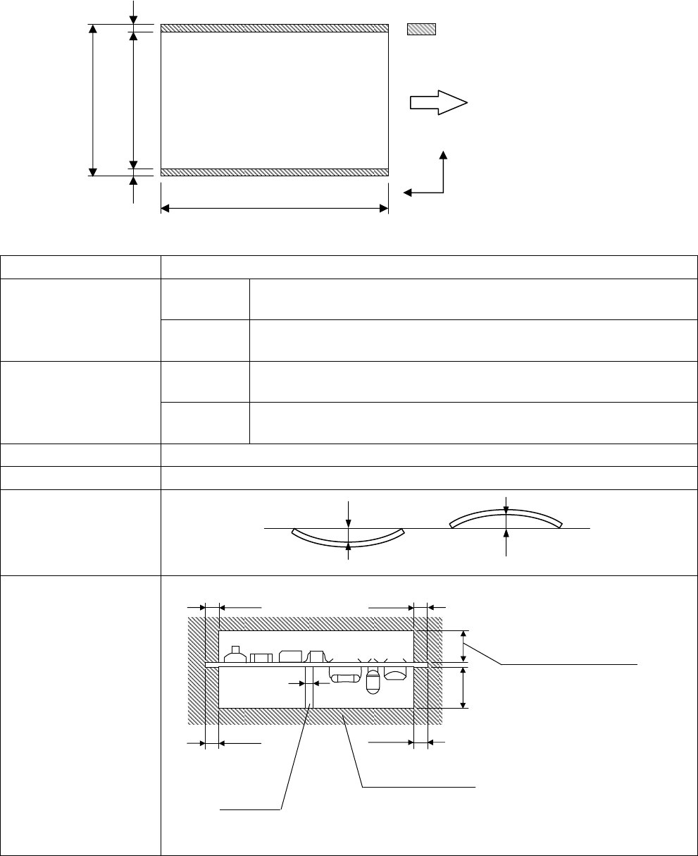
禁止有元件的范围
8
吸嘴贴装头
: 12 mm
3
吸嘴贴装头
: 30 mm
支撑销
※
3
(
设置在与反面元件距离隔开
2 mm
以上的位置。
)
28 mm
3 mm
3 mm
3 mm
φ
3
3 mm
Max. 0.5 mm
Max. 0.5 mm
PC:50 mm ~ 300(590) mm
M :50 mm ~ 260(590) mm
Y
X
固定侧
禁止有元件的范围
3 mm
50 mm ~ 510 mm
3 mm
流向

NPM-TT2 2016.0415
- 61 -
项 目
规 格
基板缺口条件
基板缺口尺寸必需满足以下
2
个条件。
条件
A
基板缺口尺寸必需满足以下条件。
【L 长】
L L1
50 mm
≦
L
≦
350 mm
不超过
L/4
350 mm
<
L
≦
510 mm L/4
或者
100 mm
的较小的一个
【W 长】
(PC 尺寸)
W W1
50 mm
≦
W
≦
300 mm W/3
或者
30 mm
的较小的一个
300 mm
<
W
≦
590 mm
请另行商洽。
(M 尺寸)
W W1
50 mm
≦
W
≦
260 mm W/3
或者
30 mm
的较小的一个
260 mm
<
W
≦
510 mm
请另行商洽。
※
以上是在基板厚度为
1.6 mm
以下时的情况。
基板厚度超过
1.6 mm
时,请另行商洽。
条件
B
下图
领域内必须保证没有缺口
(
包括缝隙
)
。
※
上图领域内如果有缺口
(
包括缝隙
)
时,请另行商洽。
基板端面的元件伸出条
件
请另行商洽。
L1
L
W1
W1
W
只限任意一处
流向
A
A
10 mm
30 mm
10 mm
基准轨道侧
流向
B