NPM-TT2 PARTS LIST1811.pdf - 第533页
Ref No. Remarks R 1 Q'ty 111 CPU BOX&配線:オフラインカメラユニット CPU BOX&W iring: Offline Camera Unit イラスト No. Part No. 品 名 品 番 数量 R 2 パーツリスト Kit No. キット品番 Kit Name キット名称 N610130076AB Part Nam e 備 考 セク ション No . PARTS LI…

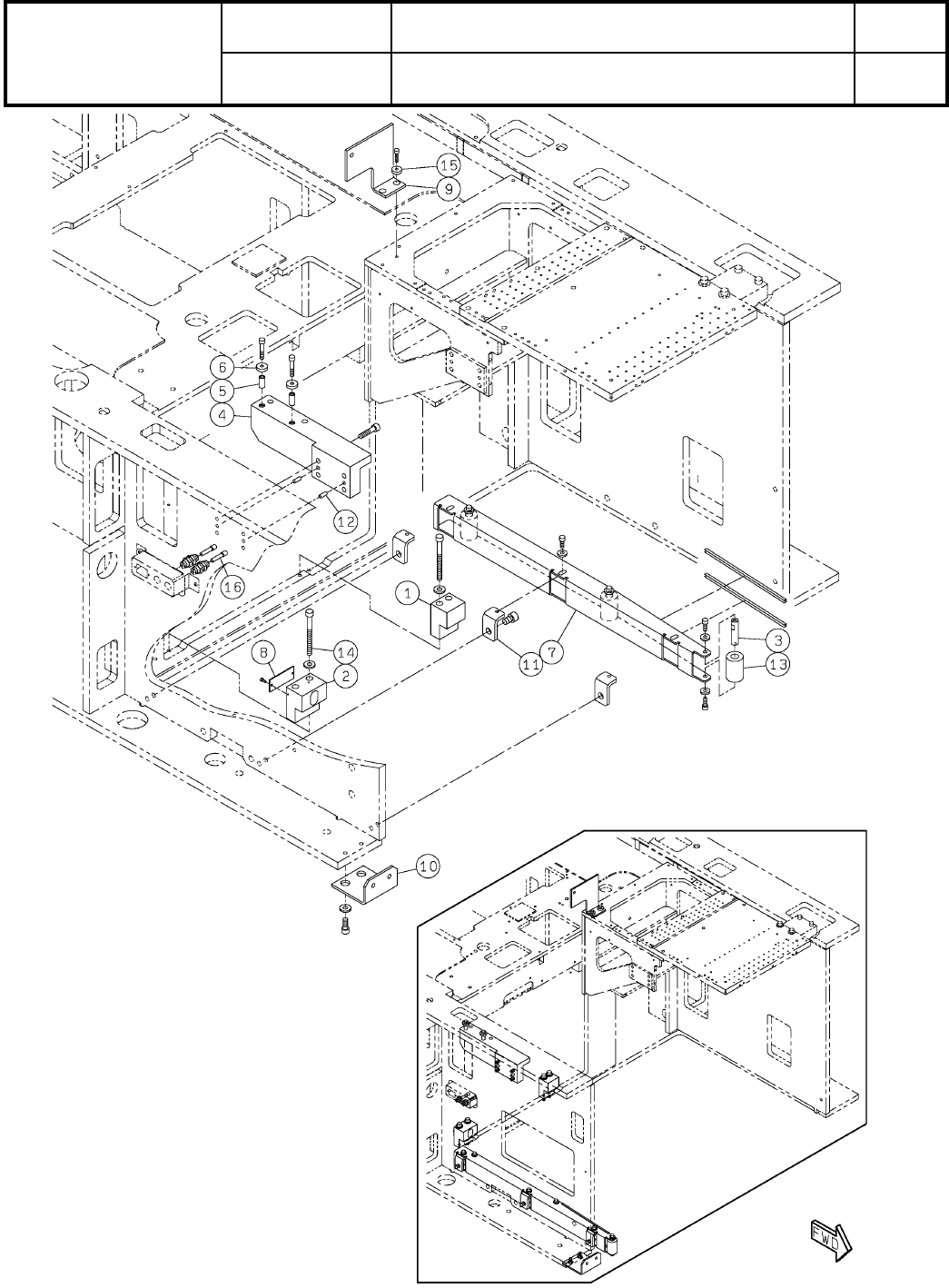
111
CPU BOX&配線:オフラインカメラユニット
CPU BOX&Wiring:Offline Camera Unit
パーツレイアウト
Kit No.
キット品番
Kit Name
キット名称
N610130076AB
セクションNo.
PARTS LAYOUT
Section No.
--
O339
( KN610130076AB-00 )

Ref
No.
Remarks R
1
Q'ty
111
CPU BOX&配線:オフラインカメラユニット
CPU BOX&Wiring:Offline Camera Unit
イラスト
No.
Part No.
品 名品 番 数量
R
2
パーツリスト
Kit No.
キット品番
Kit Name
キット名称
N610130076AB
Part Name
備 考
セクションNo.
PARTS LIST
Section No.
R
3
Camera I/F Board
1
1 N610145896AA
S
PPRCAH-AA
PCB-COM(kernel pre-installed):TYPE-2
1
2 N610120633AA
S
CPU BOX
1
3 N610067516AB
S
PBXCAB-AA
FAN
1
4 N510063128AA 109P0812H7D11
POWER-SUPPLY
1
5 N510037010AA
S
PCSF-200P-X2S3
FAN-GUARD
1
6 KXF08K7AA00 109-049E
SPRING
1
7 N210110264AA
FILTER
1
8 N210084432AA
PCB-COM
1
9 N510037011AA NBC-7153-01
BATTERY
1
10 N510042756AA FC-BT001
O340
--
( KN610130076AB-00 )

112
シングルトレイフィーダ/17連交換台車連結部(本体側:切替仕様):
Single Tray Feeder/Feeder Cart Connecting Unit:NPM-TT2
パーツレイアウト
Kit No.
キット品番
Kit Name
キット名称
MTKA009119AA
セクションNo.
PARTS LAYOUT
Section No.
--
O341
( KMTKA009119AA-02 )