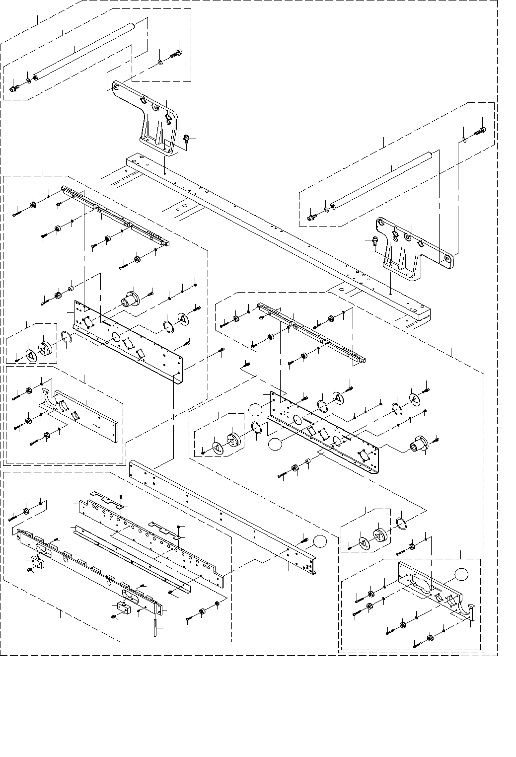
JM-100-Rev00.pdf - 第51页

- 46 - NOTE( 注記 ) *INSTALLATION POSITION AND DIRECTION VARY IF THE PWB TR ANSFER REFERENCE IS DIFFERENT. 基板搬送基準が異なると取付位 置、方向が変わります。 REF.NO NOTE PART NO D E S C R I P T I O N 品 名 Qty 1 401-37176 CONVEYOR_RAIL_R_A SM 搬送レール…

100%1 / 102
- 45 -
23.PWB CONVEYOR COMPONENTS (2)
基板搬送関係(2)
35
37
45
47
43
46
44
40
41
38
39
49
48
37
36
49
48
17
31
28
31
29
24
14
16
18
22
23
21
10
10
30
27
26
25
21
20
19
12
13
11
15
42
43
42
34
32
33
34
32
33
30
50
52
51
53
85
84
90
91
89
92
91
93
71
55
57
73
74
57
73
74
89
92
87
96
90
91
91
93
86
88
84
83
85
83
79
69
70
54
54
63
62
95
54
68
67
66
65
54
77
76
78
77
76
78
76
78
77
78
60
75
65
64
61
62
63
80
77
82
94
56
69
70
66
67
68
61
58
59
60
81
76
72
- 46 -
NOTE( 注記 ) *INSTALLATION POSITION AND DIRECTION VARY IF THE PWB TRANSFER
REFERENCE IS DIFFERENT.
基板搬送基準が異なると取付位置、方向が変わります。
REF.NO NOTE PART NO D E S C R I P T I O N
品 名
Qty
1 401-37176 CONVEYOR_RAIL_R_ASM
搬送レールR組
1
2 SL-6041092-TN SCREW M4 L=10
座金付き六角穴ボルト M4 L=10
(10)
3 SL-6041292-TN SCREW M4 L=12
座金付き六角穴ボルト M4 L=12
(4)
4 401-37178 RAIL_PLATE_RL_ASM
レールプレートRL組
(1)
5 401-37179 SUPPORT PLATE RL ASM
サポートプレートRL組
(1)
6 401-36815 SUPPORT_PLATE_RL
サポートパネルRL
(1)
7 E2111-715-0A0 CONVEYOR PULLEY ASM.
搬送プーリ(組)
(3)
8 WP-0430800-SC WASHER M4
平座金小形丸 M4
(3)
9 SM-4040855-SC SCREW
なべ小ねじ M4 L=8
(3)
10 SM-4040855-SC SCREW
なべ小ねじ M4 L=8
(2)
11 E2089-721-0A0 CONVEYOR PULLEY B ASM.
搬送プーリB組
(1)
12 E2055-721-000 PULLEY SPACER
プーリスペーサ
(1)
13 SM-4042501-SC SCREW M4X0.7 L=25
なべ小ねじ M4X0.7 L=25
(1)
14 WP-0430801-SC WASHER M4
平座金 M4
(1)
15 WS-0410002-KN SPRING WASHER M4
ばね座金 M4
(1)
16 NM-6040001-SC NUT M4X0.7 TYPE1
六角ナット M4X0.7 1種
(1)
17 400-00839 DRIVE PULLEY R ASM
ドライブプーリR組
(1)
18 400-00840 DRIVE PULLEY R
ドライブプーリR
(1)
19 E2160-721-000 PULLEY FLANGE
プーリフランジ
(1)
20 SL-6030892-TN SCREW M3 L=8
座金付き六角穴ボルト M3 L=8
(3)
21 E3931-750-000 PULLEY WASHER
プーリスラストワッシャ
(2)
22 E2160-721-000 PULLEY FLANGE
プーリフランジ
(1)
23 SL-6030892-TN SCREW M3 L=8
座金付き六角穴ボルト M3 L=8
(3)
24 SB-8200001-00 BEARING
ころがり軸受
(2)
25 401-36813 RAIL_PLATE_RL
レールプレートRL
(1)
26 401-38183 CONVEYOR_RAIL
搬送レール
(1)
27 SL-6031492-TN SCREW M3 L=14
座金付き六角穴ボルト M3 L=14
(4)
28 SM-6051002-TN SCREW
六角穴ボルト
(8)
29 SL-6041092-TN SCREW M4 L=10
座金付き六角穴ボルト M4 L=10
(2)
30 E2111-715-0A0 CONVEYOR PULLEY ASM.
搬送プーリ(組)
(2)
31 WP-0430800-SC WASHER M4
平座金小形丸 M4
(2)
32 401-38303 RESIST_LIGHTEN_ROLLER_ASM
レイジストライテンローラ組
(2)
33 WP-0430800-SC WASHER M4
平座金小形丸 M4
(2)
34 SM-4041601-SC SCREW M4X0.7 L=16
なべ小ねじ M4 L=16
(2)
35 401-37177 CONVEYOR_RAIL_RC_ASM
搬送レールRC組
(1)
36 401-38179 CONVEYOR_RAIL_FC
搬送レールFC
(1)
37 SL-6041092-TN SCREW M4 L=10
座金付き六角穴ボルト M4 L=10
(4)
38 400-00812 RAIL GUIDE SHAFT
レールガイドシャフト
(2)
39 SM-8040602-TP SCREW M4X0.7 L=6
止めねじ
(2)
40 401-10109 SAFETY BAR
安全バー
(2)
41 SL-6040892-TN SCREW M4 L=8
座金付き六角穴ボルト M4 L=8
(4)
42 E2123-721-000 PWB GUIDE PLATE F
基板ガイドプレートF
(4)
43 SL-6030892-TN SCREW M3 L=8
座金付き六角穴ボルト M3 L=8
(12)
44 E2111-715-0A0 CONVEYOR PULLEY ASM.
搬送プーリ(組)
(4)
45 WP-0430800-SC WASHER M4
平座金小形丸 M4
(4)
46 SM-4040855-SC SCREW
なべ小ねじ M4 L=8
(4)
47 401-36825 RAIL_GUIDE_R
レールガイドR
(1)
48 E4105-729-0A0 SHAFT SUPPORT B ASM.
シャフトサポート組
(2)
49 SM-8030302-TP SCREW M3X3
止めねじ M3X3
(2)
50 401-38303 RESIST_LIGHTEN_ROLLER_ASM
レイジストライテンローラ組
(2)
51 401-38182 ROLLER_SPACER
ローラスペーサ
(2)
52 SM-4041601-SC SCREW M4X0.7 L=16
なべ小ねじ M4 L=16
(2)
53 401-37180 RAIL_PLATE_RR_ASM
レールプレートRR組
(1)
54 E3931-750-000 PULLEY WASHER
プーリスラストワッシャ
(4)
55 401-38183 CONVEYOR_RAIL
搬送レール
(1)
56 SB-8200001-00 BEARING
ころがり軸受
(2)
57 SM-4040855-SC SCREW
なべ小ねじ M4 L=8
(2)
58 E2089-721-0A0 CONVEYOR PULLEY B ASM.
搬送プーリB組
(1)
59 E2055-721-000 PULLEY SPACER
プーリスペーサ
(1)
60 SM-4042501-SC SCREW M4X0.7 L=25
なべ小ねじ M4X0.7 L=25
(2)
61 WP-0430801-SC WASHER M4
平座金 M4
(2)
62 WS-0410002-KN SPRING WASHER M4
ばね座金 M4
(2)
63 NM-6040001-SC NUT M4X0.7 TYPE1
六角ナット M4X0.7 1種
(2)
64 SM-6051002-TN SCREW
六角穴ボルト
(8)
65 400-00839 DRIVE PULLEY R ASM
ドライブプーリR組
(2)
66 400-00840 DRIVE PULLEY R
ドライブプーリR
(1)
67 E2160-721-000 PULLEY FLANGE
プーリフランジ
(1)
68 SL-6030892-TN SCREW M3 L=8
座金付き六角穴ボルト M3 L=8
(3)
69 SL-6030892-TN SCREW M3 L=8
座金付き六角穴ボルト M3 L=8
(6)
70 E2160-721-000 PULLEY FLANGE
プーリフランジ
(2)
71 SL-6031492-TN SCREW M3 L=14
座金付き六角穴ボルト M3 L=14
(4)
72 SL-6041092-TN SCREW M4 L=10
座金付き六角穴ボルト M4 L=10
(2)
73 E2111-715-0A0 CONVEYOR PULLEY ASM.
搬送プーリ(組)
(2)
74 WP-0430800-SC WASHER M4
平座金小形丸 M4
(2)
75 401-37181 SUPPORT PLATE RR ASM
サポートプレートRR組
(1)
76 E2111-715-0A0 CONVEYOR PULLEY ASM.
搬送プーリ(組)
(6)
77 WP-0430800-SC WASHER M4
平座金小形丸 M4
(6)
78 SM-4040855-SC SCREW
なべ小ねじ M4 L=8
(6)
79 401-36816 SUPPORT_PLATE_RR
サポートパネルRR
(1)
80 E2111-715-0A0 CONVEYOR PULLEY ASM.
搬送プーリ(組)
(1)
81 WP-0430800-SC WASHER M4
平座金小形丸 M4
(1)
82 401-36814 RAIL_PLATE_RR
レールプレートRR
(1)
83 401-38303 RESIST_LIGHTEN_ROLLER_ASM
レイジストライテンローラ組
(2)
84 SM-4041201-SC SCREW M4X0.7 L=12
なべ小ねじ M4X0.7 L=12
(2)
85 WP-0430800-SC WASHER M4
平座金小形丸 M4
(2)
86 SL-6052092-TN SCREW M5 L=20
座金付き六角穴ボルト M5 L=20
(2)
87 401-36817 RAIL_STAND_RL
レールスタンドRL
(1)
88 SL-6052092-TN SCREW M5 L=20
座金付き六角穴ボルト M5 L=20
(2)
89 401-37167 GUIDE_SHAFT_ASM_L
ガイドシャフト組L
(4)
90 SL-6052042-TN SCREW
座金付き六角穴ボルト
(1)
91 WP-0501046-SC WASHER 5 X 14 X 1
平座金 5X14X1
(2)
92 401-36819 GUIDE_SHAFT_L
ガイドシャフトL
(1)
93 SL-6051292-TN SCREW M5 L=12
座金付き六角穴ボルト M5 L=12
(1)
94 SL-6041292-TN SCREW M4 L=12
座金付き六角穴ボルト M4 L=12
(4)
95 401-46998 CONVEYOR_SUPPORT_PLATE
搬送サポートプレート
(1)
96 401-36818 RAIL_STAND_RR
レールスタンドRR
(1)
- 47 -
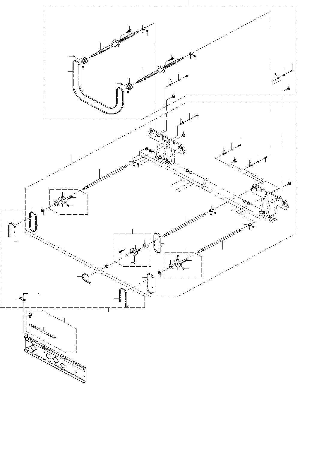
24.PWB CONVEYOR COMPONENTS (3)
基板搬送関係(3)
36
35
31
21
21
21
16
26
14
11
30
18
17
26
30
18
17
26
35
20
20
33
34
32
17
18
30
19
22
24
23
25
26
28
27
14
10
13
24
19
10
28
22
22
11
29
23
25
19
15
12
15
24
23
25
26
26
27
28
27
12