TT2-Mechanical.pdf - 第547页
Ref No. Remarks R 1 Q'ty 120 交換台車支持部(切替仕様):NPM-W2 Feeder cart support(17-Slot_S Tray Feeder):N PM -W 2 イラスト No. Part No. 品 名 品 番 数量 R 2 パーツリスト Kit No. キット品番 Kit Name キット名称 MTKA004424AA Part Nam e 備 考 セク ション No . PAR…

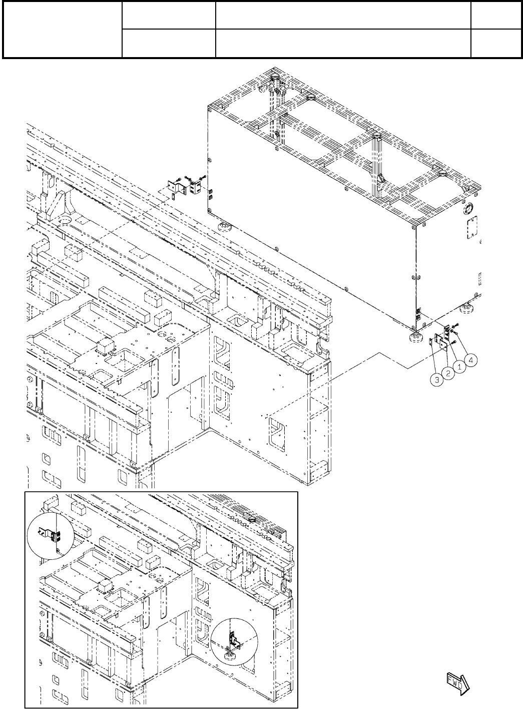
120
交換台車支持部(切替仕様):NPM-W2
Feeder cart support(17-Slot_S Tray Feeder):NPM-W2
パーツレイアウト
Kit No.
キット品番
Kit Name
キット名称
MTKA004424AA
セクションNo.
PARTS LAYOUT
Section No.
--
O363
( KMTKA004424AA-03 )

Ref
No.
Remarks R
1
Q'ty
120
交換台車支持部(切替仕様):NPM-W2
Feeder cart support(17-Slot_S Tray Feeder):NPM-W2
イラスト
No.
Part No.
品 名品 番 数量
R
2
パーツリスト
Kit No.
キット品番
Kit Name
キット名称
MTKA004424AA
Part Name
備 考
セクションNo.
PARTS LIST
Section No.
R
3
PLATE
1
1 N210109720AA
PLATE
1
2 N210091010AB
GUIDE
1
3 N210091012AC
WASHER
3
4 MTPA016132AA
BOLT
3
5 MTPA007066AB
PLATE
1
6 N210091013AA
WASHER
3
7 MTPB004070AB
CAM-FOLLOWER
1
8 N510032929AA CF12VBUUR
STOPPER
1
9 N510029795AA SPM-M8
SPACER
2
10 N510020062AA 3382330-50050
C-RING
3
11 KXF0BWNAA00 STW-4
O364
--
( KMTKA004424AA-03 )

121
本体部/コンベア連結部品:NPM-TT2
Main Body/Conveyor Connection Parts:NPM-TT2
パーツレイアウト
Kit No.
キット品番
Kit Name
キット名称
MTKA008659AA
セクションNo.
PARTS LAYOUT
Section No.
--
O365
( KMTKA008659AA-00 )