CM402规格说明书.pdf - 第62页
CM402-M/L 2007.0401 - 56 - ■ 穿梭式托盘供料器 ST40S-20 ( 选购件 ) 外形尺寸 ( 单体 ) ( 单位 : mm) ※ 1 托盘供给面的高度 888 mm 是 CM402-M/L 的基板搬送高度为 900 mm 时的标 准值 , 其可调整范围为 888 mm 。 ※ 2 M : 尺寸为 330 mm × 250 mm 的基板中心 L : 尺寸为 510 mm × 460 mm 的基板中心 +65 …

CM402-M/L 2007.0401
- 55 -
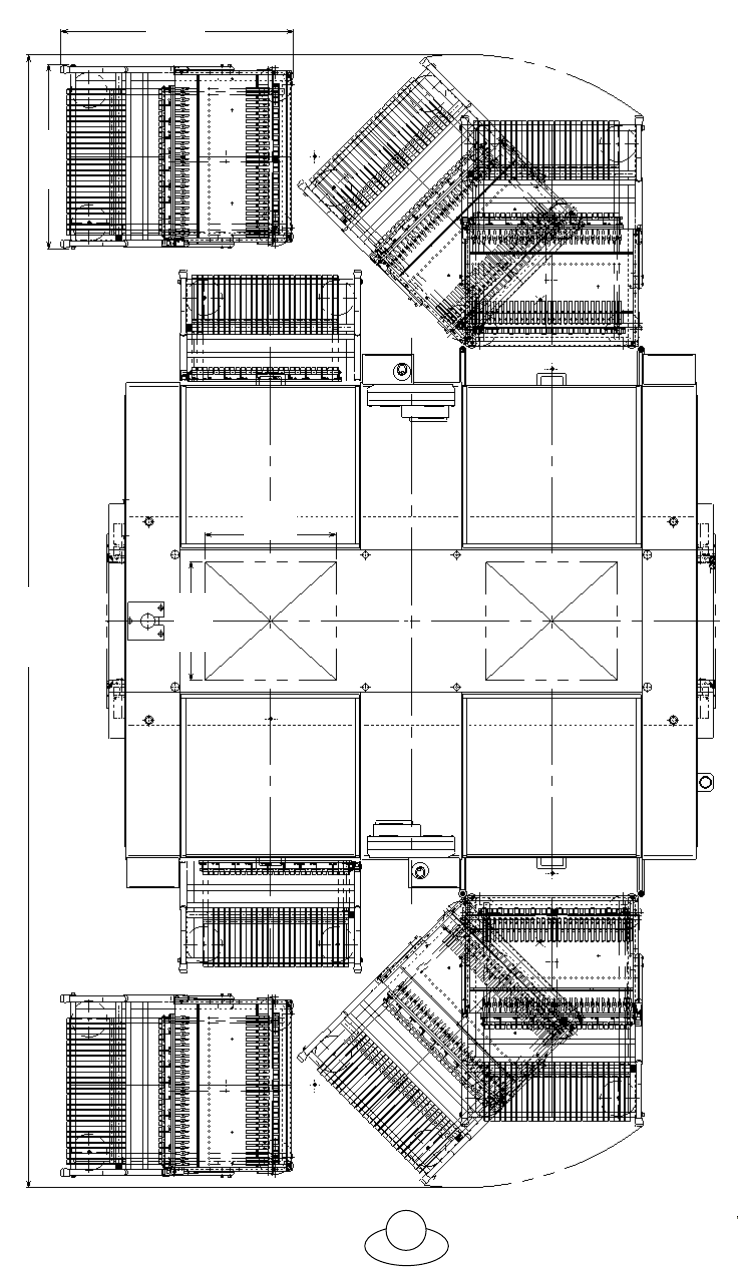
※这是交换整体交换台车所需的最小空间。
设置机器时请注意。
(
单位
: mm)
※ 整体交换台车的设置范围的地面倾斜度必须是在,台车的左右方向
6 mm
以下,前后方向
11 mm
以下。若地
面的倾斜超过此范围时,整体交换台车的搬入无法进行。
M : 4 170
L : 4 400
902
715
M : 330
L : 510
M : 250
L : 460
操作员侧

CM402-M/L 2007.0401
- 56 -
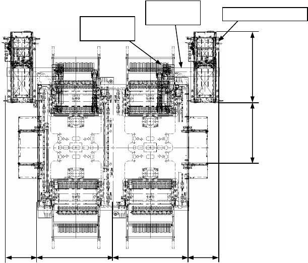
■ 穿梭式托盘供料器
ST40S-20 (
选购件
)
外形尺寸
(
单体
)
(
单位
: mm)
※
1
托盘供给面的高度
888 mm
是
CM402-M/L
的基板搬送高度为
900 mm
时的标
准值
,
其可调整范围为
888 mm
。
※
2 M :
尺寸为
330 mm × 250 mm
的基板中心
L :
尺寸为
510 mm × 460 mm
的基板中心
+65
-10
939
1 266
1 030
888
(
托盘供给面
)
※
1
AR :
81
BR
414
A
侧
: 914.5
B
侧
: 684.5
基板中心※
2
L: 774 M: 669
(
自基板中心※
2
)
1 050
基板中心※
2

CM402-M/L 2007.0401
- 57 -
外形尺寸
(
连接时
)
(
单位
: mm)
520 1 110 1 110 520
1 050
L : 889
M : 669
梭
元件搬
送
部
梭
元件
吸
着部
托盘供料器