PTS-NXT2-06JE.pdf - 第411页
This page is intentionally blank. 35 PTS-NXT2-06JE Vol.2

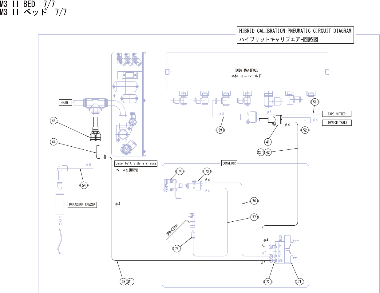
M3II-BED6/7
M3II-ベッド6/7
UA01829
No. Dr
g
.No.&CodeNo. QTY Descri
p
tion Ratin
g
Materials Remarks
番号 図番&コード番号 個数 品名
規
格 材質 備考
Note.1:Thequantityin()indicatesthequantityforusewithoptionalVacuumbackuppins.
:()内の個数はオプション仕様のバキュームバックアップピンが取付く場合の個数を示す。
Note.2:ThepartsforBASEunit.
:ベース構成部品。
Note.3:ThepartsforSLYDEX-axisunit.
:X軸構成部品。
34
PTS-NXT2-06JE
Vol.2

This page is intentionally blank.
35
PTS-NXT2-06JE
Vol.2

UA01829
36
PTS-NXT2-06JE
Vol.2