RS-1_RS-1-XL_RS-1R-Rev15.pdf - 第135页
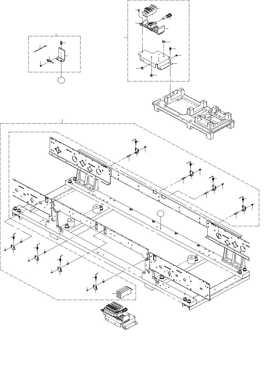
- 128 - REF.NO NOTE PART NO D E S C R I P T I O N 品 名 Qty 1 401-83551 CONVEYOR_VALVE_UNIT コンベアバルブ組 1 2 401-47000 CONVEYOR_VALVE_STAGE コンベアバルブステージ (1) 3 SL-6041092-TN SCREW M4 L=10 座金付き六角穴ボルト M4 L=10 (2) 4 401-91339 SOLEN…

- 127 -
64.PWB CONVEYOR COMPONENTS (8)
基板搬送関係(8)
20
21
24
23
22
3
1
2
4
9
7
9
9
6
5
12
13
16
12
14
17
18
17
18
14
12
17
18
14
12
12
17
14
18
13
16
12
13
16
19
12
12
16
13
15
A
A
11
25
19
19
19
8
10

- 128 -
REF.NO NOTE PART NO D E S C R I P T I O N
品 名
Qty
1 401-83551 CONVEYOR_VALVE_UNIT
コンベアバルブ組
1
2 401-47000 CONVEYOR_VALVE_STAGE
コンベアバルブステージ
(1)
3 SL-6041092-TN SCREW M4 L=10
座金付き六角穴ボルト M4 L=10
(2)
4 401-91339 SOLENOID_VALVE_INSTALLING_BASE
電磁弁取付けベース
(1)
5 PV-1502093-00 5 PORT SOLENOID VALVE
5ポート電磁弁
(3)
6 PX-0500030-00 SILENCER
サイレンサ
(1)
7 SM-3040652-TN SCREW M4 L=6
丸ねじ M4 L=6
(2)
8 SL-4030891-SC SCREW M3X8
なべ小ねじセムス M3 L=8
(4)
9 HX-0070600-0A MOUNT BASE
マウントベース
(3)
10 HK-0498900-0G BLOCK TERMINAL
コネクタパーツ
(1)
11 401-83556 FIBER_UNIT_ASM
ファイバユニット組
1
12 401-83047 FIBER_BRACKET
ファイバブラケット
(8)
13 401-82350 FIBER SENSOR
ファイバセンサ
(2)
14 HD-0010700-30 SENSOR
センサ
(2)
15 401-81868 STOP SENSOR CABLE ASM
ストップセンサケーブル組
(3)
16 HX-0035400-0S SPACER
スペーサ
(8)
17 HX-0035400-0A SPACER
スペーサ
(8)
18 SL-6030692-TN SCREW M3 L=6
座金付き六角穴ボルト M3 L=6
(8)
19 SM-3030552-TN SCREW M3 L=5
丸ねじ M3 L=5
(8)
20 401-83549 BU_HOME_SENSOR_ASM
BUホームセンサ組
1
21 SL-6051092-TN SCREW M5 L=10
座金付き六角穴ボルト M5 L=10
(2)
22 EA-9500B01-00 CABLE BAND
束線バンド
(1)
23 401-29042 AWC/BU ORG SENSOR CABLE ASM
AWC/BU原点センサワイヤー組
(1)
24 401-89350 BU_SENSOR_BR2
BUセンサBR2
(1)
25 SM-4030801-SC SCREW M3X0.5 L=8
なべ小ねじ M3X0.5 L=8
(1)

- 129 -
65.PWB CONVEYOR COMPONENTS (9)
基板搬送関係(9)
20
C
44
4
2
45
51
50
49
48
52
47
46
66
36
39
38
37
42
43
40
41
86
64
87
85
34
10
9
6
23
14
13
8
13
7
A
A
83
84
19
18
29
28
27
31
22
26
27
25
30
25
31
17
35
24
32
11
12
5
33
21
3
81
82
88
B
B
54
53
4
2
15
16
C
65
63
67
67
67
68
68
69
67
71
71
72
73
70
73
72
71
71
77
75
75
77
75
76
75
76
76
76
70
78
78
79
69
65
D
E
E
1
61 62
55
57
A
56
60
58
59
74
74
80
74
80
74
D
79