N7202A008B23.pdf - 第273页
Ref No. Remark s R 1 Q'ty 17-A 基 板 ホルダフレキシ ブル 対応:NPM-D Board Holder For F lexible:NPM -D イラスト No. Part No. 品 名 品番 数量 R 2 パーツリスト Kit N o . キット品 番 Kit Name キット名称 N610117081AA Part Name 備 考 セクションNo. PARTS LIST Section …

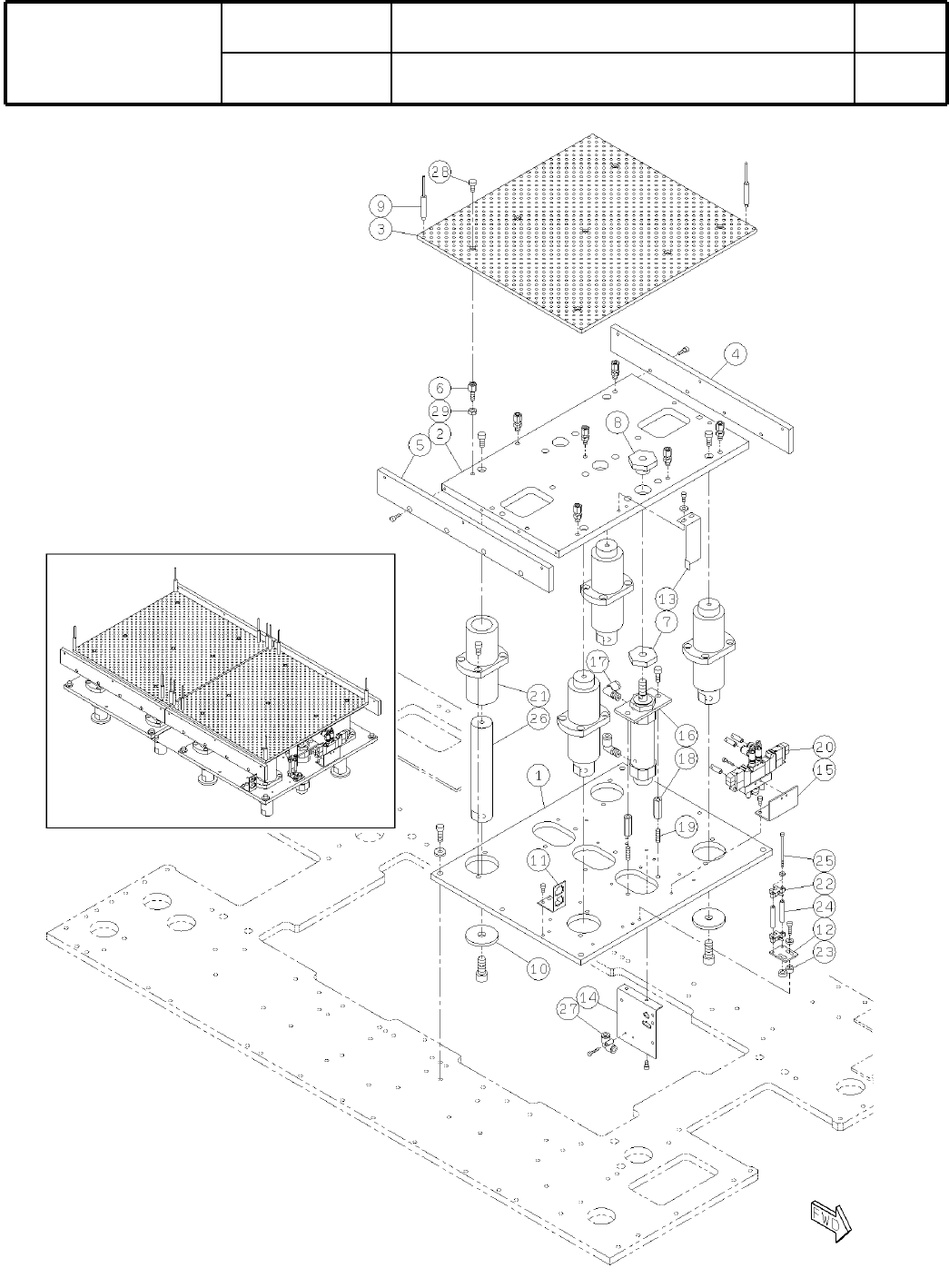
17-A
基
板
ホルダフレキシブル対応:NPM-D
Board Holder For Flexible:NPM-D
パーツレイアウト
Ki
t
N
o
.
キット
品番
Kit Name
キット名称
N610117081AA
セクションNo.
PARTS LAYOUT
Section No.
--
O87
( KN610117081AA-02-1 )

Ref
No.
Remarks
R
1
Q'ty
17-A
基
板
ホルダフレキシブル対応:NPM-D
Board Holder For Flexible:NPM-D
イラスト
No.
Part No.
品 名品番 数量
R
2
パーツリスト
Kit N
o
.
キット品
番
Kit Name
キット名称
N610117081AA
Part Name
備 考
セクションNo.
PARTS LIST
Section No.
R
3
PLATE
2
1 N210142437AA
PLATE
2
2 N210142438AA
PLATE
2
3 N210142439AA
PLATE
2
4 N210139770AB
PLATE
2
5 N210139771AB
BOLT
14
6 N210133661AB
CYL-NUT
2
7 N210113758AA
CYL-NUT
2
8 N210122004AA
PIN
20
9 N210113757AC
WASHER
4
10 N210139772AA
BRACKET
2
11 N210097322AA
PLATE
2
12 N210125619AA
DOG
2
13 N210139774AA
BRACKET
2
14 N210140275AA
BRACKET
2
15 N210134081AA
CYLINDER
2
16 N510048152AA CM2F32-50
JOINT
4
17 KXF0DYW0A00 KQ2L06-01S
SPACER
4
18 N510038214AA ASF-630E
SCREW
4
19 XXE6D20FT
Hexagon socket set screw Cup point M6X20-45H SOB
VALVE
2
20 N510055547AA 4GA130-M5-A2NS-FL433004-3-ST
LINEAR-BUSH
8
21 N510053990AA LMHC30LUU-PFSC
SENSOR
4
22 N510049698AA EE-SX910-C2J-R 0.2M
WASHER
4
23 N510038745AA TT6.5
SPACER
4
24 N510015581AA CF-335E
BOLT
4
25 N510017335AA
Hexagon socket head cap screw M3X55-10.9 A2J (Trivalent)
SHAFT
8
26 N510051414AA SF30163M10B
JOINT
2
27 KXF0E1J6A00 KJL06-00
BOLT
14
28 N510045805AA 87CBS4-8
NUT
14
29 N510027139AA
Hexagon nut Type-1 Best class M6X0.75-6H-A2-70
O88
--
( KN610117081AA-02-1 )

17-B
基
板
ホルダフレキシブル対応:NPM-D
Board Holder For Flexible:NPM-D
パーツレイアウト
Ki
t
N
o
.
キット
品番
Kit Name
キット名称
N610117081AA
セクションNo.
PARTS LAYOUT
Section No.
--
O89
( KN610117081AA-02-2 )