NPM-D3A Partlist.pdf - 第94页
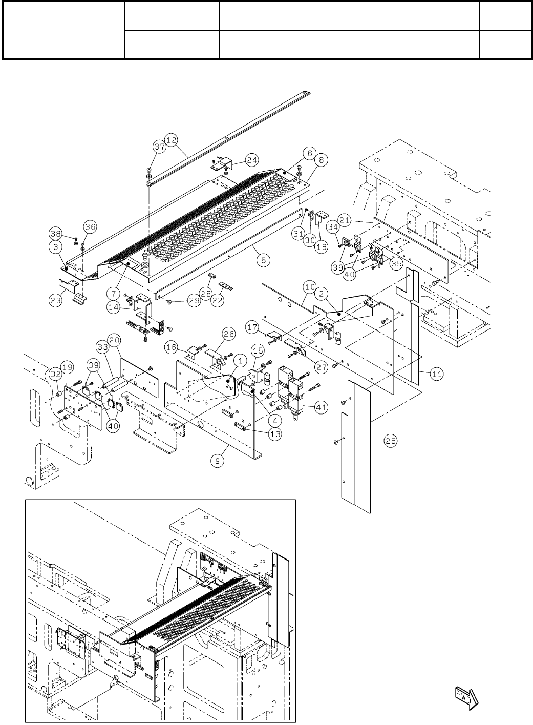
21 フィーダ テー ブルカ バー (前 側) :N PM- D3 A Feeder T able Cover(Fron t Side):NPM -D3A パーツレイアウト Kit N o. キット品番 Kit Name キット名称 MTKA032079 AA セクシ ョンNo. PARTS LAYOUT Section No. - - S75 ( KMTKA032079 AA-00 )

Ref
No.
Remarks R
1
Q'ty
20
銘板・警告ラベル(全体カバー):NPM-D3A
Label(Whole Cover):NPM-D3A
イラスト
No.
Part No.
品 名品 番 数量
R
2
パーツリスト
Kit No.
キット品番
Kit Name
キット名称
MTKA031536AA
Part Name
備 考
セクションNo.
PARTS LIST
Section No.
R
3
LABEL
6
1 KXF0E05TA00
S
PC010101(Drawing available KXF0E05TA00)
LABEL
3
2 KXF0E05UA00
S
PC010201(Drawing available KXF0E05UA00)
LABEL
2
3 N510010729AA
S
PC011701
LABEL
1
4 KXF0E066A00
S
PW0104M1(Drawing available KXF0E066A00)
LABEL
2
5 N510057516AA
S
PW0210M1
LABEL
2
6 KXF0E061A00
S
PD0101M1(Drawing available KXF0E061A00)
S74
--
( KMTKA031536AA-00 )

21
フィーダテーブルカバー(前側):NPM-D3A
Feeder Table Cover(Front Side):NPM-D3A
パーツレイアウト
Kit No.
キット品番
Kit Name
キット名称
MTKA032079AA
セクションNo.
PARTS LAYOUT
Section No.
--
S75
( KMTKA032079AA-00 )

Ref
No.
Remarks R
1
Q'ty
21
フィーダテーブルカバー(前側):NPM-D3A
Feeder Table Cover(Front Side):NPM-D3A
イラスト
No.
Part No.
品 名品 番 数量
R
2
パーツリスト
Kit No.
キット品番
Kit Name
キット名称
MTKA032079AA
Part Name
備 考
セクションNo.
PARTS LIST
Section No.
R
3
SHEET
1
1 N210191775AB
SHEET
1
2 N210153527AC
SHEET
2
3 N210144665AA
SHEET
1
4 N210153528AA
COVER
1
5 N210153542AC PCNDL78610
SHEET
1
6 N210165932AA
SHEET
1
7 N210165933AA
COVER
1
8 N210153544AD
BRACKET
1
9 N210190675AC
COVER
1
10 N210153547AC
BRACKET
1
11 N210153549AB
COVER
1
12 N210156017AC
NUT-PLATE
2
13 KXFB03UPA00
BRACKET
1
14 N210153550AC
BRACKET
2
15 N210137522AB
BRACKET
1
16 N210141409AB
BRACKET
1
17 N210141410AB
BRACKET
1
18 N210141411AB
PLATE
1
19 N210143604AB
PLATE
1
20 N210143605AD
PLATE
1
21 MTPB002252AA
BRACKET
2
22 N210141413AA
DOG
1
23 N210143607AC
DOG
1
24 MTPB029520AA
PLATE
1
25 N210153554AB
BRACKET
1
26 N210145839AA
BRACKET
1
27 N210145840AA
NUT-PLATE
1
28 N210146651AA
SCREW
13
29 N510018280AA
Cross recessed Truss head machine screw M4X6-4.8 A2S (Trivalent)
CATCH
2
30 N982TL1072 TL-60-1
SCREW
4
31 N510018155AA
Cross recessed Countersunk head machine screw M3X4-4.8 A2J (Trivale
SPACER
6
32 N510030564AA CB-409E
SPACER
2
33 N510029497AA ASF-445E
SCREW
16
34 N510018056AA
Cross recessed Pan head machine screw M3X6-4.8 A2J (Trivalent)
SLIT
3
35 N510043435AA OS-EX20-05X3
SCREW
4
36 N510018254AA
Cross recessed Truss head machine screw M3X6-4.8 A2S (Trivalent)
SCREW
5
37 N510018283AA
Cross recessed Truss head machine screw M4X8-4.8 A2S (Trivalent)
BOLT
4
38 N510022475AA SRBS-M3X6
SENSOR
2
39 N610074483AA
S
(Light Source 350mm,Receiver 1000mm)
SENSOR
2
40 N610074486AA
S
(Light Source 1000mm,Receiver 350mm)
SWITCH(1000mm)
1
41 N610162035AA
S76
--
( KMTKA032079AA-00 )