PTS-JIGFIFEEDER-08.1.pdf - 第27页
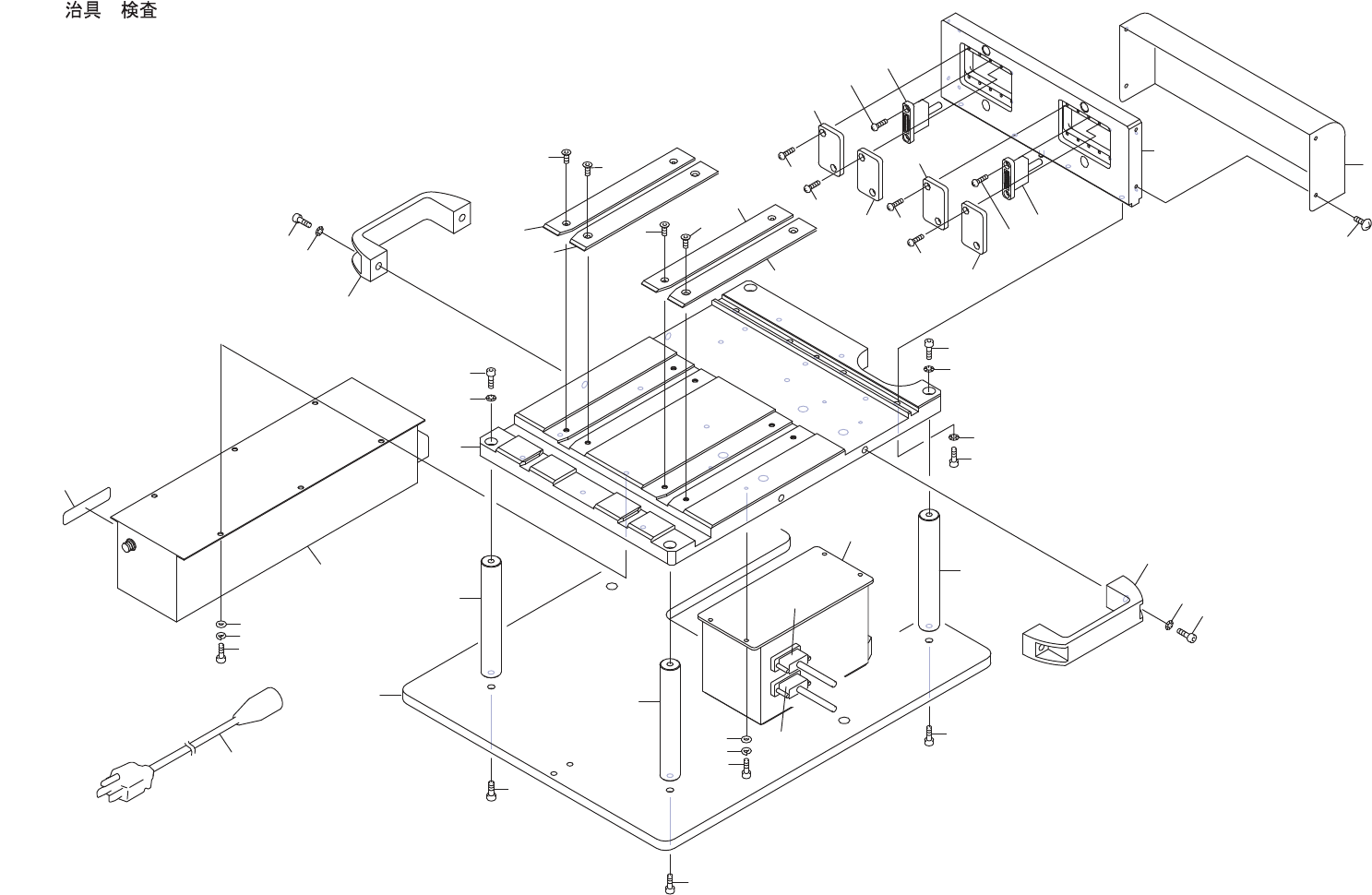
JIG, INSPECTION 治具 検 査 AA87521 No. Drg.No. & Cod e No. QT Y Description Ra ting Re marks 番号 図番 & コード番号 個数 品名 規格 備考 1 2MDLF W 008701 1 PL ATE プレー ト 2 2MDLF W 008801 4 SU PPORT COL UMN 支柱 3 H5427 B 4 BOLT , HEX SO…

1
8
9
2
25
26
24
3
3
3
4
5
4
5
6
7
10
11
12
13
14
15
15
17
17
16
16
18
21
21
32
18
32
22
19
12
22
22
22
21
30
31
21
13
14
2
2
25.1
25.2
27
27.1
27.2
35
JIG, INSPECTION
AA87521
DETAIL A1
26
PTS-JIGFIFEEDER-08.1

JIG, INSPECTION
治具 検査
AA87521
No.
Drg.No. & Code No.
QTY
Description
Rating
Remarks
番号
図番
&
コード番号
個数
品名
規格
備考
1
2MDLFW008701
1
PLATE
プレート
2
2MDLFW008801
4
SUPPORT COLUMN
支柱
3
H5427B
4
BOLT, HEX SOCKET
ボルト 六角穴
M05X012(3
カシロ
)
4
H5427E
4
BOLT, HEX SOCKET
ボルト 六角穴
M05X018(3
カ
シロ
)
5
W1012A
4
WASHER, CONICAL
ワッシャ 皿
M-5-L
6
2MDLFW008603
1
BASE
ベース
7
2MDLFW008501
1
PLATE
プレート
8
H5426N
4
BOLT, HEX SOCKET
ボルト 六角穴
M04X015(3
カ
シロ
)
9
W1011A
4
WASHER, CONICAL
ワッシャ 皿
M-4-L
10
PB09161
1
COVER
カバー
11
K5171S
4
SCREW, C/R TRUSS
小ネジ 十穴トラス
M03X006(3
カ
シロ
)
12
T5000S
2
HANDLE
取手
AGS110
13
H54241
4
BOLT, HEX SOCKET
ボルト 六角穴
M06X015(3
カシロ
)
14
W1013A
4
WASHER, CONICAL
ワッシャ 皿
M- 6-H
15
PM14974
2
PLATE, GUIDE
プレート ガイド
16
K5357L
4
SCREW, HEX SOCKET COUNTERSUNK
小ネジ 六角穴皿
M03X006(3
カ
シロ
)
17
PM14984
2
PLATE, GUIDE
プレート ガイド
18
K5357L
4
SCREW, HEX SOCKET COUNTERSUNK
小ネジ 六角穴皿
M03X006(3
カ
シロ
)
19
PX02052
1
SEAL, BAR CODE
シール バーコード
unit serial number
21
2MDLFW004601
4
COVER
カバー
22
K5171T
8
SCREW, C/R TRUSS
小ネジ 十穴トラス
M02.5X005(3
カ
シロ
)
24
XB03460
1
BOX, POWER SUPPLY
BOX 電源
25
H5426K
6
BOLT, HEX SOCKET
ボルト 六角穴
M04X008(3
カ
シロ
)
25.1
W1106D
6
WASHER, LOCK
ワッシャ スプリング
4M/M(3
カ
シロ
)
25.2
W1108S
6
WASHER, FLAT
ワッシャ 平
4M/MX0.8X9(1W-4)(3
カシロ
)
26
XB02270
1
BOX
BOX
27
H54252
4
BOLT, HEX SOCKET
ボルト 六角穴
M03X008(3
カ
シロ
)
27.1
W1106C
4
WASHER, LOCK
ワッシャ スプリング
3M/M(3
カ
シロ
)
27.2
W1108B
4
WASHER, FLAT
ワッシャ 平
3M/MX0.5X7(3
カシロ
)
30
XH01111
1
HARNESS
ハーネス
31
XH01080
1
HARNESS
ハーネス
32
XP00133
4
PIN
ピン
35
RH19631
1
HARNESS
ハーネス
27
PTS-JIGFIFEEDER-08.1

8
9
26
28
28
24
3
3
3
4
5
6
15
15
17
17
16
16
18
18
4
5
19
26.1
7
10
11
21
21
32
32
22
22
22
22
21
30
31
21
12
13
14
1
12
13
14
2
2
2
25
25.1
25.2
27
27.1
27.2
35
JIG, INSPECTION
AA44K18
DETAIL A2
28
PTS-JIGFIFEEDER-08.1