PTS-JIGFIFEEDER-10.pdf - 第11页
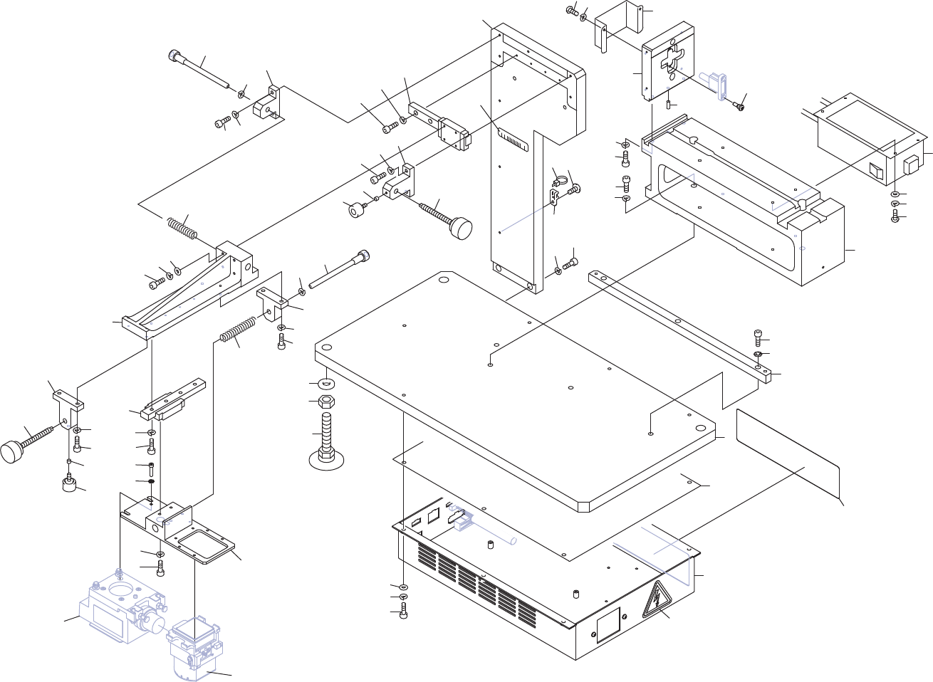
JIG, INSPECTION 治具 検査 AA5AE29 No. Drg.No. & Code No. QTY Description Rating Remarks 番号 図番 & コード番 号 個数 品名 規格 備考 1 PM5107 7 1 BASE, JIG ベース 治具 3 PB431 91 1 PLATE, PA RTITION プレート 仕切り 3.1 H5288 A 6 BOLT, HEX S OCKE…

5$7,1*62)0$&+,1(
UG003**
2UGKGP0002**
1
7
8
9
10
13
14
15
20
21
22
23
24
25
26
27
28
29
30
31
32
32
33
33
34
34
35
35
36
36
37
37
39
41
42
43
43
44
44
45
46
46
47
48
48
49
50
51
52
53
54
55
56
57
47
45
39
40
16
17
18
19
12
11
3
4
5
6
40
38
3.1
3.2
3.3
18.1
61
ල᳨ᰝ
JIG, INSPECTION
AA5AE29
10
PTS- J I GFI FEEDER- 10

JIG, INSPECTION
治具 検査
AA5AE29
No. Drg.No. & Code No. QTY Description Rating Remarks
番号 図番 & コード番号 個数 品名 規格 備考
1 PM51077 1 BASE, JIG
ベース 治具
3 PB43191 1 PLATE, PARTITION
プレート 仕切り
3.1 H5288A 6 BOLT, HEX SOCKET
ボルト 六角穴
M04X010
3.2 W1022A 6 WASHER, LOCK
ワッシャ スプリング
4M/M
3.3 W1040S 6 WASHER, FLAT
ワッシャ 平
4M/MX0.8X9(1W-4)(3カクロ)
4 RB02984 1 BOX
BOX
5 2EKHFJ017201 1 NAMEPLATE
銘板
6 RX00390 1 SEAL
シール
7 W11082 4 WASHER, FLAT
ワッシャ 平
12M/MX2.5X24(1W-12)(3カクロ)
8 N1080D 4 NUT, HEX
ナット 六角
M12(3カクロ)
9 A10104 4 ADJUSTER
アジャスタ
TM-236 NO.6122
10 PM52072 1 BLOCK, LOCATING
ブロック 位置決め
11 H5326A 3 BOLT, HEX SOCKET
ボルト 六角穴
M06X025 ゼンネジ
12 W1013A 3 WASHER, CONICAL
ワッシャ 皿
M- 6-H
13 PM51082 1 MOUNTING BASE
取付台
14 H5326A 2 BOLT, HEX SOCKET
ボルト 六角穴
M06X025 ゼンネジ
15 W1024A 2 WASHER, LOCK
ワッシャ スプリング
6M/M
16 2EKHFJ017501 1 BOX, INTERFACE
BOX インタフェース
17 K5256A 4 SCREW, HEX SOCKET BUTTON
小ネジ 六角穴ボタン
M03X008
18 W1021A 4 WASHER, LOCK
ワッシャ スプリング
3M/M
18.1 W1040R 4 WASHER, FLAT
ワッシャ 平
3M/MX0.5X7(1W-3)(3カクロ)
19 PM51092 1 PLATE
プレート
20 H5293A 2 BOLT, HEX SOCKET
ボルト 六角穴
M04X025
21 W1022A 2 WASHER, LOCK
ワッシャ スプリング
4M/M
22 H2093W 1 PIN, PARALLEL
ピン 平行
φ04X10 B種(h8)
23 PB47671 1 COVER, WIRING
カバー 配線
24 K5255H 2 SCREW, HEX SOCKET BUTTON
小ネジ 六角穴ボタン
M03X005
25 W1021A 2 WASHER, LOCK
ワッシャ スプリング
3M/M
26 PM61843 1 STAND
スタンド
27 H5343A 2 BOLT, HEX SOCKET
ボルト 六角穴
M08X030
28 W1025A 2 WASHER, LOCK
ワッシャ スプリング
8M/M
29 S2025A 6 SHEET
シート
CTAM1
30 K5172M 6 SCREW, C/R TRUSS
小ネジ 十穴トラス
M04X008(3カ シロ)
31 K1139H 6 BAND, TIE
バンド 結束
AB-100
32 PZ31721 2 GUIDE, RAIL
ガイド レール
33 H5276A 8 BOLT, HEX SOCKET
ボルト 六角穴
M03X010
34 W1021A 8 WASHER, LOCK
ワッシャ スプリング
3M/M
35 PM51152 2 HOLDER, SHAFT
受け シャフト
36 H5290A 4 BOLT, HEX SOCKET
ボルト 六角穴
M04X015
37 W1022A 4 WASHER, LOCK
ワッシャ スプリング
4M/M
38 PX06031 1 SEAL, BAR CODE
シール バーコード
unit serial number
39 PM01BE2 2 BOLT
ボルト
40 W1025A 2 WASHER, LOCK
ワッシャ スプリング
8M/M
41 PZ14011 1 SPRING
スプリング
42 PZ14001 1 SPRING
スプリング
43 PM80251 2 HOLDER, SHAFT
受け シャフト
44 H5290A 4 BOLT, HEX SOCKET
ボルト 六角穴
M04X015
45 W1022A 4 WASHER, LOCK
ワッシャ スプリング
4M/M
46 T30046 2 KNOB
ツマミ
NBM4-16-10
47 PM70621 2 SPACER
スペーサ
48 AA2MD01 2 KNOB
ツマミ
11
PTS- J I GFI FEEDER- 10

JIG, INSPECTION
治具 検査
AA5AE29
No. Drg.No. & Code No. QTY Description Rating Remarks
番号 図番 & コード番号 個数 品名 規格 備考
49 PM79583 1 BKT, SLIDE
BKT スライド
50 H5281A 4 BOLT, HEX SOCKET
ボルト 六角穴
M03X025
51 W1021A 4 WASHER, LOCK
ワッシャ スプリング
3M/M
52 W1040R 4 WASHER, FLAT
ワッシャ 平
3M/MX0.5X7(1W-3)(3カクロ)
53 PM66396 1 BKT, SLIDE
BKT スライド
54 H5276A 4 BOLT, HEX SOCKET
ボルト 六角穴
M03X010
55 W1021A 4 WASHER, LOCK
ワッシャ スプリング
3M/M
56 H54255 1 BOLT, HEX SOCKET
ボルト 六角穴
M03X015(3カ シロ)
57 W61562 1 WASHER
ワッシャ
TWB-3-3W
61 XP00131 2 PIN
ピン
12
PTS- J I GFI FEEDER- 10