PTS-JIGFIFEEDER-10.pdf - 第29页
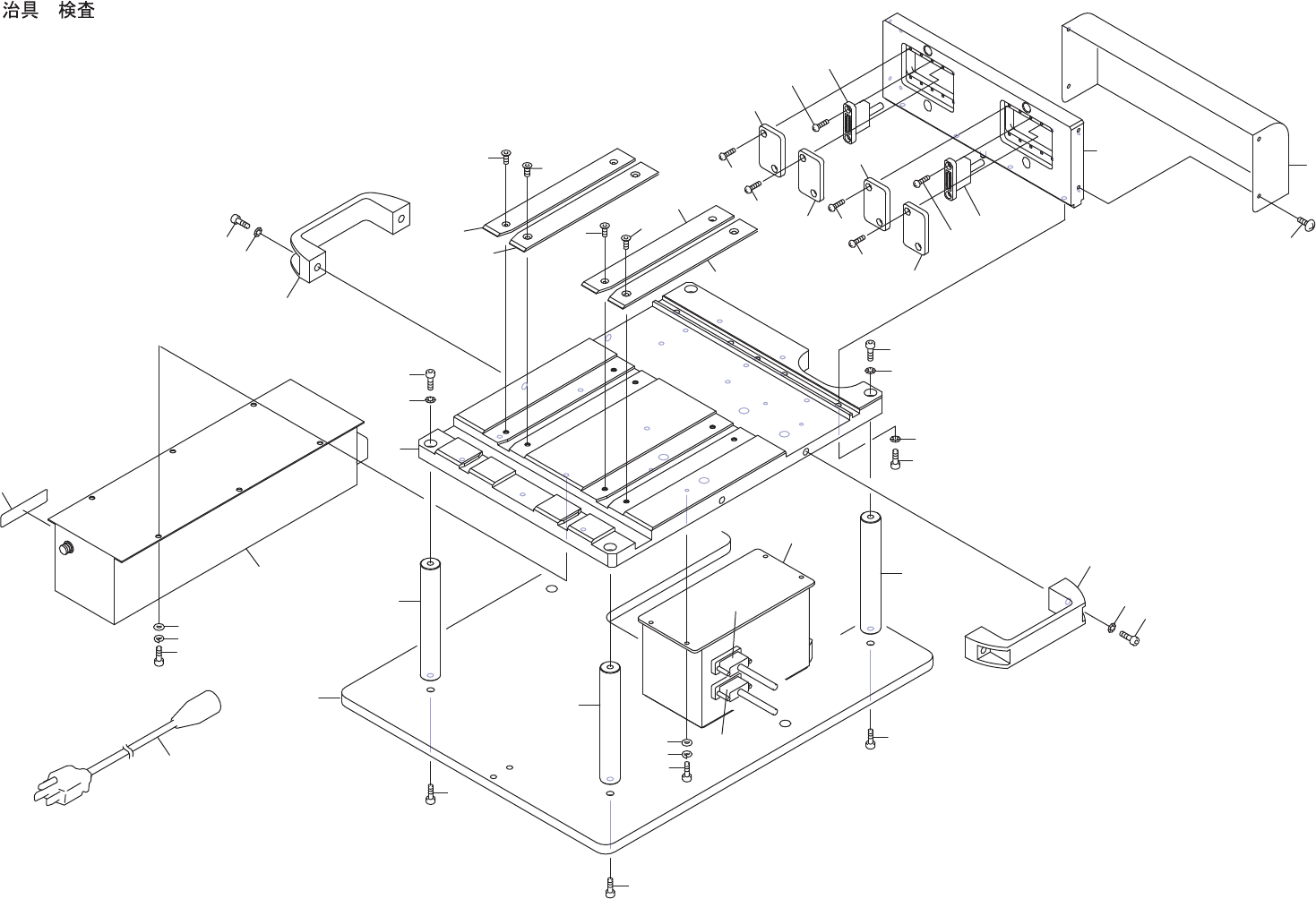
JIG, INSPECTION 治具 検査 AA44K20 No. Drg.No . & Cod e No. QTY Description Rating Remarks 番号 図 番 & コード 番 号 個数 品 名 規 格 備考 1 2MDLFW 008 701 1 PLATE プレー ト 2 2MDLFW 008 801 4 SUPPORT CO LUMN 支柱 3 H 54 27B 4 BOLT , HEX S…

8
9
26
28
28
24
3
3
3
4
5
6
15
15
17
17
16
16
18
18
4
5
19
26.1
7
10
11
21
21
32
32
22
22
22
22
21
30
31
21
12
13
14
1
12
13
14
2
2
2
25
25.1
25.2
27
27.1
27.2
35
JIG, INSPECTION
AA44K20
28
PTS- J I GFI FEEDER- 10

JIG, INSPECTION
治具 検査
AA44K20
No. Drg.No. & Code No. QTY Description Rating Remarks
番号 図番 & コード番号 個数 品名 規格 備考
1 2MDLFW008701 1 PLATE
プレート
2 2MDLFW008801 4 SUPPORT COLUMN
支柱
3 H5427B 4 BOLT, HEX SOCKET
ボルト 六角穴
M05X012(3カシロ)
4 H5427E 4 BOLT, HEX SOCKET
ボルト 六角穴
M05X018(3カ シロ)
5 W1012A 4 WASHER, CONICAL
ワッシャ 皿
M-5-L
6 2MDLFW008603 1 BASE
ベース
7 2MDLFW008501 1 PLATE
プレート
8 H5426N 4 BOLT, HEX SOCKET
ボルト 六角穴
M04X015(3カ シロ)
9 W1011A 4 WASHER, CONICAL
ワッシャ 皿
M-4-L
10 PB09161 1 COVER
カバー
11 K5171S 4 SCREW, C/R TRUSS
小ネジ 十穴トラス
M03X006(3カ シロ)
12 T5000S 2 HANDLE
取手
AGS110
13 H54241 4 BOLT, HEX SOCKET
ボルト 六角穴
M06X015(3カシロ)
14 W1013A 4 WASHER, CONICAL
ワッシャ 皿
M- 6-H
15 PM14974 2 PLATE, GUIDE
プレート ガイド
16 K5357L 4 SCREW, HEX SOCKET COUNTERSUNK
小ネジ 六角穴皿
M03X006(3カ シロ)
17 PM14984 2 PLATE, GUIDE
プレート ガイド
18 K5357L 4 SCREW, HEX SOCKET COUNTERSUNK
小ネジ 六角穴皿
M03X006(3カ シロ)
19 PX06102 1 SEAL, BAR CODE
シール バーコード
unit serial number
21 2MDLFW004601 4 COVER
カバー
22 K5171T 8 SCREW, C/R TRUSS
小ネジ 十穴トラス
M02.5X005(3カ シロ)
24 XB03464 1 BOX, POWER SUPPLY
BOX 電源
25 H5426K 6 BOLT, HEX SOCKET
ボルト 六角穴
M04X008(3カ シロ)
25.1 W1106D 6 WASHER, LOCK
ワッシャ スプリング
4M/M(3カ シロ)
25.2 W1108S 6 WASHER, FLAT
ワッシャ 平
4M/MX0.8X9(1W-4)(3カシロ)
26 XB02444 1 BOX, INTERFACE
BOX インタフェース
26.1 XK06131 1 BOARD, PRINTED CIRCUIT
基板 プリント
27 H54252 4 BOLT, HEX SOCKET
ボルト 六角穴
M03X008(3カ シロ)
27.1 W1106C 4 WASHER, LOCK
ワッシャ スプリング
3M/M(3カ シロ)
27.2 W1108B 4 WASHER, FLAT
ワッシャ 平
3M/MX0.5X7(3カシロ)
28 XH00970 2 HARNESS
ハーネス
30 XH01600 1 HARNESS
ハーネス
31 XH01590 1 HARNESS
ハーネス
32 XP00133 4 PIN
ピン
35 RH19631 1 HARNESS
ハーネス
29
PTS- J I GFI FEEDER- 10

2
3
1
4
5
6
5
6
5
5
6
6
5
6
7
7
7
7
8
8
8
8
8
8
8
8
7
8
8
7
8
8
9
10
10
11
12
10
10
10
10
12
12
12
12
12
BUCKET
AA54K07
DETAIL A31
30
PTS- J I GFI FEEDER- 10