PTS-JIGFIFEEDER-10.pdf - 第26页
1 8 9 2 25 26 24 3 3 3 4 5 4 5 6 7 10 11 12 13 14 15 15 17 17 16 16 18 21 21 32 18 32 22 19 12 22 22 22 21 30 31 21 13 14 2 2 25.1 25.2 27 27.1 27.2 35 JIG, INSPECTION AA87523 2 6 P TS - J I G FI FE E D E R - 1 0

MEASURMENT DEVICE
検測器
AA8KL01
No. Drg.No. & Code No. QTY Description Rating Remarks
番号 図番 & コード番号 個数 品名 規格 備考
1 PM0DDE0 1 BLOCK
ブロック
2 PM0DDF0 1 SHAFT
シャフト
3 K4168B 1 GAUGE, DIAL
ゲージ ダイヤル
LT-316
4 N4018T 1 SCREW, HEX SOCKET SET
ネジ 六角穴止め
M03X003 ヒラサキ
25
PTS- J I GFI FEEDER- 10

1
8
9
2
25
26
24
3
3
3
4
5
4
5
6
7
10
11
12
13
14
15
15
17
17
16
16
18
21
21
32
18
32
22
19
12
22
22
22
21
30
31
21
13
14
2
2
25.1
25.2
27
27.1
27.2
35
JIG, INSPECTION
AA87523
26
PTS- J I GFI FEEDER- 10

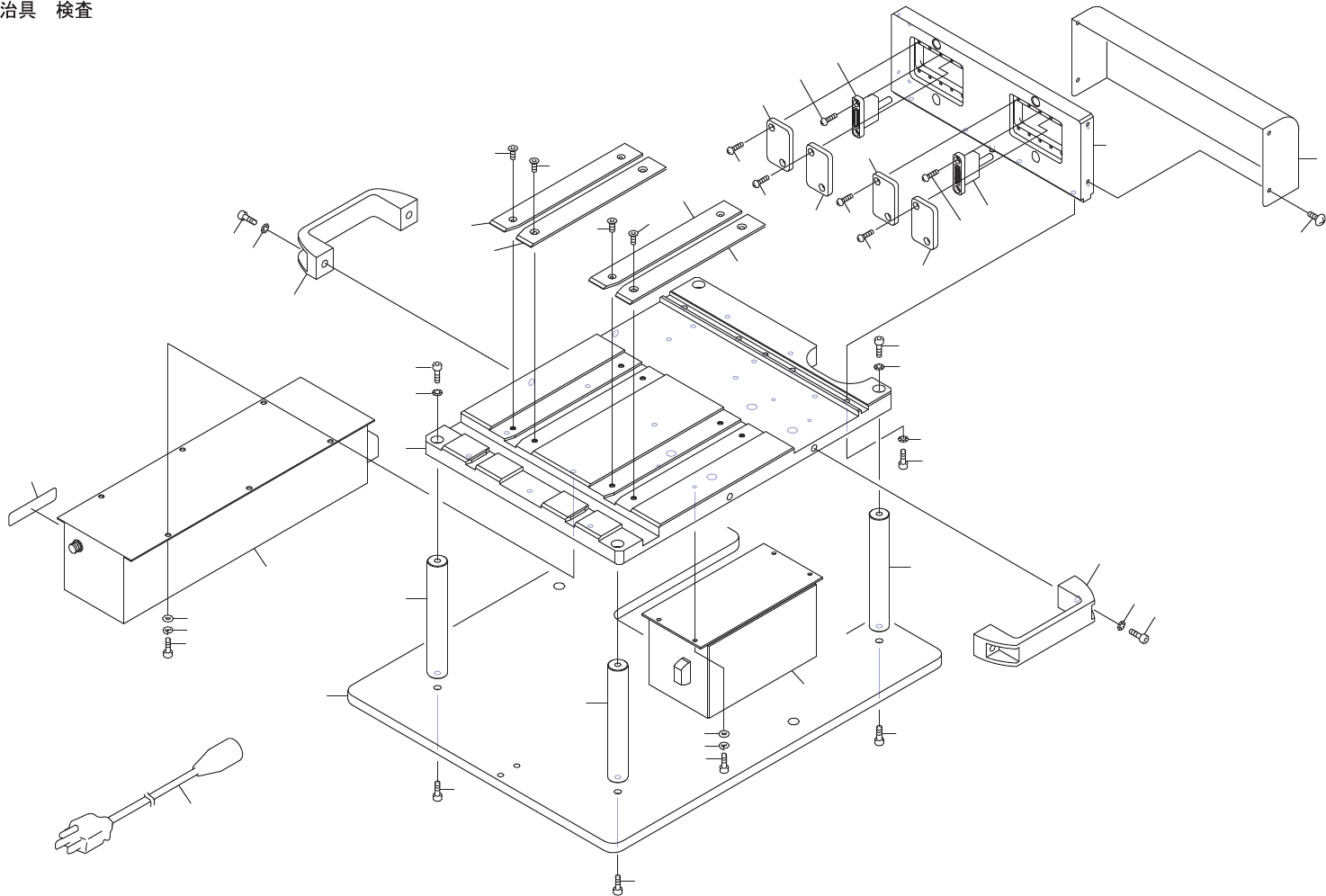
JIG, INSPECTION
治具 検査
AA87523
No. Drg.No. & Code No. QTY Description Rating Remarks
番号 図番 & コード番号 個数 品名 規格 備考
1 2MDLFW008701 1 PLATE
プレート
2 2MDLFW008801 4 SUPPORT COLUMN
支柱
3 H5427B 4 BOLT, HEX SOCKET
ボルト 六角穴
M05X012(3カシロ)
4 H5427E 4 BOLT, HEX SOCKET
ボルト 六角穴
M05X018(3カ シロ)
5 W1012A 4 WASHER, CONICAL
ワッシャ 皿
M-5-L
6 2MDLFW008603 1 BASE
ベース
7 2MDLFW008501 1 PLATE
プレート
8 H5426N 4 BOLT, HEX SOCKET
ボルト 六角穴
M04X015(3カ シロ)
9 W1011A 4 WASHER, CONICAL
ワッシャ 皿
M-4-L
10 PB09161 1 COVER
カバー
11 K5171S 4 SCREW, C/R TRUSS
小ネジ 十穴トラス
M03X006(3カ シロ)
12 T5000S 2 HANDLE
取手
AGS110
13 H54241 4 BOLT, HEX SOCKET
ボルト 六角穴
M06X015(3カシロ)
14 W1013A 4 WASHER, CONICAL
ワッシャ 皿
M- 6-H
15 PM14974 2 PLATE, GUIDE
プレート ガイド
16 K5357L 4 SCREW, HEX SOCKET COUNTERSUNK
小ネジ 六角穴皿
M03X006(3カ シロ)
17 PM14984 2 PLATE, GUIDE
プレート ガイド
18 K5357L 4 SCREW, HEX SOCKET COUNTERSUNK
小ネジ 六角穴皿
M03X006(3カ シロ)
19 PX02052 1 SEAL, BAR CODE
シール バーコード
unit serial number
21 2MDLFW004601 4 COVER
カバー
22 K5171T 8 SCREW, C/R TRUSS
小ネジ 十穴トラス
M02.5X005(3カ シロ)
24 XB03464 1 BOX, POWER SUPPLY
BOX 電源
25 H5426K 6 BOLT, HEX SOCKET
ボルト 六角穴
M04X008(3カ シロ)
25.1 W1106D 6 WASHER, LOCK
ワッシャ スプリング
4M/M(3カ シロ)
25.2 W1108S 6 WASHER, FLAT
ワッシャ 平
4M/MX0.8X9(1W-4)(3カシロ)
26 XB02271 1 BOX
BOX
27 H54252 4 BOLT, HEX SOCKET
ボルト 六角穴
M03X008(3カ シロ)
27.1 W1106C 4 WASHER, LOCK
ワッシャ スプリング
3M/M(3カ シロ)
27.2 W1108B 4 WASHER, FLAT
ワッシャ 平
3M/MX0.5X7(3カシロ)
30 XH01111 1 HARNESS
ハーネス
31 XH01080 1 HARNESS
ハーネス
32 XP00133 4 PIN
ピン
35 RH19631 1 HARNESS
ハーネス
27
PTS- J I GFI FEEDER- 10