QEJM1A-E-MPA-34.pdf - 第130页
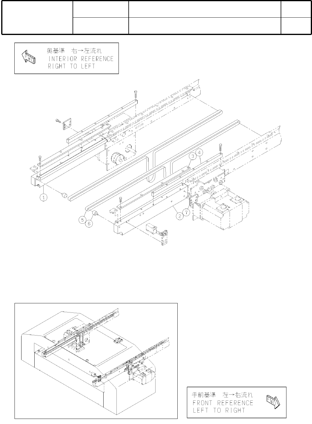
3-A 上流延長 コ ン ベア : 305 mm Upstream Extension Conveyor:305mm パー ツレイ アウト Kit No. キ ット 品番 Kit Name キ ット 名称 N610003226AA セクション No . PARTS LAYOUT Section No. - - S5 ( KN610003226AA-03-1 )

Ref
No.
Remarks
R
1
Q'ty
2
PanaPro CVT対応ユニット(バーコードリーダースタンド)
PanaPro CVT Support Unit(Bar Code Reader Stand)
イラスト
No.
Part No.
品 名品番 数量
R
2
パーツリスト
Kit No.
キット
品番
Kit Name
キット名称
N610004734AA
Part Name
備 考
セクション
No
.
PARTS LIST
Section No.
R
3
PLATE
1
1 N210009757AA
BRACKET
1
2 N210008000AA
BRACKET
1
3 N210009758AA
SCREW
3
4 N510018282AA
Cross recessed Truss head machine screw M4X8-4.8 A2J (Trivalent)
SCREW
2
5 N510006560AA
Stainless+UNC(PAN)Unified machine screw #4-40X3/4
S4
-
-
( KN610004734AA-01 )

3-A
上流延長
コンベア
:
305
mm
Upstream Extension Conveyor:305mm
パーツレイアウト
Kit No.
キット
品番
Kit Name
キット
名称
N610003226AA
セクション
No
.
PARTS LAYOUT
Section No.
-
-
S5
( KN610003226AA-03-1 )

Ref
No.
Remarks
R
1
Q'ty
3-A
上流延長
コンベア
:
305
mm
Upstream Extension Conveyor:305mm
イラスト
No.
Part No.
品 名品番 数量
R
2
パーツリスト
Kit No.
キット
品番
Kit Name
キット名称
N610003226AA
Part Name
備 考
セクション
No
.
PARTS LIST
Section No.
R
3
FRAME
1
1 N210001589AC
FRAME
1
2 N210001590AC
GUIDE
2
3 N210001591AB
BEAM
2
4 KXFB02KPB00
BELT
2
5 N510004586AA XVT-952 8.5X1535E
PULLEY
2
6 N510010794AA MB054000
PLATE
2
7 N210024738AA
S6
-
-
( KN610003226AA-03-1 )