XPM2-Site_Preparation.pdf - 第12页
Site Preparation & Installation Section: 2 Page: 12 Revision Date: April 2005

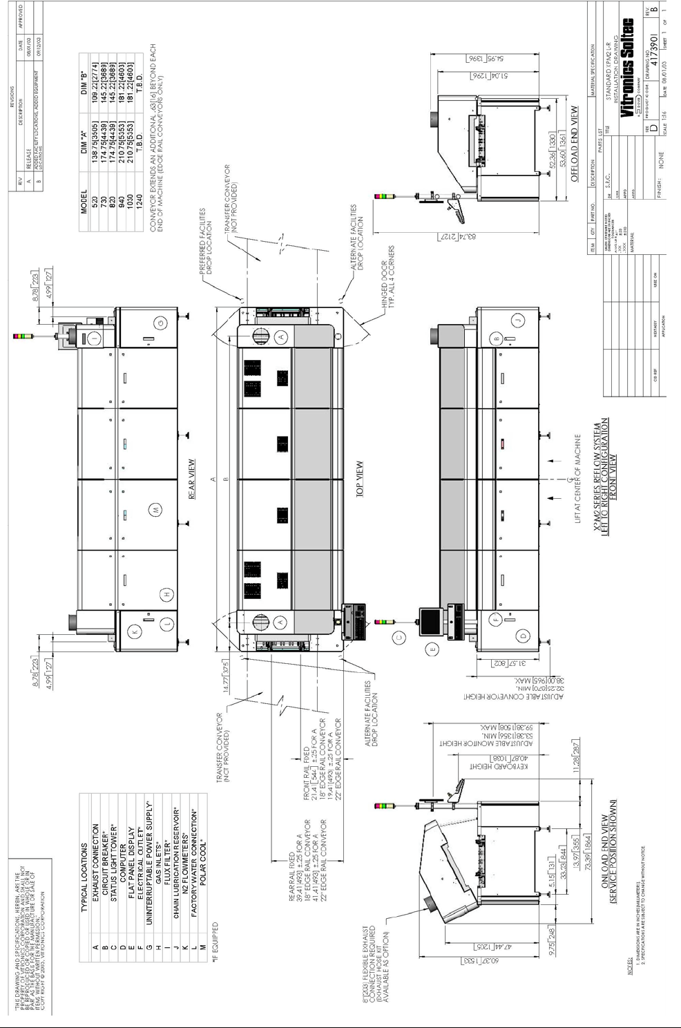
Site Preparation & Installation Section: 2 Page: 11 Revision Date: April 2005
ROOM PLANNING
XPM
2
MODEL
520 730 / 820 940 / 1030 1240
LENGTH (in/cm) 139 / 353 175 / 445 211 / 536 247 / 630
WIDTH (in/cm) 52 / 132 52 / 132 52 / 132 52 / 132
HEIGHT (in/cm) 57 / 144 57 / 144 57 / 144 57 / 144
WEIGHT (lb/kg) 2800 / 1275 3950 / 1800 5000 / 2275 6100 / 2770
Oven And Skid
LENGTH (in/cm) 172 / 379 208 / 528 244 / 538 280 / 617
WIDTH (in/cm) 67 / 171 67 / 171 67 / 171 67 / 171
HEIGHT (in/cm) 65 / 165 65 / 165 65 / 165 65 / 165
WEIGHT (lb/kg) 3000 / 1360 4200 / 1905 5225 / 2375 6360 / 2885
Oven And Crate
LENGTH (in/cm) 177 / 450 213 / 541 249 / 633 285 / 724
WIDTH (in/cm) 67 / 171 67 / 171 67 / 171 67 / 171
HEIGHT (in/cm) 76 / 193 76 / 193 76 / 193 76 / 193
WEIGHT (lb/kg) 3425 / 1555 4850 / 2200 5950 / 2700 6885 / 3125
Oven Clearances
A full 36” clearance space should be provided around front and rear of the oven to allow for a
safe working area. All applicable Codes and Regulations should be considered when
providing service space. Oven Height listed is with the “Hood down” and does not include
ductwork.
Access
Doors and other openings should be large enough to accommodate the personnel and equipment involved in
moving and placing the oven. Allow approximately 6" (15 CM) of clearance above the oven for lifting.
Floor
The oven must be located on a level, dust free concrete floor not subject to vibration from other equipment or
passing fork trucks. Vibration in the floor may cause problems with the oven 's conveyors and the printed
circuit boards being processed.
Air Conditioning
Air Conditioning Load for all oven Models is not more than 35,000 BTU/ hour.
The system is designed to operate within the following environmental conditions:
Temperature: 55 to 90
o
F (13
to 32
o
C) Humidity: 20 to 90% Non Condensing

Site Preparation & Installation Section: 2 Page: 12 Revision Date: April 2005

Site Preparation & Installation Section: 2 Page: 13 Revision Date: April 2005
FACILITY SERVICES & CONNECTIONS
Exhaust Specifications
Number of Connections per Oven 2
Oven Exhaust Duct Size 8”
Facility Duct Material High Temperature Flexible Hose – Rated For 125
0
C Minimum
Onload Stack ( Entrance ) Offload Stack ( Exit )
CFM IWC CFM IWC
Standard Air or Nitrogen 250 - 300 -0.10 to -0.20 250 - 300 - 0.09 to -0.14
If Equipped with Integrated
Exhaust Stack Filter Option
250 - 300 - 0.90 to -1.30 250 - 300 - 0.12 to - 0.17
CFM = Cubic Feet Per Minute
IWC = Inches of Water Column
Note: On ovens equipped with the Exhaust Sensing System option, insufficient exhaust flow will cause an
oven alarm condition if the exhaust flow is below the minimum setpoint.
Exhaust Measurement Detail End View - Service Position Shown