P-199-001e.pdf - 第88页
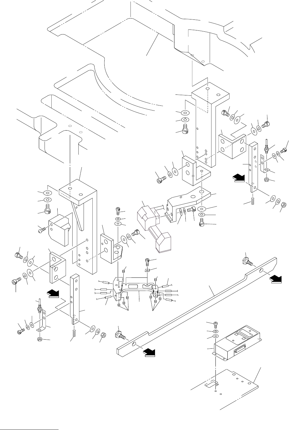
MODEL TCM-3700-2 0109-001 86 ਛ㑆ࡌࠬㇱ MIDDLE BASE SECTION Fig. 4-5 ㇱຠᆫᬌޔࡁ࠭࡞ᬌㇱ Component Posture Detector, Nozzle Detector 1 2 3 4 5 6 7 8 9 10 11 12 13 14 15 16 17 18 19 26 41 27 28 29 33 34 35 45 46 47 48 49 50 51 52 3…

MEMO

MODEL TCM-3700-2
0109-001
86
ਛ㑆ࡌࠬㇱ MIDDLE BASE SECTION
Fig. 4-5
ㇱຠᆫᬌޔࡁ࠭࡞ᬌㇱ
Component Posture Detector,
Nozzle Detector
1
2
3
4
5
6
7
8
9
10
11
12
13
14
15
16
17
18
19
26
41
27
28
29
33
34
35
45
46
47
48
49
50
51
52
38
39
See Fig.1-1
Key No.13
3
4
5
6
7
8
9
10
11
12
13
15
17
16
18
14
15
15
19
44
43
42
31
30
31
32
32
32
32
36
37
22
23
24
21
20
21
22
23
24
A
B
56
55
54
49
See Fig.4-1
Key No.11
A
B
TCM-3700-2
TCM-3700
Fig.4-5

MODEL TCM-3700-2
0109-001
87
Key No. PART No. PART NAME Q’ty REMARKS
NOTE
4-5
1 630 052 1023 BASE 1 739E--01B-005
2 630 052 1030 BASE 1 739E--01B-008
3 411 141 4305 WASHER V 6X12.5X1.6 4 FW6
4 411 141 3001 WASHER SPR 6 4 SW6
5 630 000 7909 BOLT,HEX-SCT 4 M6X25
6 630 048 7626 SUPPORT 2 739E--01B-012
7 630 001 0220 WASHER 4 739E--01H-008
8 411 141 6705 WASHER SPR 5 4 SW5
9 630 000 7770 BOLT,HEX-SCT 4 M5X20
10 630 048 7633 SUPPORT 2 739E--01B-013
11 630 001 0220 WASHER 4 739E--01H-008
12 411 141 6705 WASHER SPR 5 4 SW5
13 630 000 7770 BOLT,HEX-SCT 4 M5X20
14 630 048 7718 BRACKET 2 739E--01B-015
15 630 000 3369 SWITCH,LIMIT 2 LS5, LS6 739E--01H-001
16 411 141 4008 WASHER V 4X9X0.8 4 FW4
17 411 141 2905 WASHER SPR 4 4 SW4
18 630 000 7626 BOLT,HEX-SCT 4 M4X10
19 630 001 3030 SPRING,COMP 2 739E--01H-005
20 630 048 7695 PLATE 1 739E--01B-014
21 630 029 4286 PIN,GUIDE 2 739E--01B-035
22 411 141 4107 WASHER V 5X10X1 2 FW5
23 411 141 6705 WASHER SPR 5 2 SW5
24 411 141 0505 NUT HEX 5 2 M5
26 630 069 0217 SUPPORT 1 739E--01B-009
27 630 001 0220 WASHER 2 739E--01H-008
28 411 141 6705 WASHER SPR 5 2 SW5
29 630 000 7770 BOLT,HEX-SCT 2 M5X20
30 630 048 7602 SUPPORT 1 739E--01B-010
31 630 035 8094 SENSOR,PELEC 4 PHS19, PHS20, PHS21, PHS22
739E--01H-003
32 630 000 8883 SET SCREW 8 M3X4 SET
33 630 001 0213 WASHER 2 739E--01H-007
34 411 141 2905 WASHER SPR 4 2 SW4
35 630 000 7657 BOLT,HEX-SCT 2 M4X16
36 630 050 1162 HOLDER 2 739E--01B-036
37 630 000 7497 BOLT,HEX-SCT 2 M3X4
38 630 051 8467 COVER 1 739E--01B-039
39 411 051 1708 SCR TRS 4X6 2 M4X6 TRS
41 630 048 7572 SUPPORT 1 739E--01B-006
42 630 001 0220 WASHER 2 739E--01H-008
43 411 141 6705 WASHER SPR 5 2 SW5
44 630 000 7770 BOLT,HEX-SCT 2 M5X20
45 630 048 7589 SUPPORT 1 739E--01B-007
46 630 001 0220 WASHER 2 739E--01H-008
47 411 141 6705 WASHER SPR 5 2 SW5
48 630 000 7770 BOLT,HEX-SCT 2 M5X20
49 630 075 6111 SENSOR,PELEC 1 PHS23, PHS23 Amp 739E--01H-011
50 411 141 4107 WASHER V 5X10X1 2 FW5
51 411 141 6705 WASHER SPR 5 2 SW5