SM471_TechnicalReference(Eng_Ver1.5).pdf - 第120页
Page SAMSUNG TECHWIN 11 0 SM471 R ear Feeder Board Interface CN1 1P 34P REAR FEEDER I/F BOARD REAR FEEDER INPUT EXT B/D +24V GND GND +24V /IO_RESET +24G +12G +12V CAN_H CAN_L CAN_H CAN_L /IO_RESET +24G +12G +12V 4 5 6 4 …

Page
SAMSUNG TECHWIN
109
SM471
Front Feeder Board Interface (2/2)
NO. Lev. PART NO. PART NAME Q'TY Old No. Supply Supply LT Reference
1 J90800838D LEFT FDR SOL OUTPUT CABLE ASSY 1 SM_FD003
2 AM03-005455A CABLE ASSY-FRONT FDR CTRL PWR_J1L 1 SM471-FD101
3 AM03-005456A CABLE ASSY-F FDR PWR RELAY 1 SM471-FD002

Page
SAMSUNG TECHWIN
110
SM471
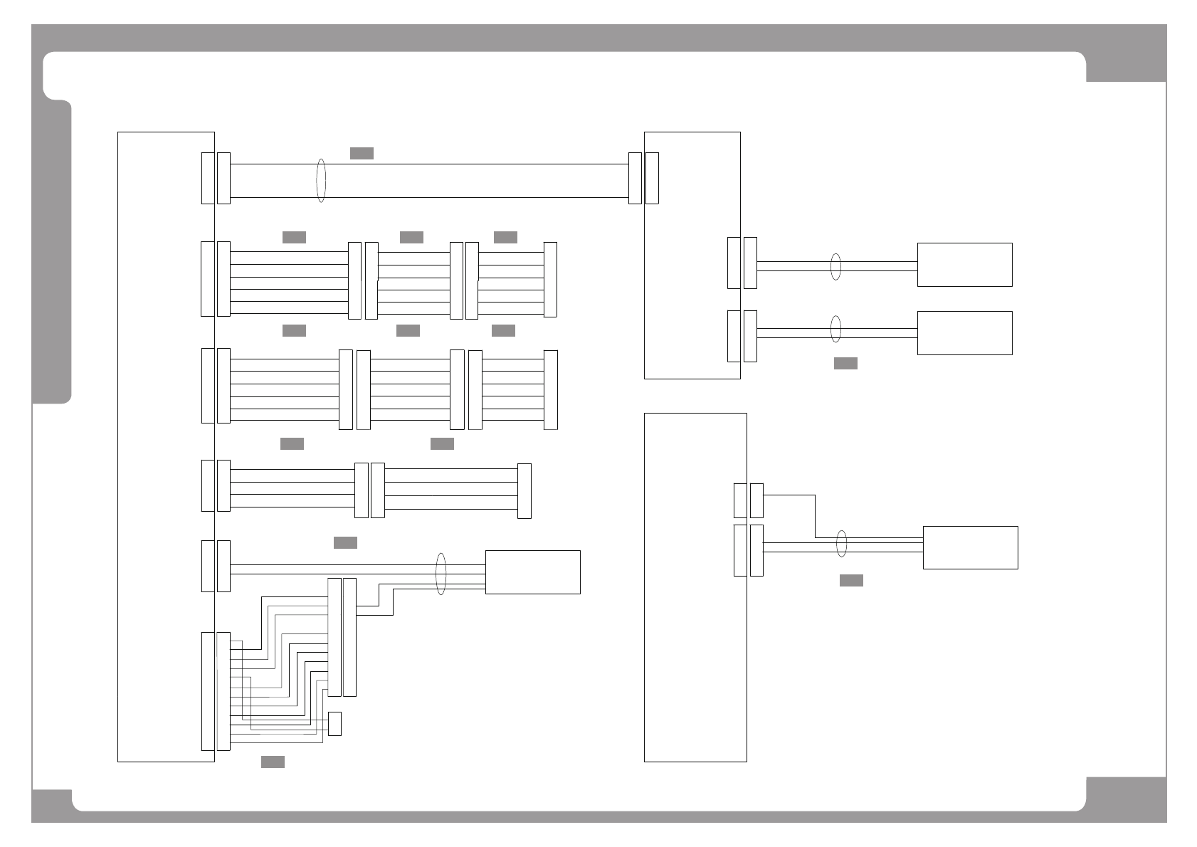
Rear Feeder Board Interface
CN11P
34P
REAR FEEDER I/F
BOARD
REAR FEEDER
INPUT EXT B/D
+24V
GND
GND
+24V
/IO_RESET
+24G
+12G
+12V
CAN_H
CAN_L
CAN_H
CAN_L
/IO_RESET
+24G
+12G
+12V
4
5
6
4
5
6
4P
CN4P
6P
CN3P
4
5
6
4
5
6
11
60
~
60
CN5S
2
2
3
3
CN3S
1
1
6P
CN2P
3
3
CN2S
1
2
1
2
AXIO BOARD #3
CN3
REAR FLAT CABLE
HD-CAN
CN5P
60P
SC-J2R-2
SAFETY CONTROL B/D
CN22
~
4
1
4
1
CN4S
22
33
11
60
60P
~
60
~
CN6P
CN6S
REAR FEEDER BASE
LEFT B/D
REAR FEEDER BASE
RIGHT B/D
FEEDER #1~#29
FEEDER #30~#58
SM_FD004
11
34
~
34
~
CN11S
11
34
~
34
~
CN1PCN11S
34P
60 60
1
60P
~
CN3P
1
~
CN3S
11
60
60P
~
60
~
CN2P
CN2S
FEEDER #30~#58
RIGHT B/D
REAR FEEDER BASE
SM_FD007
FEEDER #1~#29
REAR FEEDER BASE
LEFT B/D
SM_FD006
FEEDER INPUT(#1~#58)
FEEDER INPUT(#59~#116)
~
~
12 12
CN8P
8P
1
CN8S
1
3
4
5
6
2
1
3
2
1
CAN_H
CAN_L
/IO_RESET
+24G
+12G
+12V
4
5
6
SM471_CA201
SM471_CA101-3
3
4
5
6
2
1
A2
B1
A1
A3
B2
B3
A5
B4
A4
A6
B5
B6
A2
B1
A1
A3
B2
B3
SM471_CA105
SM471_CA105-1
SC-J4R-2
SC-J9L-2
SM471_CA202
A5
B4
A4
A6
B5
B6
A2
B1
A1
B2
A8
B7
A7
B8
+24V
GND
GND
3
2
1
4
SM471_CV101
SM471_SC202
SM_FD005
3
4
5
6
2
1
3
2
1
4
5
6
3
2
1
4
5
6
SM471_CA102-4
REAR FEEDER I/F
BOARD
CN7P
12P
1
CN7S
2
3
4
5
6
7
8
1
2
3
4
5
6
7
8
9
10
11
12
9
10
11
12
1
2
3
4
5
6
7
8
9
10
11
12
1
2
3
4
5
6
7
8
9
10
11
12
SM_FD001
1
2
SM_FD003
NC
[2 ] [3 ]
[1 ]
[4 ]
[1 3 ]
[5 ] [6 ] [7 ]
[8 ] [9 ]
[1 0 ]
[11]
[1 2 ]

Page
SAMSUNG TECHWIN
111
SM471
Rear Feeder Board Interface
NO. Lev. PART NO. PART NAME Q'TY Old No. Supply Supply LT Reference
1 J90800840B FDR INPUT EXT CABLE ASSY SM_FD005 1 SM_FD005
2 AM03-005401A CABLE ASSY-RFDR-REAR_FLAT_CAN_J4R 1 SM471_CA105
3 AM03-005400A CABLE ASSY-CAN_TW_J4R-J9L 1 SM471_CA202
4 AM03-005402A CABLE ASSY-RFDR-REAR_FLAT_CAN_J9L 1 SM471_CA105-1
5 AM03-005394A CABLE ASSY-AXIO_BD_3_RFD_CAN_J3R 1 SM471_CA101-3
6 AM03-005396A CABLE ASSY-AXIO_CAN_FDR_UL_J3R-J8L 1 SM471_CA201
7 AM03-005395A CABLE ASSY-AXIO_BD_3_RFD_CAN_J8L 1 SM471_CA102-4
8 AM03-005432A CABLE ASSY-CONV_I-F_R_FDR_PWR_J2R 1 SM471_CV101
9 AM03-005434A CABLE ASSY-BD_PW_SC_J2R 1 SM471_SC202
10 AM03-005458A CABLE ASSY-R FDR PWR RELAY CABLE ASSY 2 SM471_FD003
11 EP02-000588A FEEDER CN7 EXT CABLE ASSY 2 SM411N-FD001
12 J90800842C RIGHT FDR SENSOR INPUT CABLE AS 1 SM_FD007
13 J90800839D RIGHT FDR SOL OUTPUT CABLE ASSY 1 SM_FD004