KE-3010_KE-3020V_KE-3020VR-Rev05.pdf - 第215页
- 206 - NOTE( 注記 ) #01....FOR EN EN 用 REF.NO NOTE PART NO D E S C R I P T I O N 品 名 Qty 1 E2508-729-0A0 CONNECTOR BR ACKET (30) ASM. コネクタブラケット組 1 2 #01 E2508-729-AA0 CONNECTOR BRACKET ASM. コネクタブラケット組 1 3 B4011-210-000 SP…

- 205 -
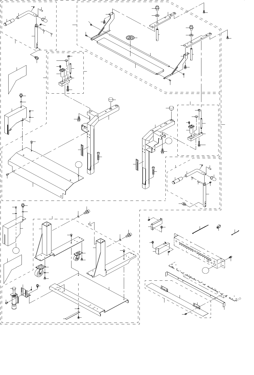
103.M REPLACING OVERALL CHANGER TRUCK COMPONENTS(WITH CONNECTOR BRACKET)(2)
メカ一括交換台車関係(コネクタブラケット有り)(2)
24
18
16
23
17
4
3
5
6
7
9
10
11
12
13
14
15
8
9
8
1
2
22
19
20
21

- 206 -
NOTE( 注記 ) #01....FOR EN EN 用
REF.NO NOTE PART NO D E S C R I P T I O N
品 名
Qty
1 E2508-729-0A0 CONNECTOR BRACKET (30) ASM.
コネクタブラケット組
1
2
#01
E2508-729-AA0 CONNECTOR BRACKET ASM.
コネクタブラケット組
1
3 B4011-210-000 SPACER
基板スペーサ
(4)
4 NM-6030003-SC NUT M3X0.5 TYPE3
六角ナット M3X0.5 3種
(4)
5 SM-4020801-SC SCREW M2 X 8
なべ小ねじ M2 L=8
(4)
6 HX-0029400-00 FIXED BASE
固定ベース
(1)
7 SM-4030601-SC SCREW M3 X 6
なべ小ねじ M3X0.5 L=6
(1)
8 PJ-3010651-06 KNIFE UNION
メスユニオン
(2)
9 E2904-700-000 SOCKET
ソケット
(2)
10 PJ-2300061-00 UNION 06
隔壁用ユニオン 06
(1)
11 PJ-3050600-04 TEE
チーズ
(1)
12 PJ-0320090-05 NIPPLE
エアカプラニップル
(1)
13 E2642-721-000 CONNECTOR NO. LABEL
コネクタNO.ラベル
(1)
14 BT-0600400-EC TUBE HOSE, BLUE
ウレタンホース 青
(1.3)
15 EA-9500B01-00 CABLE BAND
束線バンド
(4)
16 E8615-715-0A0 FEEDER BANK CIRCUIT BOARD ASM.
フィーダバンク基板組
(2)
17 E8618-721-0A0 FEEDER I/F BOARD ASM.
フィーダI/F基板組
(1)
18 E2508-729-000 CONNECTOR BRACKET (30)
コネクタブラケット
(1)
19
#01
HN-0017900-0B NOISE FILTER
ノイズフィルタ
(2)
20
#01
HN-0017900-0D FERRITE CLAMP
フェライトクランプ
(4)
21
#01
HK-0429900-8A CAP
キャップ
(1)
22
#01
HN-0014900-00 CLAMP FILTER(L)
クランプフィルタ
(3)
23 SM-4860601-SC SCREW M2.6 L=6
なべ小ねじ M2.6 L=6
(16)
24 SM-4031201-SC SCREW M3 X 12
なべ小ねじ M3X0.5 L=12
(4)

- 207 -
104.M REPLACING OVERALL CHANGER TRUCK COMPONENTS(WITHOUT CONNECTOR BRACKET)
メカ一括交換台車関係(コネクタブラケット無し)
3
4
5
6
6
8
9
7
10
11
12
13
15
16
14
23
23
24
24
22
25
26
26
27
27
37
31
39
38
29
44
41
33
44
40
42
32
34
35
43
46
45
46
45
49
51
52
53
53
55
55
54
56
57
57
58
71
72
76
73
75
76
75
62
63
64
21
30
A
A
48
83
81
2
B
B
85
84
86
86
87
87
92
90
89
88
91
17
19
18
28
36
50
50
59
60
59
60
66
68
70
64
63
62
66
68
69
65
74
73
74
77
82
82
61
20
61
1
70
47
67
69
67
69
69
65
80
93
78
79