TR5DNR_TR5DNX-Rev05.pdf - 第6页
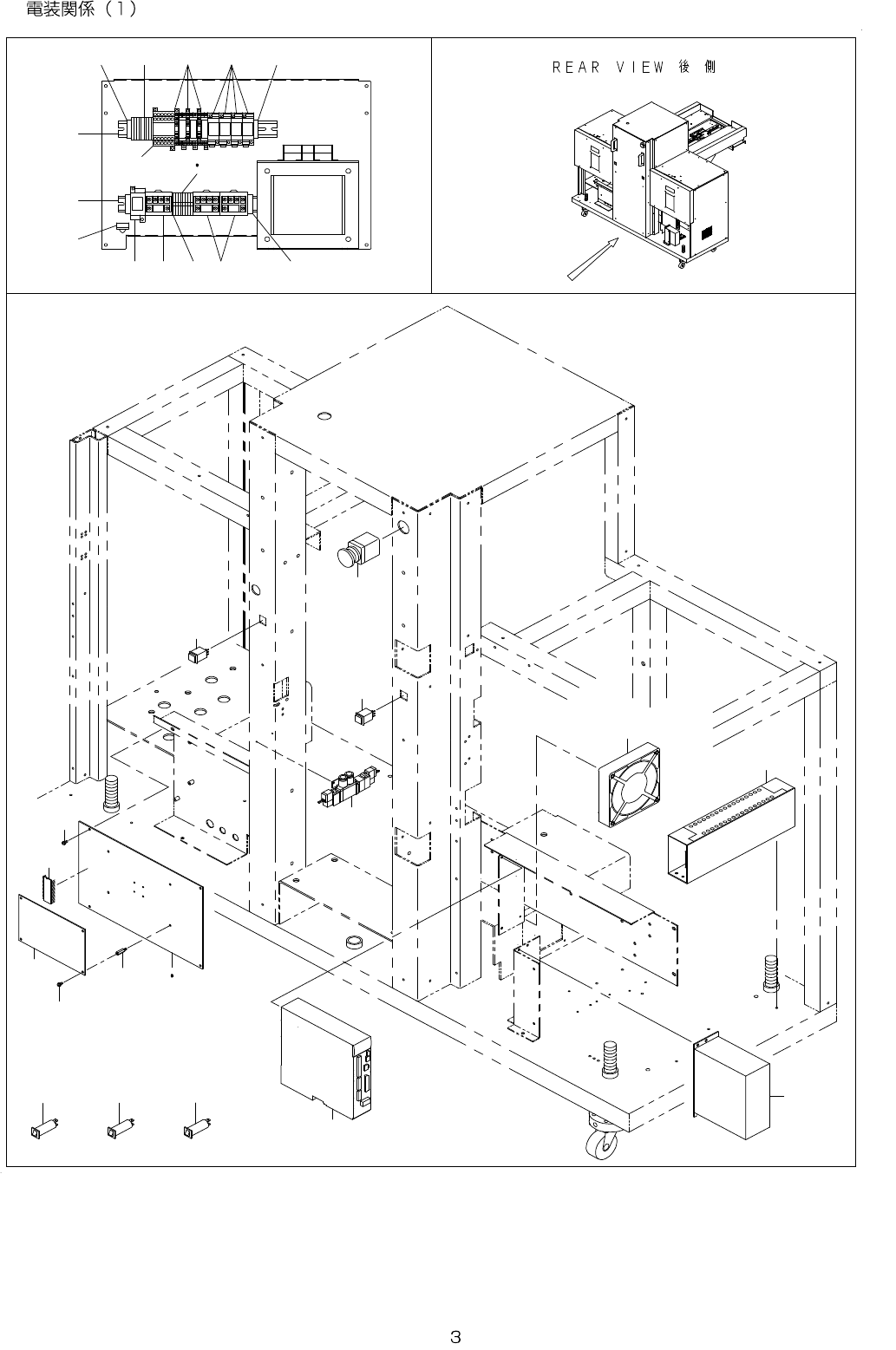
- - 2. ELECTRICAPPARA TUSCOMPONENTS(1) 1 4 1 5 1 5 1 8 1 7 1 3 1 2 4 2 3 1 5 8 3 2 1 6 1 0 1 9 1 1 9 1 3 2 1 2 0 2 2 2 3 2 4 2 5 2 6 2 7 2 8 3 0 3 3 2 9 6 7

- -
REF.NO NOTE PARTNO DESCRIPTION Qty
1 E6004-723-000 JOINTBLOCKL 1
2
#04
401-90401 JOINT_BLOCK_L_RS_5D 1
3 E1348-700-000 SAFETYCOVERSTOPPER 1
4 E1031-726-000 LIFTERCOVERL 1
5
#01
E5615-723-000 LIFTERCOVERL(CE) 1
6
#02
400-98279 LIFTER_COVER_5D5S_L 1
7
#03
400-98280 LIFTRE_COVER_5D5S_L_EN 1
8
#04
400-98280 LIFTRE_COVER_5D5S_L_EN 1
9 SM-6052502-TN HEXAGONAL-HOLEBOLT 1
10 WP-0531001-SC WASHER 1
11 E2732-721-000 BANKGUIDEROLLER 2
12 SL-6051092-TN BOLT 2
13 E2732-721-000 BANKGUIDEROLLER 2
14 SM-6052502-TN HEXAGONAL-HOLEBOLT 1
15 WP-0531001-SC WASHER 1
16 E1348-700-000 SAFETYCOVERSTOPPER 1
17 E6005-723-000 JOINTBLOCKR 1
18
#04
401-90402 JOINT_BLOCK_R_RS_5D 1
19 E6006-723-000 LIFTERCOVERR 1
20
#02
400-98278 LIFTER_COVER_5D_R 1
21
#04
401-92231 LIFTER_COVER_5D_R_RS 1
22 SL-6051092-TN BOLT 2
23 400-49351 ADJUSTER 3
24 E6002-723-000 CASTERADJUST 4
25 E5012-723-000 CASTER 4
26 SL-6061242-TN BOLT 16
27 NM-6201202-SC NUTM20 7
28 400-48733 BRSUPPORT5D 2
29 SL-4040891-SC SCREWM4L=8 4
30 400-46236 SENSORBRACKET 1
31 SL-4030891-SC SCREWM3X8 2
32 SL-4030691-SC SCREWM3L=6 2
33 400-46236 SENSORBRACKET 1
34 SL-4030891-SC SCREWM3X8 2
35 E6003-723-000 HANDLE 2
36 SM-6062002-TN SCREWM6L=20 4
37 400-49545 STKMMISSETSENSORASM 1
38 400-48732 SENSORBR5D 2
39 SL-4040891-SC SCREWM4L=8 8
40 400-49548 STKSMISSETSENSORASM 1
41 SL-4030691-SC SCREWM3L=6 2

- -
2. ELECTRICAPPARATUSCOMPONENTS(1)
1 4 1 5 1 5
1 8
1 7
1
3
1 2
4
2
3 1
5
8
3 2
1 6
1 0
1 9
1 1
9
1 3
2 12 02 2
2 3 2 4
2 52 6
2 7
2 8
3 0
3 3
2 9
6 7

- -
REF.NO NOTE PARTNO DESCRIPTION Qty
1
#01
E9641-040-000 RELAYMY-2DC-24V 4
2 400-49535 CGSWS.V.CABLEASM 1
3 400-49558 EMERGENCYSW(REAR)ASM 1
4 400-45117 STKMSUPPLYSWASM 1
5 400-45119 STKSSUPPLYSWASM 1
6
#03
400-95838 MAINPCBASM(5D) 1
7
#02
401-37758 MAINPCBAASM(5D) 1
8 HA-0052400-0A CIRCUITPROTECTOR 1
9 400-49509 FANMOTORASM 1
10 400-40687 ZSERVODRVASM 1
11 400-45711 STEPPINGMOTORDRIVER 1
12 HX-0055000-00 POWERSUPPLYUNIT 1
13 HA-0052400-0C CIRCUITPROTECTOR 1
14 HB-0014000-00 RELAY 1
15 HB-0014200-00 RELAY 3
16 400-49516 SURGEABSORBERASM 1
17
#01
HB-0014300-00 SAFETYRELAYUNIT 1
18
#01
HB-0013900-00 RELAY 3
19
#01
400-50015 CARRIERRAIL 1
20
#01
HK-0498500-10 TERMINALBASE 2
21
#01
HK-0498900-0D CONNECTORPARTS 2
22
#01
HK-0498900-00 CONNECTORPARTS 1
23 HK-0498500-10 TERMINALBASE 10
24
#01
HK-0498500-10 TERMINALBASE 8
25 HK-0498900-0D CONNECTORPARTS 2
26 HK-0498900-00 CONNECTORPARTS 2
27 HX-0035400-0G BOARDPARTS 4
28 SL-4030891-SC SCREWM3X8 4
29 SL-4030891-SC SCREWM3X8 4
30 400-41117 SCNPCBASM 1
31 HA-0052400-00 CIRCUITPROTECTOR 1
32 400-50015 CARRIERRAIL 1
33
#02
400-72504 ROM5DNRASM 1