NPM-W2规格书.pdf - 第128页
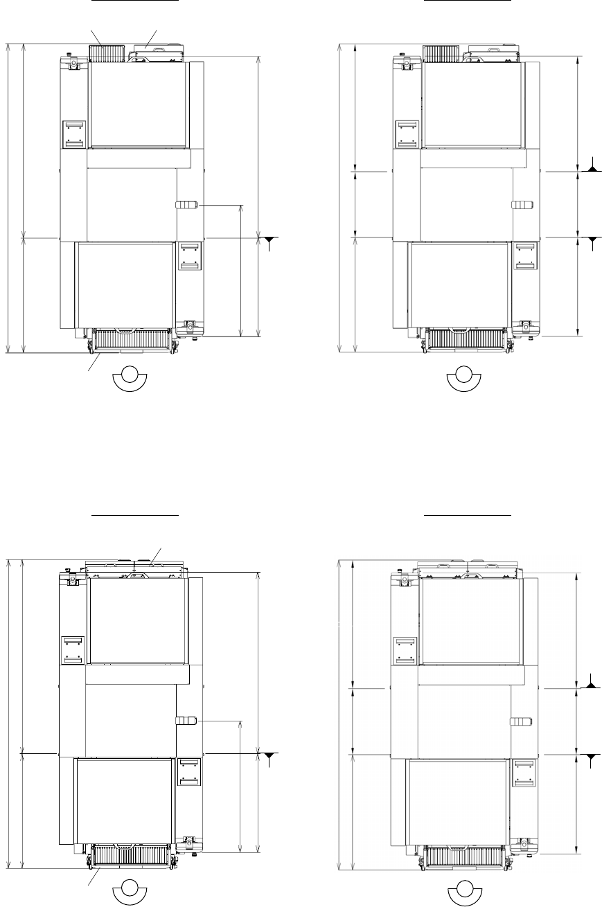
NPM-W2 2015.0428 - 122 - ( 单位 : mm) ■ 调整螺栓的配置图 单轨传送带规格 双轨传送带规格 75 75 1 1 13 Air 475 246 454.5 1 165.5 246 1 001 636 1 41 1.5 2 1 12 700.5 993 120 150 1 263 电源 基板传送基准 前 侧 75 75 1 1 13 Air 475 246 444 605 246 1 001 636 851…

NPM-W2 2015.0428
- 121 -
(单位: mm)
■ 单式托盘供料器连接时
■ 双式托盘供料器连接时
1 616 954
1 095.5
820.5 1 511.5
2 570
1 616 954
1 095.5
820.5 1 511.5
单式托盘供料器13 站供料器座
双式托盘供料器
交换台车
2 570
前 侧
交换台车
前 侧
前 侧
前 侧
1 055.5 943.5
2 570
571
810 951 571 810 951 571
1 055.5 943.5 571
2 570
单轨传送带规格 双轨传送带规格
单轨传送带规格 双轨传送带规格
基板传送基准
基板传送基准
(前侧轨道)
基板传送基准
(后侧轨道)
基板传送基准
基板传送基准
(前侧轨道)
基板传送基准
(后侧轨道)

NPM-W2 2015.0428
- 122 -
(
单位
: mm)
■ 调整螺栓的配置图
单轨传送带规格
双轨传送带规格
75 75 1 113
Air
475
246 454.5 1 165.5 246
1 001 636
1 411.5
2 112
700.5
993 120 150
1 263
电源
基板传送基准
前 侧
75 75 1 113
Air
475
246 444 605 246
1 001 636
851
2 112
690
993 120 150
1 263
电源
基板传送基准
(
前侧轨道
)
前 侧
基板传送基准
(
后侧轨道
)
571
571

NPM-W2 2015.0428
- 123 -
■ 单式托盘供料器
(单位: mm)
※ 托盘供料器高度 896 mm,是 NPM-W2 的基板搬送高度是 900 mm 时的标准值。
可调整范围是: 896 mm
■ 双式托盘供料器
(单位: mm)
※ 托盘供料器高度 838 mm,是 NPM-W2 的基板搬送高度是 900 mm 时的标准值。
可调整范围是: 838 mm
896
※
1 052
985
68
873
828
480
+65
-16.5
基板中心
(750 × 550 mm
基板
)
872
828
542.5
838
※
1 052
986
945
978
353 68
542.5
基板中心
(750 × 550 mm
基板
)
+65
-16.5