CM602 Mechanical parts20161226.pdf - 第41页
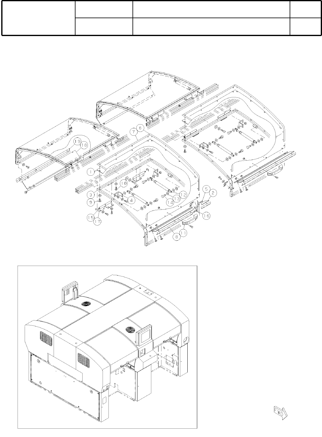
Ref No. Remark s R 1 Q'ty 2-A 全 体 カバー W hole Cover イラスト No. Part No. 品 名 品番 数量 R 2 パーツリスト Kit N o . キット 品 番 Kit Name キット名称 N610040205AA Part Nam e 備 考 セクションN o. PARTS LIST Section No. R 3 COLLAR 4 1 KXFB02U0A00 COVE…

2-A
全
体
カバー
Whole Cover
パーツレイアウト
Kit No.
キット品
番
Kit Name
キット名称
N610040205AA
セクションNo.
PARTS LAYOUT
Section No.
--
M21
( KN610040205AA-25-1 )

Ref
No.
Remarks
R
1
Q'ty
2-A
全
体
カバー
Whole Cover
イラスト
No.
Part No.
品 名品番 数量
R
2
パーツリスト
Kit N
o
.
キット品
番
Kit Name
キット名称
N610040205AA
Part Name
備 考
セクションNo.
PARTS LIST
Section No.
R
3
COLLAR
4
1 KXFB02U0A00
COVER
1
2 N210058617AB
COVER
1
3 N210058817AB
COVER
1
4 N210058620AB
COVER
1
5 N210058818AB
COVER
1
8 KXFB09XNA00
BRACKET
20
9 N210006976AA
BRACKET
8
10 N210062956AA
COVER
2
11 N210021870AC
COVER
2
12 KXFB03RDA00
BRACKET
2
13 N210004500AA
COVER
1
14 N210063783AB
COVER
1
15 N210077152AB
COVER
1
16 N210027314AA
COVER
1
17 N210027315AA
BRACKET
1
18 N210030578AB
BRACKET
1
19 N210030579AB
BRACKET
1
20 N210050031AB
BRACKET
1
21 N210050032AB
COVER
1
22 N210027333AA
NUT-PLATE
4
23 KXFB03UPA00
COVER
1
24 N210079009AA
COVER
1
25 N210079010AA
CAP
2
26 KXF0DLNAA01 CP-328-B-4-ivory(DA KXF0DLNAA01)
BOLT
2
27 N510017614AA
Hexagon socket Flat head bolt M4X10-10.9 A2J (Trivalent)
SCREW
4
28 N510018282AA
Cross recessed Truss head machine screw M4X8-4.8 A2J (Trivalent)
RUBBER-CUSHION
8
29 KXF01E0AA00 C-30-CS-2
JOINT
4
30 KXF06F4AA00 53015030-WM
SWITCH
4
31 N510015338AA
S
D4NS-1BF
SCREW
12
32 N510018255AA
Cross recessed Truss head machine screw M3X8-4.8 A2J (Trivalent)
FAN-GUARD
2
33 KXF07S8AA00 109-619E
COVER
4
34 N210043986AA
COVER
2
35 N210043988AB
COVER
1
36 N210077153AA
CAP
4
37 KXF0DWVGA01 CP-328-B-5 hole process ivory(DDA)
BOLT
4
38 N510017629AA
Hexagon socket Flat head bolt M5X10-10.9 A2J (Trivalent)
WASHER
4
39 N510018762AA
Toothed lock washer 4 External toothed Steel Unichrome white (Trivalent)
M22
--
( KN610040205AA-25-1 )

2-B
全
体
カバー
Whole Cover
パーツレイアウト
Kit No.
キット品
番
Kit Name
キット名称
N610040205AA
セクションNo.
PARTS LAYOUT
Section No.
--
M23
( KN610040205AA-25-2 )