yvpxg_e.pdf - 第15页
PA G E 13 YVP-Xg (KGJ) Con fi dential & Proprietary Air circuit 8 (ORANGE) 8 (YELLOW) UC8 UK8 UP10 UP8 AIR SOURCE HI-CAPPLER PLUG 30PM UEDW10-8 TSH4-M5 TL4-02 GS1-50 -DL-41W R300-03 MF300 -03-A F300-03 -BG-A KM23 300V…

PAG E
12
YVP-Xg (KGJ)
Confi dential & Proprietary
KGJ-000-CN4
Inspection CAMERA
FAN4
FAN INSPECTION LIGHT
EV4
CN2
CN3
CN5
J558
SENSOR
THERMAL
SQ500
T SENSORCN5
CN4
CN4
J553
CN1
J553
J553
J252
FAN
N3023
CN7
J557
J552
CN6
LED PWR
COAX
SIDE
MAIN
J556
J555
J554
CN5
CN4
CN3
COAX
SIDE
MAIN
INSPECTION LIGHT ASSY
LED DRIVER BOARD
CN1
LED BOARD
24VIN
CN1
RS485OUT
RS485IN
CN7
CN6
J552
D_CAM1
J551
D CAM1
D_CAM1
CONNECTION BOARD ASSY P40
INSPECTION CAMERA
CNF31
LED DRIVER CNF31
L.CTL1
L.CTL1
VISION
CN7
CN7
DI3
I/O CONVEYOR UNIT ASSY P22
CONTROL BOX A1

PAG E
13
YVP-Xg (KGJ)
Confi dential & Proprietary
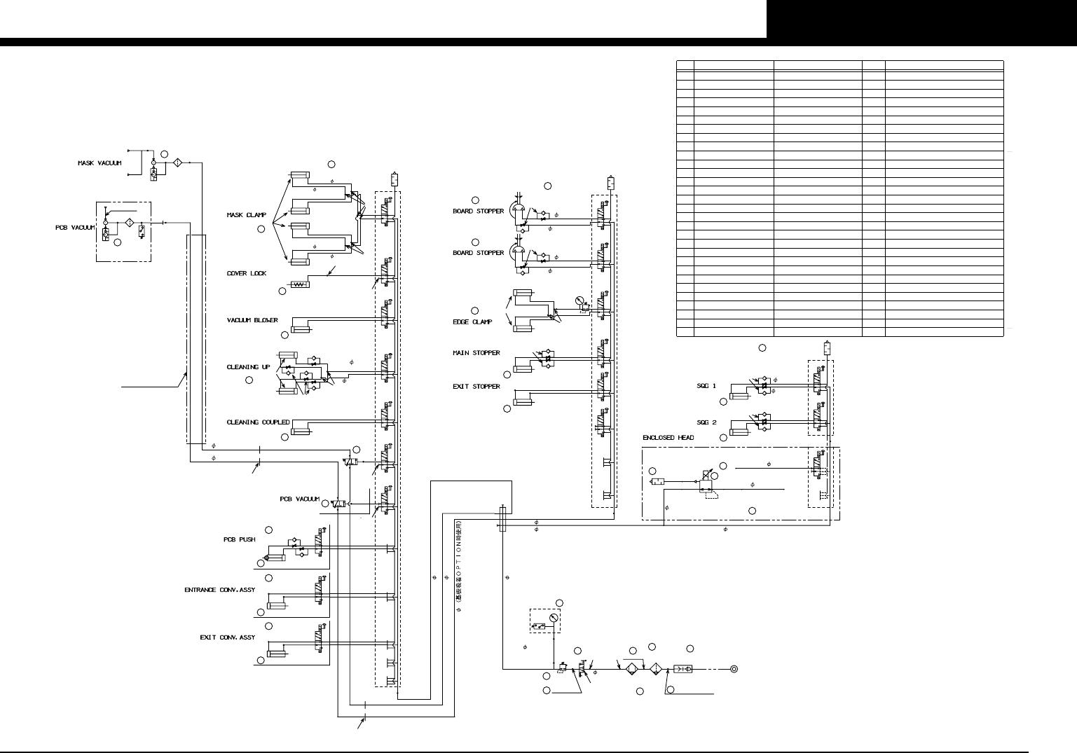
Air circuit
8 (ORANGE)
8 (YELLOW)
UC8
UK8
UP10
UP8
AIR SOURCE
HI-CAPPLER
PLUG 30PM
UEDW10-8
TSH4-M5
TL4-02
GS1-50
-DL-41W
R300-03
MF300
-03-A
F300-03
-BG-A
KM23
300V-03
UY6
CPS E3M-4
SL6-2 SL6-2 UR6-4 TS4-M50
SL6-2
ANB1-C06
ITB2030
USD8-6
KM-11
040M12AJ 1~7 A040
-4E1-PLL 8~12 BP
JCDAS20x25
SL8-01
CDAS16 x 15
SC4-M5A
SC4-M5A
TSH4-M5
NSA 16 x 15N-1
4 (ORANGE)
UY4
UY4
UY4
UY4
4
(BLACK)
KM-11
RAPS10-100
SC4-M5A
NDAS10 x 30
YMDA 16 x 35
SL4-M5
SL4-M5
SC4-M5A
SL8-01
RAPS10-100
SC4-M5A
PR100-GD20
UT4M
CDA12-5-B
UL4M
KM-11
SL6-01
SC4-M5A
CDAS 25 x 20
CDAS 25 x 20
SC4-M5A
(OPTION)
PULG
PULG
CBDAS32 x 15
CBDAS32 x 15
SGDAK16 x 30-HL
SC4-M5A
(OPTION)
PULG
(OPTION)
4 40MA-BP
SL12-03
TSH4-M5M
TSH4-M5M
TSH4-M5M
TSH4-M5M
SL4-M5
SL4-M5
SL4-M5
SL4-M5
SL4-M5
SL4-M5
SL4-M5
SL4-M5
TL4-01
TL4-01
TSH4-01
TSH4-01
PULG
(OPTION)
PULG
250A
250A
MEDT14
MEDT14
YMDA 16 x 35
SL4-M5
SL4-M5
(OPTION)
(OPTION)
YMDA 16 x 35
SL4-M5
SL4-M5
UK8
PULG
UK8
UK8
UK8
PULG
No. PART NO. PART NAME Q'TY REMARKS
1
2
3
4
5
6
KG7-M8512-000 30PM1JOINT NITTO
7
8
12
11
10
9
13
14
15
16
17
18
19
20
21
22
23
24
25
26
27
28
29
30
KG7-M8513-000 3/8" M-F ELBOW1JOINT
KH5-M8501-000
KG7-M8501-000 F300-03-BG-A1AIR FILTER KOGANEI
KG7-M8503-000 8-30D31MODULE ADAPTER KOGANEI
KG7-M8502-000 MF300-03-A1MIST FILTER KOGANEI
300V-031EXHAUST VALVE KOGANEI
KH5-M8531-000 3/8" NIPLE1FITTING 1
KG7-M8504-001 R300-031REGULATOR KOGANEI
KG7-M8596-002 GS1-50-DL-41W1PRESURE GAUGE KOGANEI
KM0-M8582-000 1VALVE KOGANEI
KG2-M8582-001 1VALVE KOGANEI
1VALVE KOGANEI
KGJ-M925G-000 RAPS 10-1002ROTARY AC. KOGANEI
KGJ-M2619-000 4CYLINDER, MASK KOGANEI
KW3-M2621-000 NSA 16 x 101SIDE CLAMPER, MASK KOGANEI
K93-M1386-000 NSA 16 x 15N-11CYLINDER
KGJ-M3627-000 SGDA 16 x 152CYL, CLEANER KOGANEI
KW3-M3656-000 CBDAS 32 x 152CYL, LOCK KOGANEI
KGJ-M9239-000 CDA 12-5-B2CYL.: CDA 12-5 KOGANEI
KW3-M9167-000 NDAS 10 x 301CYLINDER KOGANEI
KV7-M9283-000 YMDA 16 x 351CYL.,YMDA 16X35 KOGANEI
KW3-M9401-000 SGDAK 16 x 30-HL1CYLINDER KOGANEI
KW3-M7154-000 CDAS 25X202CYLINDER, SQZ KOGANEI
KOGANEI
KW3-M2265-000 TUBE FITTING 1 1 CPS E3M-4
KM4-M7175-000 MUFFLER 1 ANB1-C06
KW3-M2262-000 REGURATOR ASSY 1 ITB2030
JCDAS 20 x 25
KH7-M8582-000
KW3-M2256-000 VALVE 1
EJECTOR 1 KV8-M9213-000
KV8-M9312-000 VALVE 1
KG2-M8582-400 VALVE 1
9
8
6
NIPLE3/8"
7
5
3
2
M-F ELBOW3/8"
1
8-30D3
4
26
27
28
10
16
20
19
13
11
23
22
15
21
15
12
25
25
20
24
CABLE GUIDE
14
(YELLOW)
18
18
29
29
30
23
30
23
30
4
(ORANGE)
4 (BLACK)
4 (BLACK)
4 (ORANGE)
A040-4E1-PLL-3W
A040-4E1-PLL-3W
A040-4E1-PLL-3W
040M8AJ 1~6 A040
-4E1-PLL 7~8 BP
4 (BLACK)
4 (ORANGE)
4 (BLACK)
4 (ORANGE)
8 (ORANGE)
8 (ORANGE)
8 (ORANGE)
8 (ORANGE)
8
10 (ORANGE)
4
(ORANGE)
12
(ORANGE)
6 (ORANGE)
6 (ORANGE)
4 (BLACK)
4 (BLACK)
4 (ORANGE)
4 (ORANGE)
040M2AJ 1~2 A040
-4E1-PLL
040M4AJ 1~3 A040-4E1-PLL
PISCO
KOGANEI
SMC
02-02-26

PAG E
14
Wiring parts list
Confi dential & Proprietary
KGJ-0601
No Part No. Part Name Q'ty Remarks No Part No. Part Name Q'ty Remarks
1 KW3-M661A-020 HNS,SW MAIN POWER 1 J3 39 KGJ-M668E-010 HNS,I/O2 CMN 1 J102
2 KGJ-M661U-000 HNS,TC11-QF XT21 1 J9 40 KV8-M664K-003 HNS,Z-FLEX CMN 1 J104
3 KGA-M662M-001 HNS,U10 JUMPER 2 J10,J17 41 KGA-M669V-140 HNS,SWITCH READY 1 J106
4 KM6-M661G-003 HNS,TM11-TC11 1 J11 42 KGA-M669V-241 HNS,SWITCH START 1 J107
5 KGJ-M661E-002 HNS,TM11-QF33 1 J12 43 KGA-M669V-321 HNS,SWITCH STOP 1 J108
6 KGA-M662F-020 HNS,UPS POWER IN 1 J12 44 KGA-M669V-421 HNS,SWITCH ERR.CLR. 1 J109
7 KGJ-M661W-010 HNS,QF33 BLOWER 1 J13 45 KW3-M668H-001 HNS,FDD 1 J110
8 KGA-M662G-040 HNS,UPS POWER OUT 1 J13 46 KGA-M669V-540 HNS,SWITCH RESET 1 J111
9 KGJ-M661R-000 HNS,BLOWER1 1 J14 47 KGA-M664M-030 HNS,UPS 1 J111
10 KGJ-M661F-002 HNS,TM11-QF 1 J15 48 KU8-M66F5-502 HNS,VGA 5M 1 J113
11 KGJ-M661J-001 HNS,QF31-NF11 1 J16 49 KGJ-M668L-010 HNS,JC.LAMP 24V 1 J114
12 KGJ-M661K-001 HNS,NF11-KM10 1 J18 50 KGJ-M668K-010 HNS,CNF62 LAMP 24V 1 J116
13 KGJ-M661T-001 HNS,QF32-KM10A 1 J19 51 KW3-M668X-000 HNS, KB EXTEND(2m) 1 J117
14 KGJ-M661L-010 HNS,CNF1-KM10A 1 J20 52 KGJ-M668M-001 HNS,SW LAMP 1 J118
15 KGJ-M661M-011 HNS,C/R POWER 1 J21 53 KG2-M669R-113 HNS,BUZZER 1 J119
16 KGJ-M661N-011 HNS,CNF23 FAN POWER 1 J22 54 KGJ-M665A-001 HNS,PI1A 1 J121
17 KGJ-M661G-010 HNS,QF23-KA4 1 J23 55 KGJ-M665L-010 HNS,PI2A 1 J122
18 KGJ-M661H-011 HNS,FUEL PUMP PWR 1 J24 56 KGJ-M665T-001 HNS,PI1B 1 J123
19 KGJ-M661V-002 HNS,TM11-QF32 1 J26 57 KGJ-M665V-001 HNS,PI2B 1 J124
20 KGA-M662H-032 HNS,EXT.POWER 1 J28 58 KGJ-M665H-000 HNS,BASE PI X 1 J125
21 KGJ-M661X-001 HNS,CNF16 I/O POWER 1 J41 59 KW3-M665K-001 HNS,PI Y 1 J127
22 KGJ-M662A-000 HNS,SY-FLEX I/O PWR 1 J43 60 KW3-M665J-002 HNS,Y.FLEX PI X 1 J128
23 KGJ-M662E-004 HNS,GS21 POWER 1 J47 61 KGJ-M665M-000 HNS,Y-FLEX PI 2 J129,J130
24 KGJ-M662F-012 HNS,CNF21 24V IN 1 J48 62 KGJ-M665W-000 HNS,Y-FLEX PI R 1 J131
25 KGA-M662K-022 HNS,CRT POWER 1 J49 63 KGJ-M665N-000 HNS,X-FLEX PI 2 J132,J133
26 KV1-M663N-002 HNS,CNF6.7.37-C 1 J51 64 KGJ-M665G-000 HNS,SY X-FLEX PI 2 J134,J137
27 KGJ-M664E-000 HNS,CNF4 C/MTR 1 J52 65 KW3-M665E-002 HNS,PI SY 1 J135
28 KW3-M664F-000 HNS,X.FLEX C/MTR 1 J53 66 KGJ-M665F-000 HNS,BASE PI SZ 1 J136
29 KGJ-M664G-011 HNS,CNF43 CONV.VR. 1 J54 67 KGJ-M665Y-000 HNS,BASE PI 2 J138,J139
30 KG2-M663R-003 HNS,CONTROL,H/L 2 J55,J56 68 KGJ-M665E-000 HNS,BASE PI R 1 J140
31 KW3-M664K-000 HNS,Y.FLEX C/MTR 1 J57 69 KGJ-M666A-020 HNS,MO1A 1 J141
32 KK1-M664J-010 HNS,PE 1000 4 J71-J74 70 KGJ-M666E-010 HNS,MO2A 1 J142
33 KV5-M536E-000 HNS 302 (F_PE,200) 9 J75,76,82,84-91 71 KGJ-M666F-001 HNS,MO1B 1 J143
34 90K30-255050 HNS,EARTH 500 1 J76 72 KGJ-M666H-001 HNS,MO2B 1 J144
35 90K30-444080 HNS,EARTH 3 J77-J79 73 KW3-M666G-001 HNS,Y.FLEX MO X 1 J145
36 90K30-444070 HNS,PE 700 1 J80 74 KGJ-M666J-000 HNS,Y-FLEX MO 2 J146,J147
37 KG2-M536A-220 HNS,PE 150 3 J93,J94 75 KGJ-M666L-000 HNS,Y-FLEX MO R 1 J148
38 KGJ-M668A-000 HNS,I/O1 CMN 1 J101 76 KGJ-M666M-001 HNS,X-FLEX MO 2 J149,J150