松下CM602机器参数手册_2E8A5.pdf - 第22页

CM602-L 参考手册 1.3 装置的规格 Pa ge 1- 22  带有直接托盘供 料器时 ( 单位 : mm) EJM8A-C-RMC0 1-A01-00 EJM8A -100E 基板高度 900 ( 选购件 : 950) 前面 直接托盘供料器

100%1 / 40
CM602-L
参考手册
1.3
装置的规格
Page 1-21
EJM4A-134E
1.3.4
外形尺寸
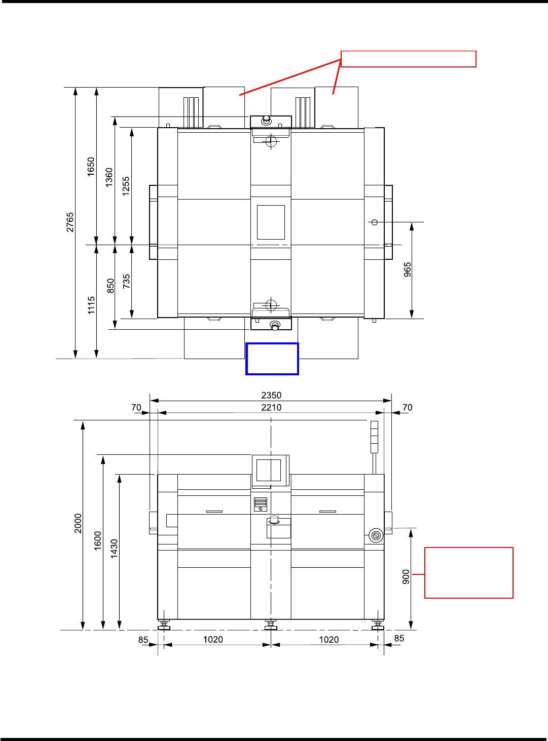
带有整体交换台车时
(
单位
: mm)
基板搬送高度
900
(
选购件
: 950)
整体交换台车
基准
前面
EJM8A-C-RMC01-A01-00
CM602-L
参考手册
1.3
装置的规格
Page 1-22
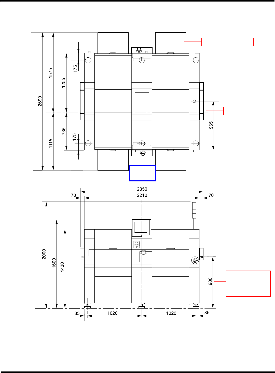
带有直接托盘供料器时
(
单位
: mm)
EJM8A-C-RMC01-A01-00
EJM8A-100E
基板高度
900
(
选购件
: 950)
前面
直接托盘供料器
CM602-L
参考手册
1.4
其它规格
Page 1-23
1.4
其它规格
1.4.1
对应基板规格
(1/2)
项目
规格
可使用的基板尺寸
最大
: 510 mm (L)
×
460 mm (W) /
最小
: 50 mm (L)
×
50 mm (W)
可贴装的范围
EJM4A-114C
基板厚度
0.3 mm ~ 4.0 mm
基板质量
最大
3.0
kg
以下
(
实装后的质量
)
容许基板弯曲
4X3C-218C
基板断面
贴装前的基板状态
EJM4A-113C
EJM8A-C-RMC01-A01-00