TR6DNR_TR6DNV_TR6DNX-Rev04PDFA.pdf - 第5页
- 2 - NO TE( 注 記 ) #0 1... .FOR EN E N 用 REF.NO NOTE PART NO D E S C R I P T I O N 品 名 Qty 1 400 -4 8708 Z BA LL S CRE W 6D Z ボールねじ6 D 2 2 400 -4 5703 SE RVO MOT OR サーボモータ 2 3 H D-00 17100- 00 PHOTO SENS OR フォトインタラプ タ 4 …

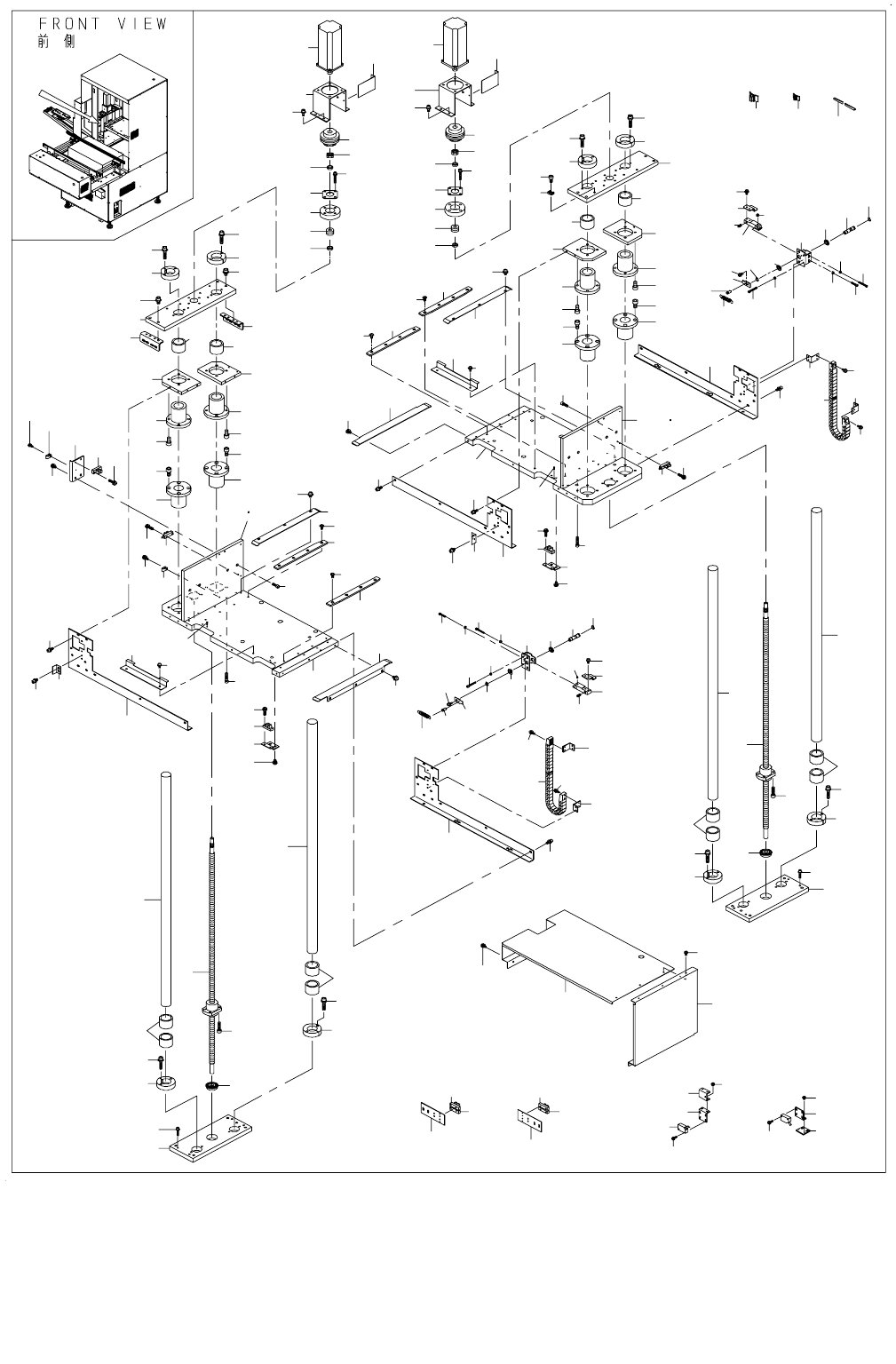
- 1 -
1. Z UNIT
Z ユニット
28
2
28
2
11
23
22
21
20
20
21
23
22
1
15
32
17
16
35
11
21
20
21
20
22
22
23
15
32
16
23
35
36
36
57
27
61
3
42
42
40
41
18
65
64
58
60
55
53
59
56
62
63
51
61
62
50
62
51
54
56
40
52
19
26
27
78
3
46
45
46
19
25
18
4
76
70
71
77
68
69
75
74
82
69
73
80
79
80
79
44
86
80
83
72
74
3
24
24
24
24
26
25
29
29
38
37
38
37
35
36
36
17
7
6
6
85
7
85
89
89
87
88
87
88
1
92
91
91
92
10
10
10
10
39
43
10
48
66
49
66
49
66
49
66
49
67
48
10
48
10
66
49
66
49
67
48
10
66
49
66
49
12
12
98
98
90
99
99
99
99
99
100
100
38
101
38
101
19
19
19
102
102
5
3
5
5
5
5
8
9
9
33
34
47
31
30
84
103
105
104
104
105
106
106
107
108
110
109
90
44
81
35
13
95
94
14
97
97
93
96
93
97
97
14
94
95
13
96

- 2 -
NOTE( 注記 ) #01....FOR EN EN 用
REF.NO NOTE PART NO D E S C R I P T I O N
品 名
Qty
1 400-48708 Z BALL SCREW 6D
Z ボールねじ6 D
2
2 400-45703 SERVO MOTOR
サーボモータ
2
3 HD-0017100-00 PHOTO SENSOR
フォトインタラプタ
4
4 HD-0017000-00 PHOTO SENSOR
フォトインタラプタ
1
5 SL-4041691-SC SCREW M4 L=16
なべ小ねじ M 4 X 0.7 L =16
5
6 HD-0017000-00 PHOTO SENSOR
フォトインタラプタ
2
7 HD-0017100-00 PHOTO SENSOR
フォトインタラプタ
2
8 HX-0009600-0A EDGING BUSH
エッジングブッシュ
0.14
9 HX-0015000-0A CABLE CLAMP
ケーブルクリップ
2
10 E1312-717-000 Z DAMPER
Zダンパ
12
11 400-48939 Z BASE L 6D
Z ベース L 6 D
2
12 SM-6052002-TN BOLT
六角穴ボルト
8
13 E2070-723-000 Z MPTOR COUPLING
Z モータカップリング
2
14 E1268-726-000 LOCK NUT RN12
ロックナット RN 12
2
15 SB-1120001-00 BEARING D=12X32
ベアリング D =12 X 32
2
16 400-48872 BASE SUPPORT B
ベースサポート B
2
17 400-48871 BASE SUPPORT A
ベースサポート A
2
18 400-48838 Z HOME SENSOR DOG
Z ホームセンサドグ
2
19 SL-6040892-TN BOLT
座金付き六角穴ボルト
4
20 E4108-717-000 Z LINEAR BUSH
Z リニアスブッシュ
4
21 SM-6061202-TN BOLT
六角穴ボルト
16
22 E4108-717-000 Z LINEAR BUSH
Z リニアスブッシュ
4
23 E4107-717-000 BASE SUPPORT
ベースサポート
4
24 SM-6061202-TN BOLT
六角穴ボルト
16
25 E4118-717-000 ST STOPPER
ST ストッパ
2
26 SL-4040891-SC SCREW M4 L=8
座金付きなべ小ねじ M 4 L =8
4
27 400-48835 SET SENSOR BR
セットセンサ BR
1
28 400-48801 Z MOTOR BR
ZモータBR
2
29 E4133-717-000 MOTOR BR COVER
モータ BR カバー
2
30 400-48735 SENSOR BR
センサ BR
1
31 HX-0002400-0B CLAMP
クランプ
2
32 400-48834 Z BASE U 6D
Z ベース U 6 D
2
33 SL-4030891-SC SCREW M3X8
なべ小ねじセムス M 3 L =8
1
34 SL-4041091-SC SCREW M4 L=10
なべ小ねじセムス M 4 X 0.7 L =10
1
35 E4115-717-000 ST GUIDE RAIL A
ST ガイドレール A
4
36 SM-4040801-SC SCREW M4X0.7 L=8
なべ小ねじ M 4 X 0.7 L =8
16
37 E4116-717-000 ST GUIDE PLATE A
ST ガイドプレート A
2
38 SL-4040891-SC SCREW M4 L=8
座金付きなべ小ねじ M 4 L =8
12
39 HX-0051900-00 FIXING BASE
固定ベース
1
40 E4123-717-000 Z CABLE BEARER BR
Z ケーブルベア BR
2
41 E4124-717-000 Z CABLE BEARER
Z ケーブルベア
1
42 SL-4030891-SC SCREW M3X8
なべ小ねじセムス M 3 L =8
4
43 SM-6051002-TN BOLT
六角穴ボルト
1
44 E4123-717-000 Z CABLE BEARER BR
Z ケーブルベア BR
2
45 E4124-717-000 Z CABLE BEARER
Z ケーブルベア
1
46 SL-4030891-SC SCREW M3X8
なべ小ねじセムス M 3 L =8
4
47 HX-0002400-0A CLAMP
クランプ
6
48 400-48702 Z SH 910
Z SH 910
1
49 E1303-717-000 Z SHAFT SUPPORT
Z シャフトサポート
8
50 E4126-717-000 LOCK HANDLE BASE
ロックハンドルベース
1
51 400-56995 BUSHING 80F-1003
ブッシュ80 F −1003
2
52 E4125-717-000 LOCK HANDLE
ロックハンドル
1
53 E1865-172-000 MINI BALL PLUNGER
ミニボールプランジャ
1
54 E4128-717-000 LOCK HANDLE SH
ロックハンドル SH
1
55 E2211-524-000 SCREW
ダブルポイントセット SC
2
56 RC-0100001-KP SNAP RING M10
C 形止め輪 9.3
2
57 400-48839 LOCK SENSOR PL
ロックセンサプレート
1
58 SL-4030691-SC SCREW M3X6
なべ小ねじセムス M 3 X 0.5 L =6
1
59 E4402-531-000 MS (F) SPRING
MS(F)スプリング SH
1
60 SM-6042002-TN BOLT
六角穴ボルト
1
61 SM-6043052-TN SCREW M4 L=30
六角穴ボルト
2
62 NM-6040001-SC NUT M4
六角ナット M 4
3
63 E4130-717-000 LOCK HANDLE SP
ロックハンドル SP
1
64 E4131-717-000 LOCK HANDLE BR
ロックハンドル BR
1
65 SL-4030691-SC SCREW M3X6
なべ小ねじセムス M 3 X 0.5 L =6
2
66 SL-6052592-TN BOLT
座金付き六角穴ボルト
16
67 SL-6052592-TN BOLT
座金付き六角穴ボルト
8
68 E4126-717-000 LOCK HANDLE BASE
ロックハンドルベース
1
69 400-56995 BUSHING 80F-1003
ブッシュ80 F −1003
2
70 E4125-717-000 LOCK HANDLE
ロックハンドル
1
71 E1865-172-000 MINI BALL PLUNGER
ミニボールプランジャ
1
72 E4128-717-000 LOCK HANDLE SH
ロックハンドル SH
1
73 E2211-524-000 SCREW
ダブルポイントセット SC
2
74 RC-0100001-KP SNAP RING M10
C 形止め輪 9.3
2
75 400-48839 LOCK SENSOR PL
ロックセンサプレート
1
76 SL-4030691-SC SCREW M3X6
なべ小ねじセムス M 3 X 0.5 L =6
1
77 E4402-531-000 MS (F) SPRING SH
MS(F)スプリング SH
1
78 SM-6042002-TN BOLT
六角穴ボルト
1
79 SM-6043052-TN SCREW M4 L=30
六角穴ボルト
2
80 NM-6040001-SC NUT M4
六角ナット M 4
3
81 E4130-717-000 LOCK HANDLE SP
ロックハンドル SP
1
82 E4131-717-000 LOCK HANDLE BR
ロックハンドル BR
1
83 SL-4030691-SC SCREW M3X6
なべ小ねじセムス M 3 X 0.5 L =6
2
84 400-45113 STK M MIS SET SENSOR ASM
STK M ミスセットセンサ組
1
85 400-48840 Z HOME SENSOR PL
Z ホームセンサプレート
2
86 400-48836 LIMIT SENSOR BR
リミットセンサ BR
1
87 E4110-717-000 SIDE SUPPORT
サイドサポート
2
88
#01
E3216-723-000 SIDE SUPPORT
サイドサポート
2
89 400-48874 ST BASE 6D
ST ベース6 D
2
90 400-57169 PIN 3X10
ピン 3 X 10
4
91 400-48681 Z BASE U BR
Z ベース U BR
4
92 SL-6051092-TN BOLT
座金付き六角穴ボルト
8
93 SL-6053592-TN BOLT
座金付き六角穴ボルト
8
94 400-48683 END PLATE
エンドプレート
2
95 E1266-726-000 COLLAR ROUND 60
カラー φ 60
2
96 400-69754 BEARING
ベアリング
2
97 E1262-726-000 COLLAR ROUND 12X5
カラー φ 12 X 5
4
98 SL-6041092-TN SCREW
座金付き六角穴ボルト
8
99 SL-6041092-TN SCREW
座金付き六角穴ボルト
28
100 SM-6042002-TN BOLT
六角穴ボルト
8
101 E4117-717-000 ST GUIDE PLATE B
ST ガイドプレート B
2
102 SM-6041202-TN SCREW M4X0.7 L=12
六角穴ボルト M4X0.7 L=12
8
103 400-48734 SENSOR PL
センサ PL
1
104 SL-4030591-SC SCREW M3X5
なべ小ねじ M 3 X 0.5 L =5
4
105 400-46236 SENSOR BRACKET
センサブラケット
2
106 SL-4031081-SC SCREW M3 X 10
なべねじセムス M 3 L =10
4
107
#01
400-48873 ST BASE COVER B
ST ベースカバー B
1
108
#01
E3214-723-000 STACKER BASE COVER A
スタッカベースカバー A
1
109
#01
SL-4040891-SC SCREW M4 L=8
座金付きなべ小ねじ M 4 L =8
3
110
#01
SL-4030891-SC SCREW M3X8
なべ小ねじセムス M 3 L =8
3

- 3 -
2. Y UNIT
Y ユニット
79
62
39
73
39
16
40
12
69
72
6
68
66
67
65
66
20
28
29
30
84
54
69
21
17
81
82
31
80
71
70
71
38
76
75
47
77
97
46
112
113
27
113
14
48
45
26
83
70
68
72
74
A
A
25
B
B
56
78
61
52
9
51
50
67
13
15
39
41
42
43
44
18
19
49
49
1
63
64
57
58
60
59
57
58
65
51
53
53
55
2
3
4
5
85
86
87
88
88
89
89
88
89
88
89
87
86
85
8
90
91
92
92
93
93
32
94
94
95
96
98
98
99
100
101
112
107
110
111
111
108
105
102
103
103
109
103
109
103
102
105
104
108
106
114
114
E
E
D
D
35
7
11
23
34
33
37
C
C
36
35
10
22
24