KE-3010A_KE-3020VA_KE-3020VRA-Rev14.pdf - 第123页
- - REF.NO NOTE PARTNO DESCRIPTION Qty 1 401-22786 ROTARYFLUXERCABLEASM 1 2 401-22788 ROTARYFLUXERMOTORASM 1 3 HK-0436900-00 CONNECTOR 1 4 401-22909 ROTARY_FLUXER_ UPPER_FOR_MECH 1 5 401-07100 BA…

- -
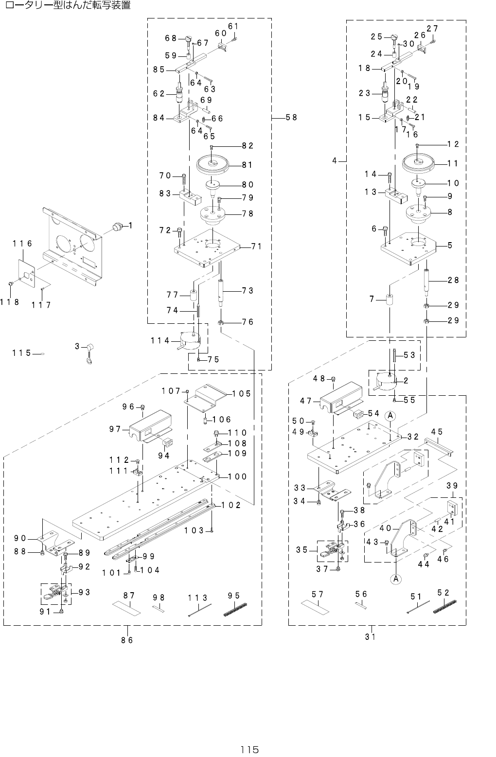
58.ROTARYTYPESOLDERTRANSFERUNIT

- -
REF.NO NOTE PARTNO DESCRIPTION Qty
1 401-22786 ROTARYFLUXERCABLEASM 1
2 401-22788 ROTARYFLUXERMOTORASM 1
3 HK-0436900-00 CONNECTOR 1
4 401-22909 ROTARY_FLUXER_UPPER_FOR_MECH 1
5 401-07100 BASE_PLATE (1)
6 SL-6052092-TN SCREWM5L=20 (4)
7 401-07112 FLEXIBLE_COUPLING (1)
8 401-07111 BEARING_HOLDER (1)
9 SM-6041002-TN BOLT (4)
10 401-07117 SAUCER_BASE (1)
11 401-07101 SAUCER (1)
12 SM-6030802-TN SCREW (2)
13 401-07105 LOCATING_BLOCK (1)
14 SL-6042592-TN SCREWM4L=25 (2)
15 401-07104 HINGE_BASE (1)
16 SM-6031202-TN SCREWM3X12 (1)
17 NM-6030001-SC NUTM3X0.5TYPE1 (1)
18 401-07103 LEVER (1)
19 SM-6032002-TN SCREWM3X0.5L=20 (1)
20 NM-6030001-SC NUTM3X0.5TYPE1 (1)
21 401-07110 PULL_SPRING (1)
22 401-07119 PARALLEL_PIN_M5_L20 (1)
23 401-07115 MICROMETER_HEAD (1)
24 401-07108 SPACE_COLLAR (1)
25 401-07116 KNURLED_KNOB_SCREW (1)
26 401-07102 SQUEEGEE (2)
27 SL-6031092-TN SCREW (1)
28 401-16015 FLUXER_STUD_L (4)
29 NM-6060001-SC NUTM6X1TYPE1 (4)
30 SM-8030302-TP SCREWM3X3 (1)
31 401-22908 ROTARY_FLUXER_BASE_ASM_M 1
32 401-16014 ROTARY_FLUXER_BASE (1)
33 400-94910 STCLAMPBRM (1)
34 SL-6040892-TN SCREWM4L=8 (4)
35 E1214-726-000 STCLAMP (1)
36 E1109-723-000 LOCKHOLDER (1)
37 SL-6041642-TN SCREW (1)
38 SL-4040881-SC SCREWM4L=8 (4)
39 401-16012 BASESTAND_ASM (2)
40 401-16017 BASE_STAND (1)
41 E7302-715-000 THFRONTPLATE (1)
42 E7306-705-000 PIN (1)
43 SL-6040892-TN SCREWM4L=8 (2)
44 SL-6040892-TN SCREWM4L=8 (4)
45 401-16018 STAND_SUPPORT (1)
46 SL-6030692-TN SCREWM3L=6 (2)
47 401-22733 COVER_V (1)
48 SL-6040892-TN SCREWM4L=8 (2)
49 HX-0029400-00 FIXEDBASE (2)
50 SM-4040601-SC SCREWM4X0.7L=6 (2)
51 EA-9500B01-00 CABLEBAND (3)
52 E5348-033-100 CABLEPROTECTOR106MM (0.066)
53 401-22732 SPACER_V (2)
54 401-22789 ROTARYFLUXERSWITCHASM (1)
55 SM-6030602-TN SCREWM3X6 (2)
56 E1602-723-000 MARKER (1)
57 401-24846 RATING_LABEL_ROTARY_STAMPING_WARE_M (1)
58 401-22904 ROTARY_FLUXER_UPPER_FOR_E 1
59 401-07108 SPACE_COLLAR (1)
60 401-07102 SQUEEGEE (2)
61 SL-6031092-TN SCREW (1)
62 401-07115 MICROMETER_HEAD (1)
63 SM-6032002-TN SCREWM3X0.5L=20 (1)
64 NM-6030001-SC NUTM3X0.5TYPE1 (1)
65 SM-6031202-TN SCREWM3X12 (1)
66 401-07110 PULL_SPRING (1)
67 SM-8030302-TP SCREWM3X3 (1)
68 401-07116 KNURLED_KNOB_SCREW (1)
69 401-07119 PARALLEL_PIN_M5_L20 (1)
70 SL-6042592-TN SCREWM4L=25 (2)
71 401-22724 BSAE_PLATE_V (1)
72 SL-6052092-TN SCREWM5L=20 (4)
73 401-22731 CIRCULAR_POST_V (4)
74 401-22732 SPACER_V (2)
75 SM-6030602-TN SCREWM3X6 (2)
76 NM-6060001-SC NUTM6X1TYPE1 (4)
77 401-07112 FLEXIBLE_COUPLING (1)
78 401-07111 BEARING_HOLDER (1)
79 SM-6041002-TN BOLT (4)
80 401-07117 SAUCER_BASE (1)
81 401-07101 SAUCER (1)
82 SM-6030802-TN SCREW (2)
83 401-07105 LOCATING_BLOCK (1)
84 401-07104 HINGE_BASE (1)
85 401-07103 LEVER (1)
86 401-22905 ROTARY_FLUXER_BASE_ASM_E 1
87 401-24846 RATING_LABEL_ROTARY_STAMPING_WARE_M (1)
88 SL-6040892-TN SCREWM4L=8 (2)
89 SL-4040881-SC SCREWM4L=8 (4)
90 400-94487 ST_CLAMP_BR_E (1)
91 SL-6041642-TN SCREW (1)
92 E1109-723-000 LOCKHOLDER (1)
93 E1214-726-000 STCLAMP (1)
94 401-22789 ROTARYFLUXERSWITCHASM (1)
95 E5348-033-100 CABLEPROTECTOR106MM (0.066)
96 SL-6040892-TN SCREWM4L=8 (4)
97 401-22733 COVER_V (1)
98 E1602-723-000 MARKER (1)
99 400-78576 RAIL_CAP (2)
100 401-22725 ROTARY_FLUXER_BASE_E_V (1)
101 ST-1030651-SN TAPPINGSCREWD=3L=6 (2)
102 400-77518 SLIDE_RAIL (2)
103 SM-3031052-TN SCREWM3L=10 (14)
104 SM-1031201-SC SCREWM3X0.5L=12 (2)
105 401-22726 X_STOPPER_BR_V (1)
106 400-68181 X_GUIDE_PIN_FRONT (1)
107 SL-6030592-TN SCREWM3L=5 (4)
108 400-77520 Y_STOPPER_PLATE (2)
109 400-77519 PLUNGER_PLATE (2)
110 SL-6051092-TN SCREWM5L=10 (4)
111 HX-0029400-00 FIXEDBASE (2)
112 SM-4040601-SC SCREWM4X0.7L=6 (2)
113 EA-9500B01-00 CABLEBAND (3)
114 401-22788 ROTARYFLUXERMOTORASM 1
115 CM-6004000-01 CHINAROHSLABELES 1
116 401-47175 CONNECTOR_PLATE_ROTARY_FLXR 1
117 SM-4860601-SC SCREWM2.6L=6 2
118 HK-0436900-00 CONNECTOR 1

- -
59.IFS-NXCOMPONENTS(1)
1
2
5
7
8
9
1 0
1 1
1 2
1 2
1 3
4
4
6
6
6
3
2 6
2 5
2 4
2 7
3 7
3 1
3 0
3 6
3 4
3 5
4 8
4 7
4 6
4 9
2 8
2 9
3 0
4 2
4 1
4 0
3 9
3 3
3 2
3 1
5 6
5 5
5 4
5 2
5 3
4 4
5 0
4 3
4 5
5 1
2 3
2 2
2 1
2 0
3 8
1 9
1 8
1 7
1 8
1 6
1 5
6 2
6 5
6 1
6 7
6 5
6 6
6 0
6 8
5 8
5 9
6 3
6 4
1 4
5 7