TR5SNI_TR5SNJ_TR5SNR_TR5SNX-Rev05.pdf - 第25页
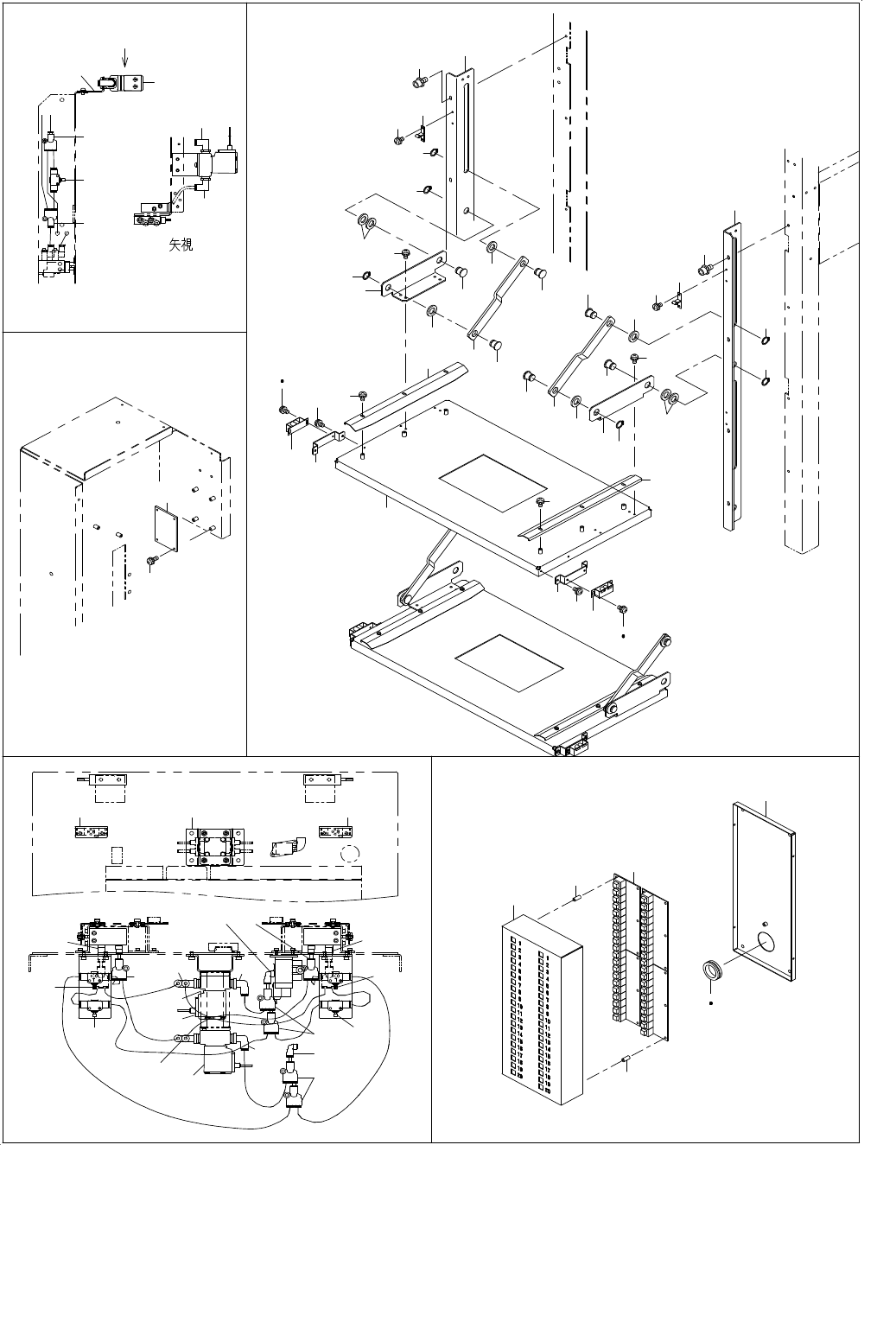
- 22 - NOTE( 注記 ) #01....FOR 5SNI 5 SNI 用 REF.NO NOTE PART NO D E S C R I P T I O N 品 名 Qty 1 400-48921 ST GUIDE BA SE STガイドベース 2 2 SL-4030691 -SC SCREW M3X6 なべ小ねじセムス M3X0.5 L=6 12 3 400-48922 ST GUIDE RA IL STガイドレール 4 4…

- 21 -
11. OPTION COMPONENTS
オプション関係
35
30
29
8
31
33
27
32
33
28
36
36
32
35
36
34
36
33
33
26 28
34
42
A
20
20
19
22
21
21
23
A
16 18
5
6
7
2
15
4
7
6
16
18
15
4
9
10
37
38
9
8
12
5
1
3
3
10
10
15
10
10
15
13
13
14
14
17
17
11
17
17
17
11
11
17
11
11
11
24
25
39
40
41
2
10
39

- 22 -
NOTE( 注記 ) #01....FOR 5SNI 5 SNI 用
REF.NO NOTE PART NO D E S C R I P T I O N
品 名
Qty
1 400-48921 ST GUIDE BASE
STガイドベース
2
2 SL-4030691-SC SCREW M3X6
なべ小ねじセムス M3X0.5 L=6
12
3 400-48922 ST GUIDE RAIL
STガイドレール
4
4 E1611-726-000 ROLLER CATCH BR
ローラキャッチBR
4
5 SL-4030691-SC SCREW M3X6
なべ小ねじセムス M3X0.5 L=6
8
6 SL-4030691-SC SCREW M3X6
なべ小ねじセムス M3X0.5 L=6
16
7 E1613-726-000 ST GUIDE LINK SUPOORT
STガイドリンクサポート
4
8 E5602-723-000 ST GUIDE BR L
STガイドブラケットL
1
9 SL-4030691-SC SCREW M3X6
なべ小ねじセムス M3X0.5 L=6
8
10 RC-1200001-KP C-SHAPED SNAP RING
C形止め輪
12
11 WP-1302501-SC WASHER 13X24X2.5
平座金 13X24X2.5
16
12 E5603-723-000 ST GUIDE BR R
STガイドブラケットR
1
13 SL-6040892-TN BOLT
座金付き六角穴ボルト
8
14 E1603-726-000 ST GUIDE BASE LINK
STガイトベースリンク
4
15 E5117-172-000 ROLLER CATCH
ローラキャッチ
4
16 SL-4030681-SC SCREW M3 L=6
座金付きなべ小ねじ M3 L=6
8
17 E1604-726-000 ST GUIDE LINK PIN
STガイドリンクピン
12
18
#01
SM-4030401-SC SCREW M3X0.5 L=4
なべ小ねじ M3X0.5 L=4
8
19 400-48766 SV BR
SV BR
1
20 PJ-3040452-02 ELBOW UNION A
エルボユニオン A
2
21 PJ-3080400-02 QUICK COUPLING
ワンタッチ継ぎ手
2
22 400-49706 SLOW MODE(SHT) ASM
スローモード(SHT)組
1
23 PC-0124010-00 SPEED CONTROLLER
スピ−ド コントロ−ラ
1
24 SL-4030891-SC SCREW M3X8
なべ小ねじセムス M3 L=8
2
25 400-42575 SLOW MODE CTRL PCB ASM
スローモードコントロール基板組
1
26 400-50188 SV BR
SV BR
1
27 400-50187 STUD 80
スタッド 80
4
28 400-50189 SPEED CONTL BR
スピードコントロール BR
2
29 PJ-3040452-02 ELBOW UNION A
エルボユニオン A
2
30 400-49586 SLOW MODE(TRAY HLD 1) ASM
スローモード(トレイHLD 1)組
1
31 400-49588 SLOW MODE(TRAY HLD 2) ASM
スローモード(トレイHLD 2)組
1
32 400-49261 UNION
ユニオン
2
33 PJ-3080400-04 BRANCH UNION
ブランチユニオンワイ
8
34 PJ-3040405-04 ELBOW UNION
エルボユニオン
2
35 PC-0105190-00 SPEED CONTROLLER
スピ−ド コントロ−ラ
2
36 PC-0124010-00 SPEED CONTROLLER
スピ−ド コントロ−ラ
4
37 400-48723 SW BOX BASE 5S
SWボックスベース5S
1
38 400-50038 SW BOX 5S SILK
SWボックス5Sシルク
1
39 E5746-723-000 COLLER L13.3
カラーL13.3
24
40 HX-0022100-0E BUSH
ブッシュ
1
41
#01
HX-0005500-0N RUBBER BUSHING
ブッシュ
1
42 400-42216 TRAY LED (10) PCB ASM
トレイLED (10)基板組
4

- 23 -
12. OPTION COMPONENTS (SCS)
オプション関係(SCS)
11
15
14
13
12
18
19
8
9
7
41
6
27
11
12
10
13
17
16
18
27
19
20
21
32
33
34
22
42
23 24 25 26
1
36
2
37
3
38
4
39
5
40
28
35
29
30
31
10