PTS-NADXHD-06.pdf - 第139页
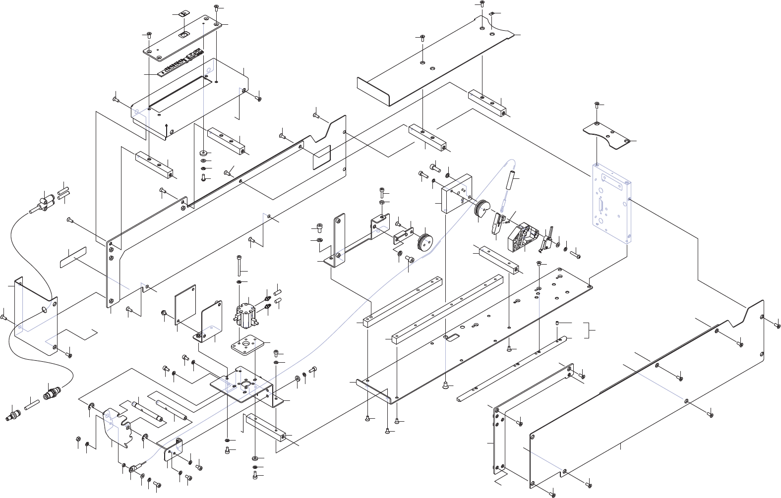
DX-Glue Tool Station 1/ DX-グ ルーツ ールス テーシ ョン 1/ 2UGKYT000102 No. Drg.No. & Code No. QTY Description Rating Remarks 番号 図番 & コード番 号 個数 品名 規格 備考 2 2MGKHL1 16400 1 COVER, LOWER カバー 下 3 2MGKHL1 16801 2 BKT BKT 4 K5357…

2
3
3
4
4
5
6
7
8
9
10
11
14
13
12
15
17
18
19
20
21
22
23
24
24
25
26
25
26
25
26
25
26
28
29
30
32
33
31
32
35
36
37
38
39
40
41
42
43
44
45
46
47
48
49
51
52
53
54
55
56
57
58
59
60
62
63
64
65
66
67
68
69
69
70
71
73
74
74
76
77
77
77
77
77
77
78
80
81
81
82
83
83
83
83
83
83
85
85
85
85
86
87
87
88
89
90
90
91
92
94
95
96
96
97
98
99
100
101
103
104
105
106
107
109
110
111
112
113
114
DX-Glue Tool Station 1/
';ࢢ࣮ࣝࢶ࣮ࣝࢫࢸ࣮ࢩࣙࣥ
2UGKYT000102
R1R1
R1R1
R2R2
R2R2
R3R3
R4R4
R3R3
R4R4
R5R5
R6R6
R5R5
R6R6
R7R7
R7R7
R8R8
R8R8
L1L1
L2L2
L2L2
L1L1
138
PTS- NADXHD- 06

DX-Glue Tool Station 1/
DX-グルーツールステーション 1/
2UGKYT000102
No. Drg.No. & Code No. QTY Description Rating Remarks
番号 図番 & コード番号 個数 品名 規格 備考
2 2MGKHL116400 1 COVER, LOWER
カバー 下
3 2MGKHL116801 2 BKT
BKT
4 K5357L 4 SCREW, HEX SOCKET COUNTERSUNK
小ネジ 六角穴皿
M03X006(3カ シロ)
5 2MGKHL116902 1 BKT
BKT
6 K5357L 2 SCREW, HEX SOCKET COUNTERSUNK
小ネジ 六角穴皿
M03X006(3カ シロ)
7 2MGKYT008702 1 BKT
BKT
8 K5357L 3 SCREW, HEX SOCKET COUNTERSUNK
小ネジ 六角穴皿
M03X006(3カ シロ)
9 2MGKYT004800 1 COVER, PROTECTIVE
カバー 保護
10 H54251 2 BOLT, HEX SOCKET
ボルト 六角穴
M03X006(3カ シロ)
11 W1106C 2 WASHER, LOCK
ワッシャ スプリング
3M/M(3カ シロ)
12 AA93204 1 GUIDE
ガイド
13 PM32854 1 GUIDE
ガイド
14 PZ02351 4 PIN, LOCATING
ピン 位置決め
15 K65003 4 SCREW, HEX SOCKET COUNTERSUNK
小ネジ 六角穴皿
M03X005(3カ シロ)
17 2MGKHL115500 1 BKT
BKT
18 H54252 2 BOLT, HEX SOCKET
ボルト 六角穴
M03X008(3カ シロ)
19 W1106C 2 WASHER, LOCK
ワッシャ スプリング
3M/M(3カ シロ)
20 W1108D 2 WASHER, FLAT
ワッシャ 平
4W-3(3カ シロ)
21 2MGKHL116100 1 LEVER
レバー
22 2MGKHL117300 1 PIN
ピン
23 2MGKHL117400 1 PIN
ピン
24 S1003G 2 CIR-CLIP
サークリップ
ST-EW-5(3カ シロ)
25 H54251 4 BOLT, HEX SOCKET
ボルト 六角穴
M03X006(3カ シロ)
26 W1106C 4 WASHER, LOCK
ワッシャ スプリング
3M/M(3カ シロ)
28 2MGKHL119200 1 WIRE
ワイヤ
29 PB03542 1 COLLAR
カラー
30 H54252 1 BOLT, HEX SOCKET
ボルト 六角穴
M03X008(3カ シロ)
31 N10793 1 NUT, HEX
ナット 六角
M03 P=0.5(3カシロ)
32 W1106C 2 WASHER, LOCK
ワッシャ スプリング
3M/M(3カ シロ)
33 W1108B 1 WASHER, FLAT
ワッシャ 平
3M/MX0.5X7(3カシロ)
35 2MGKHL116001 1 BKT
BKT
36 K64283 2 SCREW, HEX SOCKET COUNTERSUNK
小ネジ 六角穴皿
M04X008(3カシロ)
37 2MGKYB002900 1 SPRING
スプリング
38 PM56377 1 CLAMPER
クランパ
39 H2039T 1 PIN, SPRING
ピン スプリング
φ1.5X 8
40 PH00545 1 BKT, CLAMP
BKT クランプ
41 H5426M 2 BOLT, HEX SOCKET
ボルト 六角穴
M04X012(3カ シロ)
42 W1011A 2 WASHER, CONICAL
ワッシャ 皿
M-4-L
43 S3191R 1 SW, LIMIT
SW リミット
D2HW-C273MR-A48
44 K5258H 1 SCREW, HEX SOCKET BUTTON
小ネジ 六角穴ボタン
M03X015(3カ シロ)
45 W1106C 1 WASHER, LOCK
ワッシャ スプリング
3M/M(3カ シロ)
46 W1108B 1 WASHER, FLAT
ワッシャ 平
3M/MX0.5X7(3カシロ)
47 PJ10693 1 GUIDE
ガイド
48 H54254 1 BOLT, HEX SOCKET
ボルト 六角穴
M03X012(3カ シロ)
49 W1010A 1 WASHER, CONICAL
ワッシャ 皿
M-3-L
51 2MGKYT006102 1 BKT
BKT
52 H5426K 2 BOLT, HEX SOCKET
ボルト 六角穴
M04X008(3カ シロ)
53 W1106D 2 WASHER, LOCK
ワッシャ スプリング
4M/M(3カ シロ)
54 GGRD3150 1 BKT
BKT
55 H5426K 1 BOLT, HEX SOCKET
ボルト 六角穴
M04X008(3カ シロ)
56 W1106D 1 WASHER, LOCK
ワッシャ スプリング
4M/M(3カ シロ)
139
PTS- NADXHD- 06

DX-Glue Tool Station 1/
DX-グルーツールステーション 1/
2UGKYT000102
No. Drg.No. & Code No. QTY Description Rating Remarks
番号 図番 & コード番号 個数 品名 規格 備考
57 H54254 1 BOLT, HEX SOCKET
ボルト 六角穴
M03X012(3カ シロ)
58 N10793 1 NUT, HEX
ナット 六角
M03 P=0.5(3カシロ)
59 PJ15691 1 GUIDE
ガイド
60 K5357L 2 SCREW, HEX SOCKET COUNTERSUNK
小ネジ 六角穴皿
M03X006(3カ シロ)
62 2MGKYT004701 1 PLATE
プレート
63 H54252 3 BOLT, HEX SOCKET
ボルト 六角穴
M03X008(3カ シロ)
64 W1106C 3 WASHER, LOCK
ワッシャ スプリング
3M/M(3カ シロ)
65 W1108D 3 WASHER, FLAT
ワッシャ 平
4W-3(3カ シロ)
66 S70834 1 CYLINDER, AIR
シリンダ エアー
JCDQ12-5-M9PV
67 H54259 4 BOLT, HEX SOCKET
ボルト 六角穴
M03X030(3カ シロ)
68 W1106C 4 WASHER, LOCK
ワッシャ スプリング
3M/M(3カ シロ)
69 A4067H 2 ELBOW
エルボ
M-3AU-4
70 2MGKYT005601 1 TUBE
チューブ
71 2MGKYT006000 1 TUBE
チューブ
73 2MGKHL116701 1 COVER, REAR
カバー リヤー
74 K67716 4 SCREW, C/R COUNTERSUNK
小ネジ +穴皿
M03X008(3カ シロ)
76 2MGKHL116603 1 COVER, SIDE
カバー サイド
77 K67716 8 SCREW, C/R COUNTERSUNK
小ネジ +穴皿
M03X008(3カ シロ)
78 2MGKYT001700 1 SEAL, BAR CODE
シール バーコード
unit serial number
80 2MGKYT010002 1 PLATE
プレート
81 K67716 2 SCREW, C/R COUNTERSUNK
小ネジ +穴皿
M03X008(3カ シロ)
82 2MGKYT010101 1 COVER, SIDE
カバー サイド
83 K67716 8 SCREW, C/R COUNTERSUNK
小ネジ +穴皿
M03X008(3カ シロ)
85 2MGKHL117101 4 BKT
BKT
86 2MGKHL117603 1 COVER, UPPER
カバー 上
87 K74410 4 SCREW, C/R COUNTERSUNK
小ネジ +穴皿
M03X008(3カクロ)
88 2MGKHL118901 1 SEAL
シール
89 2MGKHL192101 1 COVER, UPPER
カバー 上
90 K74410 4 SCREW, C/R COUNTERSUNK
小ネジ +穴皿
M03X008(3カクロ)
91 2MGKYT003700 1 COVER, UPPER
カバー 上
92 K74410 2 SCREW, C/R COUNTERSUNK
小ネジ +穴皿
M03X008(3カクロ)
94 2MGKYT010400 1 HOLDER, BOARD
ホルダ 基板
95 2MGKYT010500 1 SHEET
シート
96 K74410 4 SCREW, C/R COUNTERSUNK
小ネジ +穴皿
M03X008(3カクロ)
97 2AGKFA003806 1 BOARD, PRINTED CIRCUIT
基板 プリント
FH1732A3F
98 K5258F 2 SCREW, HEX SOCKET BUTTON
小ネジ 六角穴ボタン
M03X008(3カ シロ)
99 W1106C 2 WASHER, LOCK
ワッシャ スプリング
3M/M(3カ シロ)
100 W1108B 2 WASHER, FLAT
ワッシャ 平
3M/MX0.5X7(3カシロ)
101 W61824 2 WASHER
ワッシャ
WSJJ10-3-2
103 2AGKYT000201 1 BOARD, PRINTED CIRCUIT
基板 プリント
FH1859A0F
104 K5199Y 2 SCREW, WASHER ASS'Y
小ネジ 座金組込み
M03X005 ナベセムス P4(3カシロ)
105 2MGKHL119001 1 BKT
BKT
106 H54251 2 BOLT, HEX SOCKET
ボルト 六角穴
M03X006(3カ シロ)
107 W1106C 2 WASHER, LOCK
ワッシャ スプリング
3M/M(3カ シロ)
109 2MGKYT004100 1 TUBE
チューブ
110 2MGKYT009900 1 TUBE
チューブ
111 Y60345 1 UNION
ユニオン
KQ2U04-99A
112 Y60484 1 UNION
ユニオン
KQ2E04-00NJ
113 2MGKYT009500 1 TUBE
チューブ
114 H3128C 1 PLUG
プラグ
KK2P-04H
140
PTS- NADXHD- 06