KE-3010A_KE-3010AC_KE-3020VA_KE-3020VRA-Rev07PDFA.pdf - 第65页
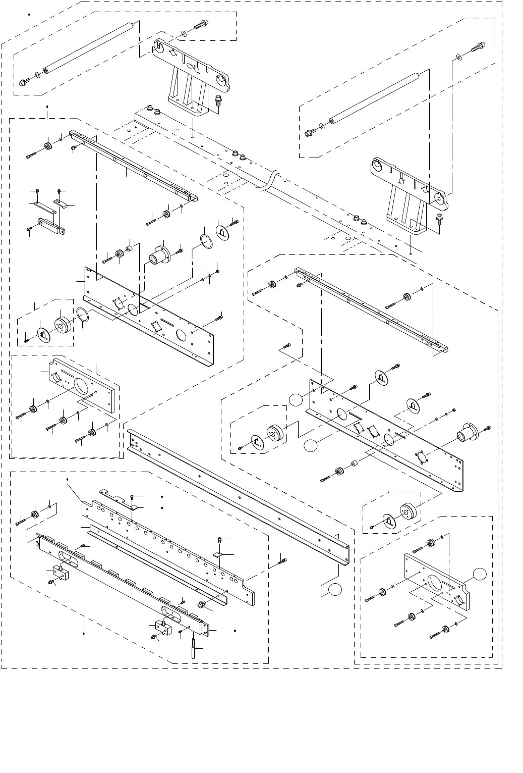
- 58 - NOTE( 注記 ) #01....TYPE M M 仕様 #02....TYPE L L 仕様 *INSTALLATION POSITION AND DIRE CTION VARY IF THE P WB TRANSFER REFERENCE IS DIFFER ENT. 基板搬送基準が異なると取 付位置、方向が変わります。 REF.NO NOTE PART NO D E S C R I P T I O N 品 名 Qt…

- 57 -
29.PWB CONVEYOR COMPONENTS(2)
基板搬送関係(2)
A
B
D
C
21
19
41
20
65
2
24
25
3 4
32
69
27
68
29
30
28
29
30
28
29
30
28
33
70
31
1
39
31
32
33
29
30
28
35
36
38
27
37
26
34
9
8
10
8
9
12
13
11
68
12
13
11
5
66
14
15
16
12
13
11
14
15
16
7
6
12
13
11
18
17
67
D
C
B
A
45
55
48
52
57
64
56
46
64
63
58
64
56
64
57
57
49
49
51
47
57
62
61
61
48
60
59
57
60
59
57
47
49
54
49
53
50
51
47
47
49
52
49
50
23
10
21
22
43
42
26
37
43
44
40

- 58 -
NOTE( 注記 ) #01....TYPE M M 仕様
#02....TYPE L L 仕様
*INSTALLATION POSITION AND DIRECTION VARY IF THE PWB TRANSFER
REFERENCE IS DIFFERENT.
基板搬送基準が異なると取付位置、方向が変わります。
REF.NO NOTE PART NO D E S C R I P T I O N
品 名
Qty
1 SL-6041492-TN SCREW
座金付き六角穴ボルト
2
2 SM-4040855-SC SCREW
なべ小ねじ M4 L=8
2
3
#02
401-14261 RAIL PLATE FL ASM L
レールプレートFL組L
1
4
#01
401-46972 RAIL_PLATE_FL_ASM_M
レールプレートFL組_M
1
5 SL-6031492-TN SCREW M3 L=14
座金付き六角穴ボルト M3 L=14
(4)
6 E2012-721-000 ADJUST PLATE
アジャストプレート
(1)
7 SL-6030692-TN SCREW M3 L=6
座金付き六角穴ボルト M3 L=6
(2)
8 E2111-715-0A0 CONVEYOR PULLEY ASM.
搬送プーリ(組)
(2)
9 WP-0430800-SC WASHER M4
平座金小形丸 M4
(2)
10 SM-4040855-SC SCREW
なべ小ねじ M4 L=8
(2)
11 E2089-721-0A0 CONVEYOR PULLEY B ASM.
搬送プーリB組
(4)
12 E2055-721-000 PULLEY SPACER
プーリスペーサ
(4)
13 SM-4042501-SC SCREW M4X0.7 L=25
なべ小ねじ M4X0.7 L=25
(4)
14 WP-0430801-SC WASHER M4
平座金 M4
(4)
15 WS-0410002-KN SPRING WASHER M4
ばね座金 M4
(4)
16 NM-6040001-SC NUT M4X0.7 TYPE1
六角ナット M4X0.7 1種
(4)
17 400-00828 CONVEYOR RAIL
コンベアレール
(1)
18 400-01048 RAIL PLATE FL(L)
レールプレートFL(L)
(1)
19
#01
401-47007 CONVEYOR_RAIL_M
コンベアレール_M
(1)
20
#01
SM-6040802-TN SCREW M4X0.7 L=8
六角穴ボルト M4X0.7 L=8
(1)
21
#01
SL-6030892-TN SCREW M3 L=8
座金付き六角穴ボルト M3 L=8
(4)
22
#01
401-47008 PWB_GUIDE_M
PWBガイド_M
(1)
23 E2046-725-000 PWB INNER
PWBインナ
(1)
24
#02
401-14262 RAIL PLATE FR ASM L
レールプレートFR組L
1
25
#01
401-46973 RAIL_PLATE_FR_ASM_M
レールプレートFR組_M
1
26 WP-0430800-SC WASHER M4
平座金小形丸 M4
(2)
27 SM-4040855-SC SCREW
なべ小ねじ M4 L=8
(2)
28 E2089-721-0A0 CONVEYOR PULLEY B ASM.
搬送プーリB組
(6)
29 E2055-721-000 PULLEY SPACER
プーリスペーサ
(6)
30 SM-4042501-SC SCREW M4X0.7 L=25
なべ小ねじ M4X0.7 L=25
(6)
31 WP-0430801-SC WASHER M4
平座金 M4
(6)
32 WS-0410002-KN SPRING WASHER M4
ばね座金 M4
(6)
33 NM-6040001-SC NUT M4X0.7 TYPE1
六角ナット M4X0.7 1種
(6)
34 400-00828 CONVEYOR RAIL
コンベアレール
(1)
35 E2012-721-000 ADJUST PLATE
アジャストプレート
(1)
36 SL-6030692-TN SCREW M3 L=6
座金付き六角穴ボルト M3 L=6
(2)
37 E2111-715-0A0 CONVEYOR PULLEY ASM.
搬送プーリ(組)
(2)
38 400-01051 RAIL PLATE FR(L)
レールプレートFR(L)
(1)
39 SL-6031492-TN SCREW M3 L=14
座金付き六角穴ボルト M3 L=14
(4)
40
#01
401-47007 CONVEYOR_RAIL_M
コンベアレール_M
(1)
41
#01
SM-6040802-TN SCREW M4X0.7 L=8
六角穴ボルト M4X0.7 L=8
(1)
42
#01
401-47008 PWB_GUIDE_M
PWBガイド_M
(1)
43
#01
SL-6030892-TN SCREW M3 L=8
座金付き六角穴ボルト M3 L=8
(4)
44 E2046-725-000 PWB INNER
PWBインナ
(1)
45 400-00831 PULLEY BRAKET L ASM
プーリブラケットL組
1
46 E2016-715-000 IDLER PULLEY
アイドラプーリ
(1)
47 E2017-715-000 M LINER BUSH
M ライナブッシュ
(4)
48 E2018-715-000 PULLEY SLEEVE
プーリスリーブ
(2)
49 WP-0531001-SC WASHER M5
平座金みがき丸 M5
(6)
50 WS-0510002-KN SPRING WASHER M5
ばね座金 M5
(2)
51 NM-6050001-SC NUT M5X0.8 TYPE1
六角ナット M5X0.8 1種
(2)
52 SM-6052502-TN SCREW
六角穴ボルト
(2)
53 400-00976 PULLEY BRAKET
プーリブラケット
(1)
54 E2157-721-000 PULLEY B
プーリ B
(1)
55 400-00832 PULLEY BRAKET R ASM
プーリブラケット R 組
1
56 E2018-715-000 PULLEY SLEEVE
プーリスリーブ
(2)
57 WP-0531001-SC WASHER M5
平座金みがき丸 M5
(6)
58 E2157-721-000 PULLEY B
プーリ B
(1)
59 WS-0510002-KN SPRING WASHER M5
ばね座金 M5
(2)
60 NM-6050001-SC NUT M5X0.8 TYPE1
六角ナット M5X0.8 1種
(2)
61 SM-6052502-TN SCREW
六角穴ボルト
(2)
62 400-00976 PULLEY BRAKET
プーリブラケット
(1)
63 E2016-715-000 IDLER PULLEY
アイドラプーリ
(1)
64 E2017-715-000 M LINER BUSH
M ライナブッシュ
(4)
65 WP-0430800-SC WASHER M4
平座金小形丸 M4
2
66 SL-6041492-TN SCREW
座金付き六角穴ボルト
2
67 SL-6031492-TN SCREW M3 L=14
座金付き六角穴ボルト M3 L=14
4
68 SL-6041092-TN SCREW
座金付き六角穴ボルト
4
69 E2111-715-0A0 CONVEYOR PULLEY ASM.
搬送プーリ(組)
2
70 SL-6031492-TN SCREW M3 L=14
座金付き六角穴ボルト M3 L=14
4

- 59 -
30.PWB CONVEYOR COMPONENTS(3)
基板搬送関係(3)
5
8
7
8
9
7
9
8
7
6
9
3
4
A
37
38
53
45
47
48
1
2
46
44
59
40
41
54
39
49
53
51
52
50
49
33
32
17
3
4
31
28
31
29
24
14
15
16
18
22
23
21
10
30
10
30
27
26
25
21
20
19
B
A
12
13
11
35
34
36
35
43 58
50
55 57
B
42
56