N7202A057B12(1)DX-partlist2.pdf - 第314页
22-A 部品排出コンベア:NPM Component Eject Convey or:NPM パーツレイアウト Kit No. キット 品番 Kit Name キット名称 N610090811AA セクションNo. PARTS LAYOUT Section No. - - O89 ( KN610090811AA-05-1 )

Ref
No.
Remarks R
1
Q'ty
21
ノズルチェンジャーユニット(2ノズルヘッド):NPM
Nozzle Changer Unit(2 Nozzle Head):NPM
イラスト
No.
Part No.
品 名品 番 数量
R
2
パーツリスト
Kit No.
キット品番
Kit Name
キット名称
N610162463AA
Part Name
備 考
セクションNo.
PARTS LIST
Section No.
R
3
Nozzle Changer
1
1 N610161635AA
BASE
1
2 N210191525AB
SHUTTER
1
3 N210095854AD
BLOCK
2
4 N210092627AB
COLLAR
1
5 N210092262AA
GUIDE
2
6 N210100265AA
BLOCK
1
7 N210092268AD
BLOCK
1
8 N210092269AC
SPRING
2
9 N210086260AA
STOPPER
1
10 N210106832AB
BLOCK
1
11 N210103604AB
GUIDE
1
13 N210100268AA
GUARD
1
14 N210119476AA
BEARING
4
15 KXF0AB1AA00 634ZZ1MC3
SPACER
4
16 N510030561AA CB-402E
PIN
4
17 N510020598AA MMS4-15
BEARING
4
18 N510039650AA 693T12AZZMC3
SPACER
4
19 N510030918AA CB-301E
PIN
4
20 N510020589AA MMS3-8
PIN
12
21 N510020607AA MMS5-10
SPACER
2
22 N510019914AA CB-308E
PIN
2
23 N510020595AA MMS3-35
SPACER
2
24 N510020196AA CB-310E
SHEET
4
25 MTPA002007AA
SHEET
4
26 MTPA002138AA
SHEET
2
27 MTPA002139AA
Label
1
28 N610162464AA
MEIBAN
1
29 N210103951AA
MEIBAN
1
30 N210099436AA
O88
--
( KN610162463AA-00 )

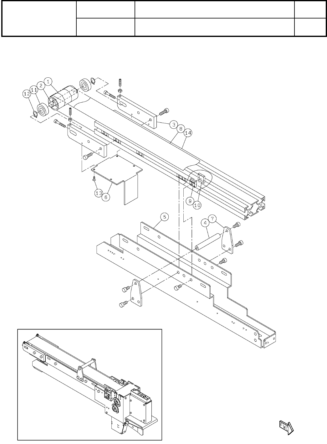
22-A
部品排出コンベア:NPM
Component Eject Conveyor:NPM
パーツレイアウト
Kit No.
キット品番
Kit Name
キット名称
N610090811AA
セクションNo.
PARTS LAYOUT
Section No.
--
O89
( KN610090811AA-05-1 )

Ref
No.
Remarks R
1
Q'ty
22-A
部品排出コンベア:NPM
Component Eject Conveyor:NPM
イラスト
No.
Part No.
品 名品 番 数量
R
2
パーツリスト
Kit No.
キット品番
Kit Name
キット名称
N610090811AA
Part Name
備 考
セクションNo.
PARTS LIST
Section No.
R
3
PULLEY
1
1 KXFB02TEA00
SHAFT
1
2 KXFB02TGA00
PLATE
2
3 N210092813AB
KNOB
1
4 N210084075AB
BASE FRAME
1
5 N210111348AA
COVER
1
6 N210084076AB
PLATE
2
7 N210093731AA
BELT
1
8 N510068343AA NS41UG0/2BK 50WX1057L
NUT
16
9 KXF0ATHAA00 SFB-001
CAP
16
10 KXF0ATFAA00 SFA-906
BEARING
2
11 KXF00JZAA00 6000ZZ/2AS
C-RING
2
12 KXF04CRAA00 STW-10
SCREW
4
13 XSS3+8VW
Cross recessed Countersunk head machine screw M3X8-A2-70
FRAME
1
14 N610074955AA
O90
--
( KN610090811AA-05-1 )