SP60P-L Mechanical.pdf - 第89页
Ref No. Remark s R 1 Q'ty 9-B ユニバーサルマスクホルダ(L) Univer sal Ma s k Holder (L) イラスト No. Part No. 品 名 品番 数量 R 2 パーツリスト Kit N o . キット品 番 Kit Name キット名称 KXFX03BSA00 Part Name 備 考 セクションNo. PARTS LIST Section No. R 3 BRACKET…

9-B
ユニバーサルマスクホルダ(L)
Universal Mask Holder (L)
パーツレイアウト
Kit N
o
.
キット品
番
Kit Name
キット名称
KXFX03BSA00
セクションNo.
PARTS LAYOUT
Section No.
--
M63
( KKXFX03BSA00-04-2 )

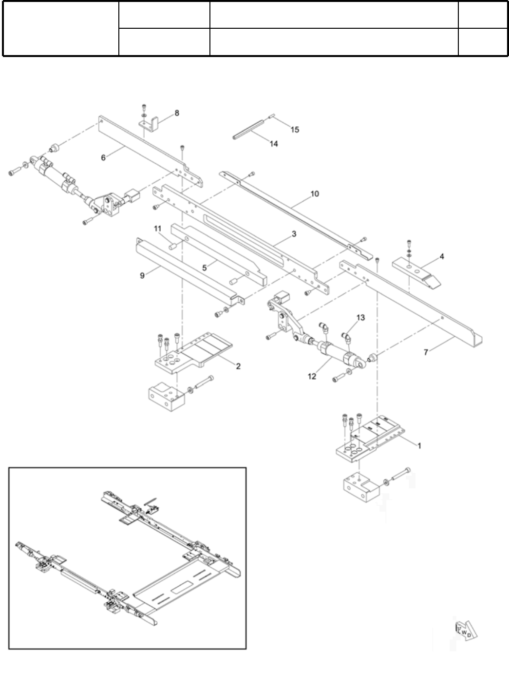
Ref
No.
Remarks
R
1
Q'ty
9-B
ユニバーサルマスクホルダ(L)
Universal Mask Holder (L)
イラスト
No.
Part No.
品 名品番 数量
R
2
パーツリスト
Kit N
o
.
キット品
番
Kit Name
キット名称
KXFX03BSA00
Part Name
備 考
セクションNo.
PARTS LIST
Section No.
R
3
BRACKET
1
1 KXFB08JLB00
BRACKET
1
2 KXFB08JMB00
GUIDE
1
3 KXFB0ARHA01
GUIDE
1
4 N210022815AA
PUSHER
1
5 KXFB013FB00
GUIDE
1
6 KXFB0AQSB00
GUIDE
1
7 KXFB0AR2B00
STOPPER
1
8 KXFB04CLA00
GUIDE
1
9 KXFB013RA01
GUIDE
1
10 KXFB0AR0A00
SPRING
2
11 KXF07U2AA00 DC586
CYLINDER
1
12 KXF0E40MA00 CM2C20-25
JOINT
2
13 KXF0A72AA00 KJL04-01S
SPACER
1
14 N510020115AA ASF-490E
SCREW
1
15 N510018431AA
Hexagon socket set screw Flat point M4X16-45H A2J
M64
--
( KKXFX03BSA00-04-2 )

9-C
ユニバーサルマスクホルダ(L)
Universal Mask Holder (L)
パーツレイアウト
Kit N
o
.
キット品
番
Kit Name
キット名称
KXFX03BSA00
セクションNo.
PARTS LAYOUT
Section No.
--
M65
( KKXFX03BSA00-04-3 )