QE64C-E-MPA-57.pdf - 第145页
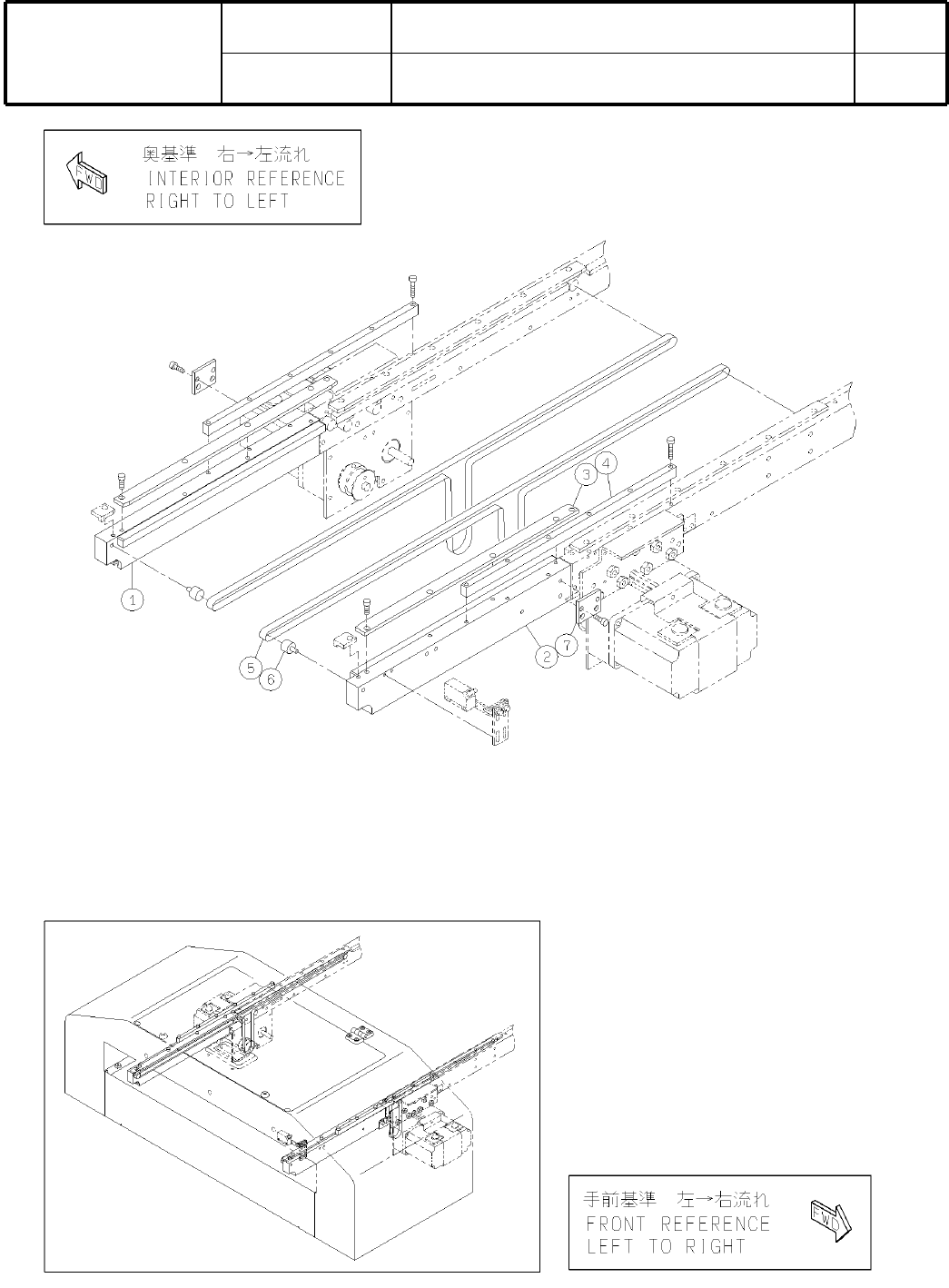
Ref No. Remarks R 1 Q'ty 4 基板 サ イ ド クラ ンプ Board Side Clamp イラスト No. Part No. 品 名 品番 数量 R 2 パー ツ リ スト Kit No. キ ット 品番 Kit Name キ ット 名称 KXFX036NA00 Part Name 備 考 セクション No . PARTS LIST Section No. R 3 CLAMPER 2 1 KXFB0…

4
基板
サイドクランプ
Board Side Clamp
パーツレイアウト
Kit No.
キット
品番
Kit Name
キット
名称
KXFX036NA00
セクション
No
.
PARTS LAYOUT
Section No.
-
-
S17
( KKXFX036NA00-05 )

Ref
No.
Remarks
R
1
Q'ty
4
基板
サイドクランプ
Board Side Clamp
イラスト
No.
Part No.
品 名品番 数量
R
2
パーツリスト
Kit No.
キット
品番
Kit Name
キット名称
KXFX036NA00
Part Name
備 考
セクション
No
.
PARTS LIST
Section No.
R
3
CLAMPER
2
1 KXFB02N0A01
PLATE
2
2 KXFB02N1A01
BAR
2
3 N210007694AA
PLATE
4
4 KXFB02N3A00
AIR-SLIDE
4
5 N510019323AA MXPJ6-5-X23A
JOINT
8
6 KXF02STAA00 M-3AU-4
JOINT
4
7 KXF02SZAA00 M-5ALU-4
JOINT
2
8 KXF02TJAA00 M-5UL
JOINT
4
9 KXF02TLAA00 M-5UT
JOINT
8
10 KXF02T3AA00 M-5AU-4
BOLT
4
11 N510017709AA
Hexagon head bolt Best class M3X12-6g 4T A2J (Trivalent)
BOLT
16
12 N510026172AA SEH0305
S18
-
-
( KKXFX036NA00-05 )

5-A
上流延長
コンベア
:
305
mm
Upstream Extension Conveyor:305mm
パーツレイアウト
Kit No.
キット
品番
Kit Name
キット
名称
N610003226AA
セクション
No
.
PARTS LAYOUT
Section No.
-
-
S19
( KN610003226AA-03-1 )