BM电路.pdf - 第11页
Date Page Name Tit le Panasonic PC System for Windows Program P8000CC 10/01/2007 6 BMV112A V01.12A **LADD ER DIAGRAM* * 0048 1-01 KR032E START IN01EA TRAY A SAFETY IN CO00 62 TRAY A COVE R 0034 *0048 0048 0055 0104 0105 …

Date
Page
Name
Title
Panasonic
PC System for Windows
Program
P8000CC
10/01/2007
5
BMV112A
V01.12A
**LADDER DIAGRAM**
0039
1-01
IN00B3
ENABLING SW
TS002C
50
SAFETY CHK
*0039
0040
1-01
***Maintenance circuit error***
TU002D
20
SAFETY CHK
START
IN0137
MANUAL WELD
CHK
OT02FF
MANUAL MODE
SIG
CI002D
SELECTIVE
SPEC14
CI000E
MMC READY
KR0337
SAFETY CIR ERROR
*0040 0040 0041
0040
1-02
KR0337
SAFETY CIR
ERROR
0041
1-01
KR0337
SAFETY CIR
ERROR
CI000A
INITIAL RESET
CO008B
SAFETY CIR. ERR.
*0041
0042
1-01
CI0002
MANUAL MODE
CI00E0
OPERATION
LEVEL
OT02FF
MANUAL MODE
SIG
RL0B21
SAFETY STOP
TU0024
100
SAFE STOP
RES OK
IN0137
MANUAL WELD
CHK
TU002C
50
SAFETY CHK
CI000E
MMC READY
KR0336
MAINTENANCE ERR
0042 *0042 0043
0042
1-02
KR0336
MAINTENANCE
ERR
0043
1-01
KR0336
MAINTENANCE
ERR
CI000A
INITIAL RESET
CO0081
MAINT CIRC ERR
*0043
0044
1-01
***Servo lock***
IN00BB
SERVO SW
IN012F
EMERGENCY
STOP
CO0002
SERVO LOCK SIG
*0044 0258 0439
0440 0441 0442
0553
0045
1-01
***Emer
g
enc
y
sto
p
***
IN012F
EMERGENCY
STOP
ST0035
lp3 down
CO00A5
ES SIGANL
0026 *0045 0067
0068 0094
0045
1-02
RL0710
ES AT POWER
ON
0045
1-03
IN00BF
RESET SW
ST0035
lp3 down
0046
1-01
***Cover o
p
en si
g
nal***
KR032E
START
IN01F8
COVER
OPEN(F)
CO0060
FRONT COVER
0034 *0046 0046
0050 0097 0104
0105 0106 0135
0046
1-02
CO00A0
OPERATION ON
CO000A
MAINT MODE F
CO0003
SAFETY INPUT F
*0046
0046
1-03
CO0060
FRONT COVER
0047
1-01
KR032E
START
IN01FB
COVER
OPEN(R)
CO0061
REAR COVER
0034 0047 *0047
0051 0097 0104
0105 0106 0135
0047
1-02
CO00A0
OPERATION ON
CO000B
MAINT MODE R
CO0004
SAFETY INPUT R
*0047
0047
1-03
CO0061
REAR COVER

Date
Page
Name
Title
Panasonic
PC System for Windows
Program
P8000CC
10/01/2007
6
BMV112A
V01.12A
**LADDER DIAGRAM**
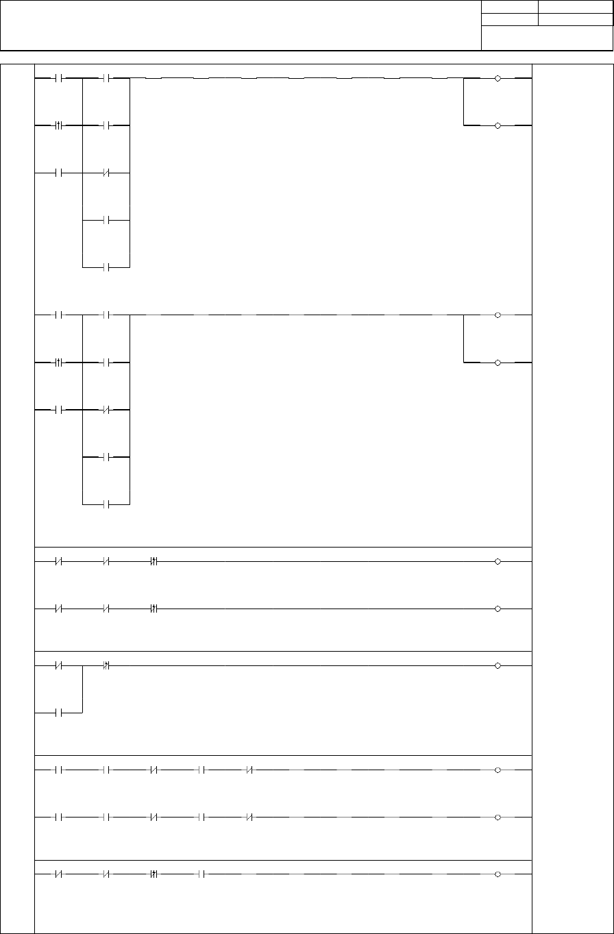
0048
1-01
KR032E
START
IN01EA
TRAY A
SAFETY IN
CO0062
TRAY A COVER
0034 *0048 0048
0055 0104 0105
0106
0048
1-02
CO00A0
OPERATION ON
CI0115
TZ1 L TRAY
EXCH
CO0005
TRAY A SAFETY IN
*0048
0048
1-03
CO0062
TRAY A COVER
CI0012
TRAY EXIST 1
0048
1-04
CO000B
MAINT MODE R
0048
1-05
CI0114
TZ1 U TRAY
EXCH
0049
1-01
KR032E
START
IN01F2
TRAY B
SAFETY IN
CO0063
TRAY B COVER
0034 0049 *0049
0056 0104 0105
0106
0049
1-02
CO00A0
OPERATION ON
CI0155
TZ2 L TRAY
EXCH
CO0006
TRAY B SAFETY IN
*0049
0049
1-03
CO0063
TRAY B COVER
CI0013
TRAY EXIST 2
0049
1-04
CO000B
MAINT MODE R
0049
1-05
CI0154
TZ2 U TRAY
EXCH
0050
1-01
***Safet
y
sto
p
intrude***
CO0060
FRONT COVER
CO00A6
RESET
COMPLETE
CO00A0
OPERATION ON
CO00A8
SAFETY INPUT F
*0050 0057
0051
1-01
CO0061
REAR COVER
CO00A6
RESET
COMPLETE
CO00A0
OPERATION ON
CO00A9
SAFETY INPUT R
*0051 0057
0052
1-01
***Emer
g
enc
y
sto
p
switch mem.***
IN012F
EMERGENCY
STOP
CO00A0
OPERATION ON
KR0327
EMERGENCY STOP
*0052 0052 0053
0054 0218
0052
1-02
KR0327
EMERGENCY
STOP
0053
1-01
***TZ axis brake***
IN01EE
TZA BRAKE
INPUT
CI000E
MMC READY
CI000F
POWER ON
WAIT
IN00BB
SERVO SW
KR0327
EMERGENCY
STOP
OT03BB
TZA BRAKE
*0053
0054
1-01
IN01F6
TZB BRAKE
INPUT
CI000E
MMC READY
CI000F
POWER ON
WAIT
IN00BB
SERVO SW
KR0327
EMERGENCY
STOP
OT03BF
TZB BRAKE
*0054
0055
1-01
***Safet
y
sto
p
intrude(TRAY)***
CO0062
TRAY A COVER
CO00A6
RESET
COMPLETE
CO00A0
OPERATION ON
CI0012
TRAY EXIST 1
CO00AA
TRAY A SAFETY IN
*0055 0057

Date
Page
Name
Title
Panasonic
PC System for Windows
Program
P8000CC
10/01/2007
7
BMV112A
V01.12A
**LADDER DIAGRAM**
0056
1-01
CO0063
TRAY B COVER
CO00A6
RESET
COMPLETE
CO00A0
OPERATION ON
CI0013
TRAY EXIST 2
CO00AB
TRAY B SAFETY IN
*0056 0057
0057
1-01
***Safet
y
sto
p
reset OK***
CO00A8
SAFETY INPUT
F
CO00A9
SAFETY INPUT
R
CO00AA
TRAY A
SAFETY IN
CO00AB
TRAY B
SAFETY IN
TS0024
100
SAFE STOP RES OK
*0057
0058
1-01
***AUTO/SEMI-AUTO memor
y
***
CI0000
AUTO MODE
CI0002
MANUAL MODE
RL0B22
AUTO/SEMI
0058 *0058 0097
0246 0252 0266
0267 0292 0297
0307
0058
1-02
CI0001
SEMI-AUTO
MODE
0058
1-03
RL0B22
AUTO/SEMI
0059
1-01
***Fan alarm***
IN00B1
FAN ALARM
RL0B30
FAN ALARM
RL0C1E
INITIAL RESET
CI000A
INITIAL RESET
CO0088
FAN ALARM
*0059
0059
1-02
CO000D
FAN ALARM
*0059
0060
1-01
IN00B1
FAN ALARM
RL0B30
FAN ALARM
0059 *0060
0061
1-01
***Area sensor check***
IN0070
F AREA
SENSOR 1
IN01F8
COVER
OPEN(F)
KR0323
F AREA SENSOR 1
0061 *0061 0066
0061
1-02
IN0071
F AREA
SENSOR 2
0061
1-03
IN0072
F AREA
SENSOR 3
0061
1-04
IN0028
F AREA
SENSOR 4
RL0D05
SPECIAL SPEC
5
0061
1-05
IN0029
F AREA
SENSOR 5
0061
1-06
CO00A0
OPERATION ON
0061
1-07
KR0323
F AREA
SENSOR 1
0062
1-01
IN00EF
COVER
OPEN(OUT)
IN01F8
COVER
OPEN(F)
CI000F
POWER ON
WAIT
TS0021
500
F AREA SENS CHK
*0062
0062
1-02
RL0D0D
SPECIAL SPEC
13
RL0D03
SPECIAL SPEC
3