BM电路.pdf - 第28页
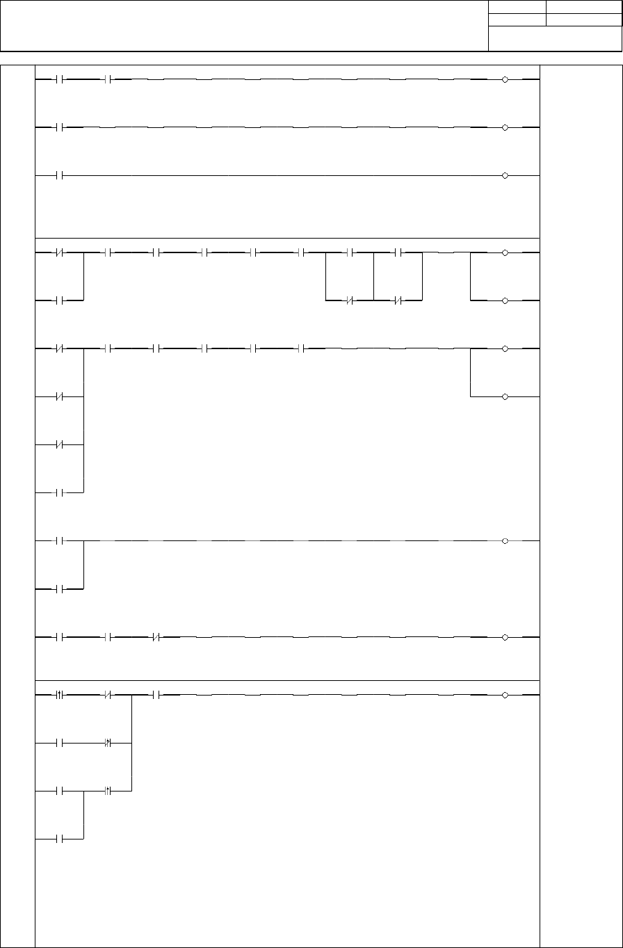
Date Page Name Tit le Panasonic PC System for Windows Program P8000CC 10/01/2007 23 BMV112A V01.12A **LADD ER DIAGRAM* * 0147 1-01 CI0081 H2-AXIS SELECT CO0141 H2-AXIS SELECT CI00 03 SUB-CTRL MODE CO01 41 H2-AXIS SELEC T…

Date
Page
Name
Title
Panasonic
PC System for Windows
Program
P8000CC
10/01/2007
22
BMV112A
V01.12A
**LADDER DIAGRAM**
0139
1-01
IN00BD
STOP SW
CI0007
STAET LIT
CO00A3
STOP SW
*0139
0140
1-01
IN00BF
RESET SW
CO00A4
RESET SW
*0140 0552
0141
1-01
CI000A
INITIAL RESET
CO00A6
RESET COMPLETE
0050 0051 0055
0056 0073 0075
0076 0078 0079
0081 0082 0084
*0141
0142
1-01
***Maintenance***
IN01F8
COVER
OPEN(F)
IN00B3
ENABLING SW
OT02BF
F OPE ENABLE
LED
CI0002
MANUAL MODE
CI00E0
OPERATION
LEVEL
IN01FB
COVER
OPEN(R)
IN01EA
TRAY A
SAFETY IN
IN01F2
TRAY B
SAFETY IN
CO000A
MAINT MODE F
0035 0046 *0142
0142 0144
0142
1-02
CO000A
MAINT MODE F
CI0012
TRAY EXIST 1
CI0013
TRAY EXIST 2
CO0008
ENABLING SW F
*0142
0143
1-01
IN01FB
COVER
OPEN(R)
IN00B3
ENABLING SW
OT0320
R OPE ENABLE
LED
CI0002
MANUAL MODE
CI00E0
OPERATION
LEVEL
IN01F8
COVER
OPEN(F)
CO000B
MAINT MODE R
0035 0047 0048
0049 0143 *0143
0144
0143
1-02
IN01EA
TRAY A
SAFETY IN
CO0009
ENABLING SW R
*0143
0143
1-03
IN01F2
TRAY B
SAFETY IN
0143
1-04
CO000B
MAINT MODE R
0144
1-01
CO000A
MAINT MODE F
CO00A7
MAINTENANCE MODE
*0144
0144
1-02
CO000B
MAINT MODE R
0145
1-01
IN0128
NOZ CHG1 OP
SENS
CI0003
SUB-CTRL
MODE
CI000A
INITIAL RESET
CO00AC
NOZ ST CHK REQ
*0145
0146
1-01
***Head manual o
p
eration***
CI0080
H1-AXIS
SELECT
CO0140
H1-AXIS
SELECT
CI0003
SUB-CTRL
MODE
CO0140
H1-AXIS SELECT
*0146 0146 0146
0180 0181 0182
0146
1-02
CO0140
H1-AXIS
SELECT
CI0080
H1-AXIS
SELECT
0146
1-03
OT0378
VACUUM
VALVE 1
CI0003
SUB-CTRL
MODE
0146
1-04
OT0338
BLOW VALVE 1

Date
Page
Name
Title
Panasonic
PC System for Windows
Program
P8000CC
10/01/2007
23
BMV112A
V01.12A
**LADDER DIAGRAM**
0147
1-01
CI0081
H2-AXIS
SELECT
CO0141
H2-AXIS
SELECT
CI0003
SUB-CTRL
MODE
CO0141
H2-AXIS SELECT
0147 0147 *0147
0183 0184 0185
0147
1-02
CO0141
H2-AXIS
SELECT
CI0081
H2-AXIS
SELECT
0147
1-03
OT0379
VACUUM
VALVE 2
CI0003
SUB-CTRL
MODE
0147
1-04
OT0339
BLOW VALVE 2
0148
1-01
CI0082
H3-AXIS
SELECT
CO0142
H3-AXIS
SELECT
CI0003
SUB-CTRL
MODE
CO0142
H3-AXIS SELECT
*0148 0148 0148
0186 0187 0188
0148
1-02
CO0142
H3-AXIS
SELECT
CI0082
H3-AXIS
SELECT
0148
1-03
OT037A
VACUUM
VALVE 3
CI0003
SUB-CTRL
MODE
0148
1-04
OT033A
BLOW VALVE 3
0149
1-01
CI0083
H4-AXIS
SELECT
CO0143
H4-AXIS
SELECT
CI0003
SUB-CTRL
MODE
CO0143
H4-AXIS SELECT
*0149 0149 0149
0189 0190 0191
0149
1-02
CO0143
H4-AXIS
SELECT
CI0083
H4-AXIS
SELECT
0149
1-03
OT037B
VACUUM
VALVE 4
CI0003
SUB-CTRL
MODE
0149
1-04
OT033B
BLOW VALVE 4
0150
1-01
CI0084
H5-AXIS
SELECT
CO0144
H5-AXIS
SELECT
CI0003
SUB-CTRL
MODE
CO0144
H5-AXIS SELECT
0150 0150 *0150
0192 0193 0194
0150
1-02
CO0144
H5-AXIS
SELECT
CI0084
H5-AXIS
SELECT
0150
1-03
OT037C
VACUUM
VALVE 5
CI0003
SUB-CTRL
MODE
0150
1-04
OT033C
BLOW VALVE 5

Date
Page
Name
Title
Panasonic
PC System for Windows
Program
P8000CC
10/01/2007
24
BMV112A
V01.12A
**LADDER DIAGRAM**
0151
1-01
CI0085
H6-AXIS
SELECT
CO0145
H6-AXIS
SELECT
CI0003
SUB-CTRL
MODE
CO0145
H6-AXIS SELECT
*0151 0151 0151
0195 0196 0197
0151
1-02
CO0145
H6-AXIS
SELECT
CI0085
H6-AXIS
SELECT
0151
1-03
OT037D
VACUUM
VALVE 6
CI0003
SUB-CTRL
MODE
0151
1-04
OT033D
BLOW VALVE 6
0152
1-01
CI0086
H7-AXIS
SELECT
CO0146
H7-AXIS
SELECT
CI0003
SUB-CTRL
MODE
CO0146
H7-AXIS SELECT
0152 *0152 0152
0198 0199 0200
0152
1-02
CO0146
H7-AXIS
SELECT
CI0086
H7-AXIS
SELECT
0152
1-03
OT037E
VACUUM
VALVE 7
CI0003
SUB-CTRL
MODE
0152
1-04
OT033E
BLOW VALVE 7
0153
1-01
CI0087
H8-AXIS
SELECT
CO0147
H8-AXIS
SELECT
CI0003
SUB-CTRL
MODE
CO0147
H8-AXIS SELECT
0153 *0153 0153
0201 0202 0203
0153
1-02
CO0147
H8-AXIS
SELECT
CI0087
H8-AXIS
SELECT
0153
1-03
OT037F
VACUUM
VALVE 8
CI0003
SUB-CTRL
MODE
0153
1-04
OT033F
BLOW VALVE 8