NPM-W2S 20161226.pdf - 第307页
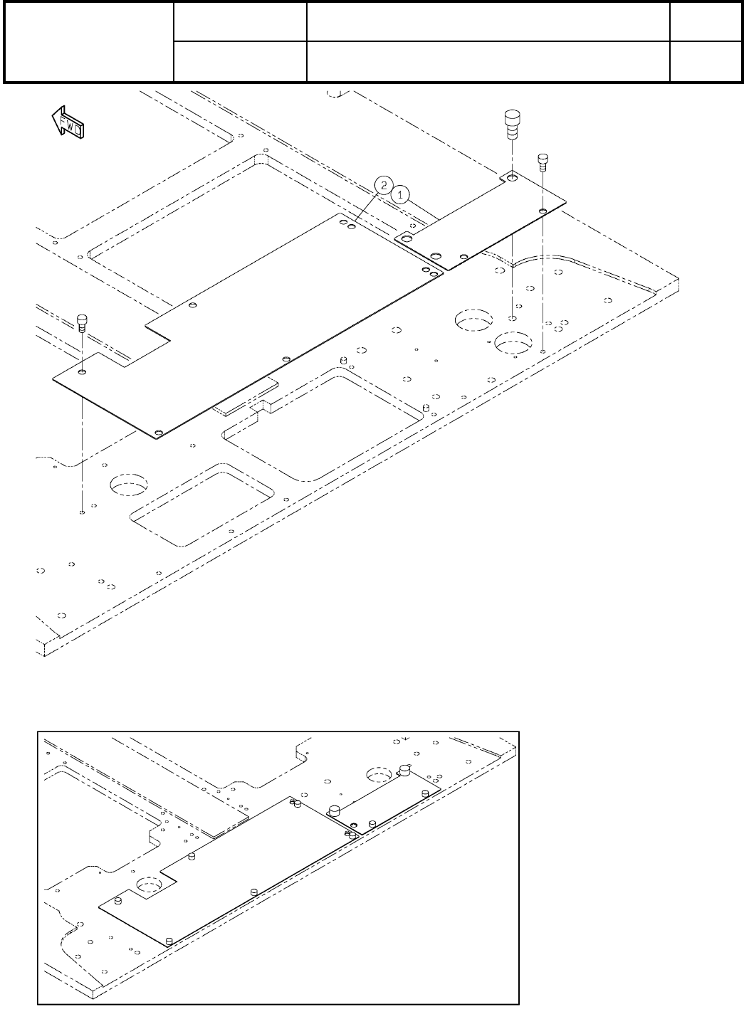
Ref No. Remarks R 1 Q'ty 33 部品落下防止カバー(30連台車用):NPM-W2S Parts Fall Prevention Cover(For 30 Slot Feeder C art):NPM -W イラスト No. Part No. 品 名 品 番 数量 R 2 パーツリスト Kit No. キット品番 Kit Name キット名称 MTKA014894AA Part Nam e 備 考 セク …

33
部品落下防止カバー(30連台車用):NPM-W2S
Parts Fall Prevention Cover(For 30 Slot Feeder Cart):NPM-W
パーツレイアウト
Kit No.
キット品番
Kit Name
キット名称
MTKA014894AA
セクションNo.
PARTS LAYOUT
Section No.
--
O121
( KMTKA014894AA-00 )

Ref
No.
Remarks R
1
Q'ty
33
部品落下防止カバー(30連台車用):NPM-W2S
Parts Fall Prevention Cover(For 30 Slot Feeder Cart):NPM-W
イラスト
No.
Part No.
品 名品 番 数量
R
2
パーツリスト
Kit No.
キット品番
Kit Name
キット名称
MTKA014894AA
Part Name
備 考
セクションNo.
PARTS LIST
Section No.
R
3
COVER
1
1 MTPB012263AA
COVER
1
2 MTPB012264AA
O122
--
( KMTKA014894AA-00 )

34
全体カバー(トレイフィーダ対応品):NPM-W2
Whole Cover(For Tray feeder):NPM-W2
パーツレイアウト
Kit No.
キット品番
Kit Name
キット名称
MTKA001702AA
セクションNo.
PARTS LAYOUT
Section No.
--
O123
( KMTKA001702AA-03 )