NPM料号.pdf - 第27页
Ref No. Remarks R 1 Q'ty 1-D 本体部:NPM-D3 Main Body :NPM-D 3 イラスト No. Part No. 品 名 品 番 数量 R 2 パーツリスト Kit No. キット品番 Kit Name キット名称 N610160755AA Part Nam e 備 考 セク ション No . PARTS LIST Section No. R 3 PLATE 1 1 N210091217…

1-D
本体部:NPM-D3
Main Body:NPM-D3
パーツレイアウト
Kit No.
キット品番
Kit Name
キット名称
N610160755AA
セクションNo.
PARTS LAYOUT
Section No.
--
S7
( KN610160755AA-18-4 )

Ref
No.
Remarks R
1
Q'ty
1-D
本体部:NPM-D3
Main Body:NPM-D3
イラスト
No.
Part No.
品 名品 番 数量
R
2
パーツリスト
Kit No.
キット品番
Kit Name
キット名称
N610160755AA
Part Name
備 考
セクションNo.
PARTS LIST
Section No.
R
3
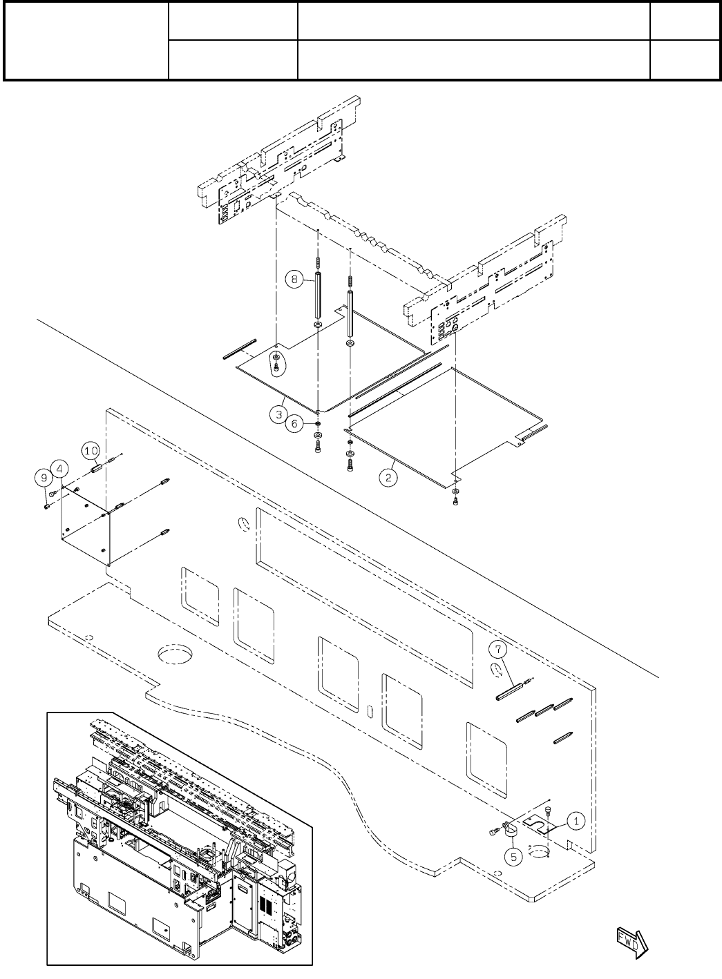
PLATE
1
1 N210091217AA
COVER
1
2 N210133594AB
COVER
1
3 N210195320AA
PLATE
1
4 N210188349AB
CLIP
1
5 KXF0E0V6A00 NK-12N
SPACER
2
6 N510031811AA CB-502E
SPACER
5
7 N510017067AA ASF-460E
SPACER
2
8 N510037917AA ASF-595E
SPACER
5
9 N510028373AA ASF-307E
SPACER
4
10 N510017063AA ASF-420E
S8
--
( KN610160755AA-18-4 )

1-E
本体部:NPM-D3
Main Body:NPM-D3
パーツレイアウト
Kit No.
キット品番
Kit Name
キット名称
N610160755AA
セクションNo.
PARTS LAYOUT
Section No.
--
S9
( KN610160755AA-18-5 )