yv88xg_j.pdf - 第27页
PA G E 25 YV88Xg (KGA) Con fi dential & Proprietary KGA-000-CN5 Air circuit (YV88Xg-S) 300V-03 KM23 8(ORANGE) 8(ORANGE) KM-11 040M12AJ 1-7 A040 -4E1-PLL 8-12 BP F300-03 -BG-A R300-03 SL12-03 GS1-50 -DL-41W SLY10-03 TL…

PAGE
24
YV88Xg (KGA)
Confi dential & Proprietary
KGA-000-CN5
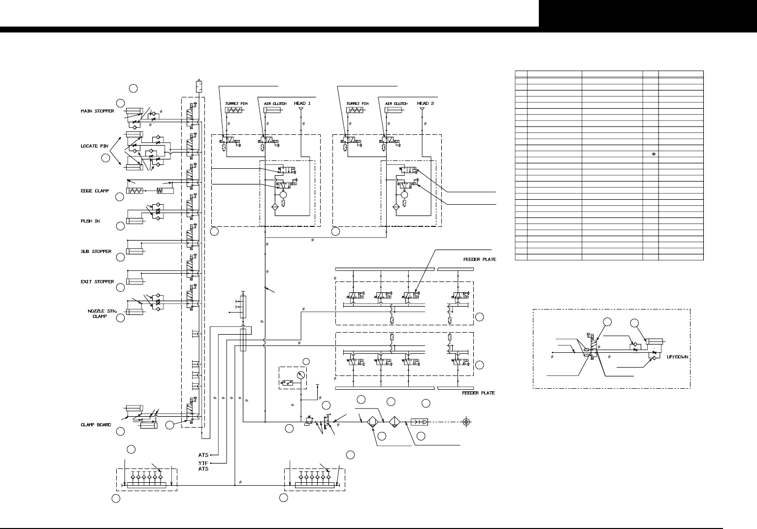
Air circuit (YV88Xg-F)
300V-03
KM23
8(ORANGE)
8(ORANGE)
KM-11
040M12AJ 1-7 A040
-4E1-PLL 8-12 BP
F300-03
-BG-A
R300-03
SL12-03
GS1-50
-DL-41W
SLY10-03
TL4-02
TSH4-M5
UEDW10-8
PBDAS 6X40
SC4-M5A
SC4-M5A
SC4-M5A
SSU4
PBDAS 6X40-ZC130A
PBSA 10X5
PBDA 10X30
YMDA 16X35
SL4-M5
SL4-M5
MANUHOLD
KM0-M1141-000
MANUHOLD
KM0-M1141-000
TSS4-01 TSH8-01
PLUG
K40-M8598-000
BF4
BF4
TL8-01TT8-01
stn.50stn.1 stn.2 stn.3
KM-06KM-06
VALVE ASSY 50-L
KGA-M3410-100
50123
TSS4-01
TSH8-01 PLUG
K40-M8598-000
BF4
BF4
TL8-01TT8-01
stn.150
stn.101
stn.102 stn.103
KM-06KM-06
VALVE ASSY 50-R
KGA-M3410-500
150101 102 103
8(ORANGE)
8(ORANGE)
SC4-M5A
UY8
SL8-01
US8
UC4
UY4
HI-CAPPLER
PLUG 30PM
AIR SOURCE
12
(ORANGE)
10(ORANGE)
8(ORANGE)
SL4-M5
TSH4-M5M
BDADS 10X10-ZC130A2
SL4-M5
( )
8(ORANGE)
VALVE ASSY 20-R(L)
KGA-M3410-200(400)
VALVE ASSY 16-R
KGA-M3410-300
VALVE ASSY 20-R(L)
KGA-M3410-200(400)
YMDA 16X35
UEF
UEF
UY4
PBDA 16X5-M
UEF4BU
8(ORANGE)
SL4-M5
TSH4-M5
SL6-M5
TSH4-M5
8(ORANGE)
AME07-E2-12W
KGA-M7111-A00
SL4-M5
KM-05
SL4-M5TLR4-M5
TSH4-M5
KM-05
SL4-M5
TSH4-M5
TSH6-M5M
TSH4-M5
AME07-E2-12W
KGA-M7111-A00
KM-05
SL4-M5TLR4-M5
TSH4-M5
KM-05
ME07M1A-029W
KGA-M7111-000
UYD8-6
6(ORANGE)
6(ORANGE)
USD10-8
UED8-4
UP8
UP4
UP4
LIGHTLIGHT
LIGHTLIGHT
YMDAS 10X20-ZE135A2
USD10-8
ME07M1A-029W
KGA-M7111-000
SL12-03
No. PART NO. PART NAME Q'TY REMARKS
1
2
4
5
6
1
7
8
9
10
11
12
13
17
15
16
2
21
22
23
24
25
26
27
28
29
30
1
1
1
1
1
1
2
2
2
2
2
1
1
14
3
1
18
1
19
20
2
1
2
1
8-30D3MODULE ADAPTER KG7-M8503-000
30PM KG7-M8512-000 JOINT
KG7-M8513-000
KG7-M8501-000
KG7-M8502-000
KH5-M8501-000
KG7-M8504-001
KG7-M8596-002
KM0-M8582-000
KM0-M1141-000
K40-M8598-000
KGA-M3410-*00
JOINT
AIR FILTER
MIST FILTER
EXHAUST VALVE
REGULATOR
PRESURE GAUGE
VALVE
MANUFOLD
PLUG 1 (R 1/8)
VALVE ASSY *
3/8" M-F ELBOW
F300-03-BG-A
MF300-03-A
300V-03
R300-03
GS1-50-DL-41W
KG2-M8582-400 VALVE(SPARE)
KV7-M9612-001
KV7-M9283-000
KV7-M9229-000
KV7-M9237-000
KV7-M9179-A00
AIR CYLINDER ASSY.
CYL.,YMDA16X35
CYLINDER
CYLINDER PBSA10X5
CYLINDER:ASSY
BDADS 10X10
YMDA 16X35
PBDA 10X30
PBSA 10X5
PBDAS 6X40
KV7-M9165-000
KGA-M7111-000
CYLINDER PBDAS6X40
VALVE ASSY.
PBDAS 6X40
KV7-M9269-000 CYLINDER PBDA 10X5-M
ME07M1A-029W
CYLINDER ASSY
VALVE KV8-M7535-010
YMDAS 10X20 KV8-M7522-010
1
13
4
8-30D3
20
12
13
11
10
1
M-F ELBOW3/8"
2
3
5
6
8
9
12
11
16
21
20
18
17
15
VALVE (for spare)
KGA-M37P1-000
23
14
26 26
SC4-M5A
SC4-M5A
KM-03
BF4BU-M3
US4
UEF4BU-M3
29
28
A041E1-PSL-48W
A010E1-PLL-59W
A041E1-11-PSL-48W
KV7-M7111-B00
A041E1-11-PSL-48W
KV7-M7111-B00
A041E1-11-PSL-48W
KV7-M711-B00
A041E1-PSL-48W
A010E1-PLL-59W
MF300-03-A
A041E1-11-PSL-48W
KV7-M7111-B00
4
4
(BLACK)
(ORANGE)
4
(CLEAR)
4
(CLEAR)
4
(CLEAR)
4
(CLEAR)
4
(CLEAR)
4
(CLEAR)
8
(ORANGE)
(ORANGE)
4
4
(ORANGE)
4(BLACK)
4(BLACK)
4
(ORANGE)
4
(ORANGE)
4
(BLACK)

PAGE
25
YV88Xg (KGA)
Confi dential & Proprietary
KGA-000-CN5
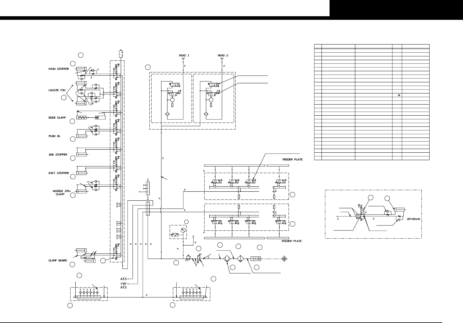
Air circuit (YV88Xg-S)
300V-03
KM23
8(ORANGE)
8(ORANGE)
KM-11
040M12AJ 1-7 A040
-4E1-PLL 8-12 BP
F300-03
-BG-A
R300-03
SL12-03
GS1-50
-DL-41W
SLY10-03
TL4-02
TSH4-M5
USD10-8
PBDAS 6X40
SC4-M5A
SC4-M5A
SC4-M5A
SSU4
PBDAS 6X40-ZC130A
PBSA 10X5
PBDA 10X30
YMDA 16X35
SL4-M5
SL4-M5
MANUHOLD
KM0-M1141-000
MANUHOLD
KM0-M1141-000
TSS4-01 TSH8-01
PLUG
K40-M8598-000
BF4
BF4
TL8-01TT8-01
stn.50stn.1 stn.2 stn.3
KM-06KM-06
50123
TSS4-01
TSH8-01 PLUG
K40-M8598-000
BF4
BF4
TL8-01TT8-01
stn.150
stn.101
stn.102 stn.103
KM-06KM-06
150101 102 103
8(ORANGE)
SC4-M5A
UY8
SL8-01
US8
UC4
HI-CAPPLER
PLUG 30PM
AIR SOURCE
12
(ORANGE)
10(ORANGE)
SL4-M5
TSH4-M5M
BDADS 10X10-ZC130A2
SL4-M5
( )
8(ORANGE)
YMDA 16X35
UEF
UEF
UY4
PBDA 16X5-M
UEF4BU
8(ORANGE)
SL4-M5
USD10-8
UED8-4
UP8
UP4
UP4
LIGHT
LIGHTLIGHTLIGHT
YMDAS 10X20-ZE135A2
LIGHT
USD10-8
TSR4-M5 TSR4-M5
SL8-01
TB4-01
ME07M2A-030W
KGA-M8182-000
TB4-01
VALVE ASSY 20-R(L)
KGA-M3410-200(400)
VALVE ASSY 16-R
KGA-M3410-300
VALVE ASSY 20-R(L)
KGA-M3410-200(400)
SL12-03
VALVE ASSY 50-R
KGA-M3410-500
VALVE ASSY 50-L
KGA-M3410-100
No. PART NO. PART NAME
Q'TY
REMARKS
1
2
4
5
6
1
7
8
9
10
11
12
13
17
15
16
2
21
22
23
24
25
26
27
28
29
30
1
1
1
1
1
1
2
2
2
1
2
1
1
14
3
1
18
1
19
20
2
1
2
1
8-30D3MODULE ADAPTER KG7-M8503-000
30PM KG7-M8512-000 JOINT
KG7-M8513-000
KG7-M8501-000
KG7-M8502-000
KH5-M8501-000
KG7-M8504-001
KG7-M8596-002
KM0-M8582-000
KM0-M1141-000
K40-M8598-000
KGA-M3410-*00
JOINT
AIR FILTER
MIST FILTER
EXHAUST VALVE
REGULATOR
PRESURE GAUGE
VALVE
MANUFOLD
PLUG 1 (R 1/8)
VALVE ASSY *
3/8" M-F ELBOW
F300-03-BG-A
MF300-03-A
300V-03
R300-03
GS1-50-DL-41W
KG2-M8582-400 VALVE(SPARE)
KV7-M9612-001
KV7-M9283-000
KV7-M9229-000
KV7-M9237-000
KV7-M9179-A00
AIR CYLINDER ASSY.
CYL.,YMDA16X35
CYLINDER
CYLINDER PBSA10X5
CYLINDER:ASSY
BDADS 10X10
YMDA 16X35
PBDA 10X30
PBSA 10X5
PBDAS 6X40
KV7-M9165-000
KGA-M8182-000
CYLINDER PBDAS6X40
EJECTOR
PBDAS 6X40
KV7-M9269-000 CYLINDER PBDA 10X5-M
ME07M2A-030W
CYLINDER ASSY
VALVE KV8-M7535-010
YMDAS 10X20 KV8-M7522-010
1
13
4
8-30D3
20
12
13
11
10
1
M-F ELBOW3/8"
2
3
5
6
8
9
12
11
16
21
20
18
17
15
23
14
SC4-M5A
SC4-M5A
KM-03
BF4BU-M3
US4
UEF4BU-M3
29
28
MF300-03-A
A041E1-PSL-48W
A010E1-PLL-59W
26
VALVE (for spare)
KGA-M37P1-000
4
4
(BLACK)
(ORANGE)
8(ORANGE)
UY4
(ORANGE)
4
4
(ORANGE)
4(BLACK)
4(BLACK)
8(ORANGE)
8(ORANGE)
8(ORANGE)
4(BLACK)
4(ORANGE) 4(ORANGE)
4(CLEAR) 4(CLEAR)

PAGE
26
Wiring parts list
Confi dential & Proprietary
KGA-1108
No. Part No. Part Name Q'ty Remarks No. Part No. Part Name Q'ty Remarks
1 KJ3-M661A-000 HNS,AC IN 1 1 J001 39 KGA-M663G-011 HNS,JC LAMP 24V 1 J067
2 KJ3-M661E-101 HNS,AC IN 2 1 J002 40 KV8-M536E-100 HNS 302 1 J071
3 KM5-M661E-006 HNS,QF-TM11 1 J003 41
4 KJ3-M661H-020 HNS,AC IN 3 1 J003 42 KV8-M66L1-001 HNS,FG-C/R 1 J072
5 KM6-M661G-003 HNS,TM11-TC11 1 J004 43 90K30-444160 HNS,EARTH 1 J073
6 KJ3-M662F-020 HNS,GS11 +24V 1 J004 44 90K30-045050 HNS,EARTH 1 J074
7 KJ3-M661K-011 HNS,KA1-KA2 1 J005 45 KK1-M664J-010 HNS,PE 1000 3 J077,J078,J079,J080,J089
8 KJ3-M661L-000 HNS,POWER SUPPLY 2 1 J006 46 90K30-245170 HNS,EARTH 1 J081
9 KJ3-M662E-001 HNS,LAMP +24V 1 J007 47 KK1-M664J-010 HNS,PE 1000 1 J089
10 KGA-M662E-021 HNS,TC11-QF XT21 1 J011 48 KM0-M536A-010 HNS,PE 70 2 J090,J091
11 KGA-M662F-020 HNS,UPS POWER IN 1 J012 49 90K30-444040 HNS,EARTH 1 J093
12 KGA-M662G-040 HNS,UPS POWER OUT 1 J013 50 KGA-M664A-003 HNS,I/01 CMN 1 J101
13 KM6-M661J-001 HNS,TM11-QF31 1 J014 51 KGN-M66N9-000 HNS,LIGHT9 1 J1010,J1014
14 KM6-M661K-001 HNS,QF31-NF11 1 J015 52 KV8-M664F-000 HNS 4-3(CMN,I/O AB) 1 J102
15 KV8-M661J-001 HNS,TM11-QF32 1 J016 53 KGA-M664E-001 HNS,I/O2 CMN 1 J103
16 KGA-M662M-001 HNS,U10 JUMPER 1 J017 54 KV8-M664J-000 HNS 4-6(I/O CMN Y-FL 1 J108
17 KM6-M661L-002 HNS,NF11-KM11 1 J018 55 KG2-M669R-113 HNS,BUZZER 1 J109,J103
18 KV8-M661N-002 HNS,QF32-KM10A 1 J019 56 KW3-M668H-001 HNS,FDD 1 J110
19 KGA-M662A-012 HNS,C/R POWER 1 J021 57 KGA-M664M-030 HNS,UPS 1 J111
20 KGA-M667L-000 HNS,CONNE.-FAN 1 J022 58 KU8-M66F5-202 HNS,VGA 2M 1 J112
21 KGA-M662U-002 HNS,CNF9/13 EMG 1 J024 59 KU8-M66F5-302 HNS,VGA 3M 1 J113
22 KGT-M663H-010 HNS,LCD POWER 1 J028 60 KV6-M664G-002 HNS,CMN HEAD 1 J114
23 61 KU8-M66F5-502 HNS,VGA 5M 1 J115
24 KGA-M662R-040 HNS,SENSOR PWR 1 J030 62 KW3-M668X-000 HNS, KB EXTEND(2m) 1 J117
25 KGA-M662W-003 HNS,CNF41 POWER 1 J040 63 KGK-M6640-000 HNS,KEY/MOUSE ASSY 1 J118
26 KV8-M661U-005 HNS,CNF16 1 J041 64 KV7-M665A-003 HNS,PI1A 1 J121
27 KV8-M661V-001 HNS,PWR,HEAD I/O 1 J043 65 KV7-M665E-003 HNS,PI2A 1 J122
28 KV7-M661W-001 HNS,PWR,H-I/O 1 J044 66 KGA-M665F-011 HNS,PI1B 1 J123
29 KGA-M662X-002 HNS,QF22-GS21 1 J047 67 KV7-M665G-001 HNS,PI2B 1 J124
30 KV7-M662Y-010 HNS,CONN CNF21 1 J048 68 KV7-M665J-000 HNS 5-6(PI X,Z1,Z2) 1 J125
31 KGA-M662K-021 HNS,CRT POWER 1 J049 69
32 KGA-M662K-021 HNS,CRT POWER 2 J049,J050 70 KV7-M665H-000 HNS 5-5(Y-FLEX PI R, 2 J126,J127
33 KV8-M663A-003 HNS,POWER MTR 1 J051 71 KV7-M665L-010 HNS,5-8(XFLEX PI) 1 J128
34 KV1-M663N-002 HNS,CNF6.7.37-C 1 J052 72 KV8-M665K-000 HNS 5-7(X-BEAM,PI X) 1 J129
35 KV7-M663M-001 HNS,CNF4-CONV 1 J058 73 KV7-M665K-001 HNS,X-FLEX PI N 1 J130
36 KG2-M663R-003 HNS,CONTROL,H/L 2 J061,J062 74 KV8-M665M-000 HNS 5-9(PI W) 1 J131
37 KV8-M663T-003 HNS,SPEED CONTROL 1 J063 75 KGA-M665G-000 HNS,BASE PUP 1 J132
38 KGA-M663F-021 HNS,LAMP +24V 1 J066 76 KGA-M665A-000 HNS,BASE Y1P 1 J133