P-0209-001.pdf - 第93页
MODEL TCM-X100J 0212-002 Key No. P AR T No. P AR T NAME Q’ ty REMARKS NOTE 91 H-1 1 630 096 4813 BASE(CONVEYOR R) 1 7 6 6 H - - 010-001 2 630 096 4820 PL A TE , L O C A T E 1 766H--010-002 3 41 1 141 4107 WA SH ER V 5 X …

MODEL TCM-X100J
0212-002
90
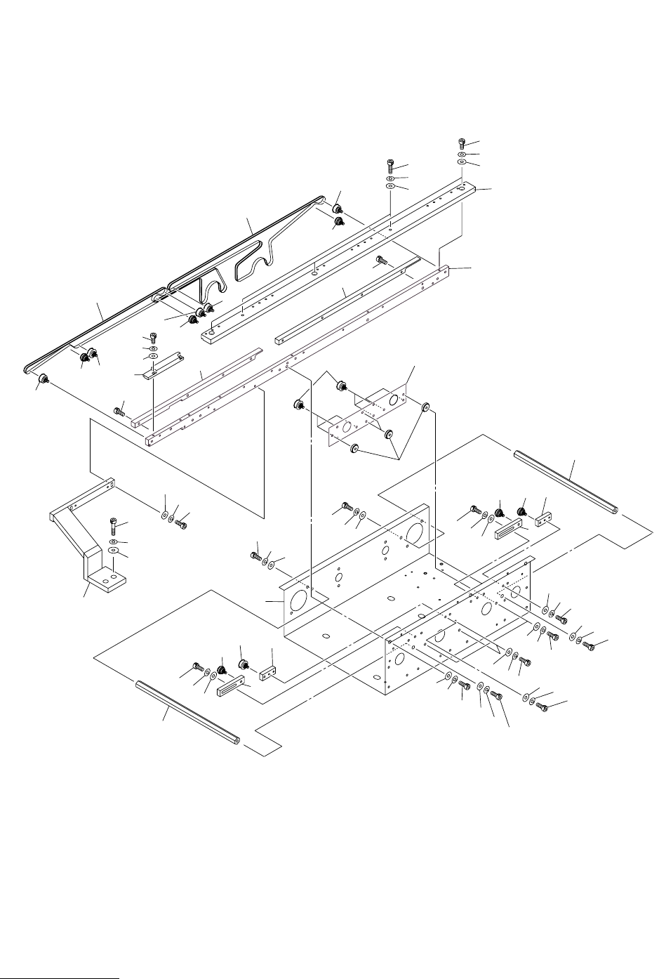
R ࠦࡦࡌࠕㇱ R CONVEYOR SECTION
Fig. H-1 ࿕ቯࠦࡦࡌࠕࠪࡘ࠻ Fixed Side Conveyor Chute
27
33
31
30
25
20
21
26
17
31
33
30
29
6
35
16
23
23
30
31
21
8
9
22
3
4
5
3
4
5
8
9
22
37
8
9
22
30
31
21
26
37
5
4
3
2
22
9
8
1
22
9
8
17
17
26
18
17
26
35
21
28
38
26
5
4
3
31
32
30
26
35
24
24
43
44
42
39
40
41

MODEL TCM-X100J
0212-002
Key No. PART No. PART NAME Q’ty REMARKS
NOTE
91
H-1
1 630 096 4813 BASE(CONVEYOR R) 1 766H--010-001
2 630 096 4820 PLATE,LOCATE 1 766H--010-002
3 411 141 4107 WASHER V 5X10X1 8 766H--010-003
4 411 141 6705 WASHER SPR 5 8 766H--010-004
5 630 000 7763 BOLT,HEX-SCT 8 766H--010-005
6 630 096 4875 PLATE 1 766H--010-006
8 411 141 4305 WASHER V 6X12.5X1.6 7 766H--010-008
9 411 141 3001 WASHER SPR 6 7 766H--010-009
16 630 077 4726 COLLAR 4 766H--010-016
17 630 092 6224 PULLEY,FLAT 4 766H--010-017
18 630 077 4924 GUIDE(MAE 2) 1 766H--010-018
20 630 096 4950 CHUTE 1 766H--010-020
21 630 000 7640 BOLT,HEX-SCT 12 766H--010-021
22 630 000 7886 BOLT,HEX-SCT 7 766H--010-022
23 630 075 6159 PLATE 2 766H--010-023
24 630 077 4689 SPACER 2 766H--010-024
25 630 096 4967 CHUTE 1 766H--010-025
26 630 092 6231 PULLEY,FLAT 6 766H--010-026
27 630 089 7654 BELT,FLAT 1 766H--010-027
28 630 090 8008 BELT,FLAT 1 766H--010-028
29 630 096 4998 GUIDE 1 766H--010-029
30 411 141 4008 WASHER V 4X9X0.8 11 766H--010-030
31 411 141 2905 WASHER SPR 4 11 766H--010-031
32 630 000 7664 BOLT,HEX-SCT 2 766H--010-032
33 630 000 7633 BOLT,HEX-SCT 5 766H--010-033
35 630 092 6217 PULLEY,FLAT 9 766H--010-035
37 630 088 2520 STAY 2 766H--010-037
38 630 106 6141 BRACKET 1 766H--010-038
39 411 141 4008 WASHER V 4X9X0.8 2 766H--010-039
40 411 141 2905 WASHER SPR 4 2 766H--010-040
41 630 000 7664 BOLT,HEX-SCT 2 766H--010-041
42 630 001 0220 WASHER 2 766H--010-042
43 411 141 6705 WASHER SPR 5 2 766H--010-043
44 630 000 7794 BOLT,HEX-SCT 2 766H--010-044

MODEL TCM-X100J
0212-002
92
R ࠦࡦࡌࠕㇱ R CONVEYOR SECTION
Fig. H-2 นേࠦࡦࡌࠕࠪࡘ࠻ Movable Side Conveyor Chute
121
130
126
132
123
126
132
128
133
134
118
117
127
123
118
117
103
114
112
111
107
106
105
122
125
118
117
105
106
107
117
116
118
119
147
147
112
135
117
116
124
118
119
146
140
139
138
145
143
A
C
B
B
C
D
144
143
144
140
139
138
145
146
140
139
138
141
142
137
110
109
108
105
132
131
135
106
107
123
118
117
135
101
See Fig.H-1
Key No.2
See Fig.H-1
Key No.1
101
115
129
104
129
131
124
132
135
132
126
123
102
Fig.H-2
TCM-X100J-002
4797S-002
115
113
D
115
113
A
132