JM-20_安装要领书.pdf - 第6页
安装要领书 2 2. 主机的搬运方法 <程序> 用叉车移动时,请把叉车的爪从主机前方放入,确认叉车爪全部伸出主机的后方之后,再抬起移动。 如果有选购的脚轮,请升起调节器,使脚轮充分接触地板 (地面)后再进行机器的搬运及移动。 (作 业方法请参照以下所述。) <注意> 1. 用叉车移动时,请把货物重心标志放到叉车爪的中央位置。 (板条货架也同样。) 2. 请不要安装着视觉监视器、信号灯的状态用叉车移动主机。 (板条货架也同样。) 信号灯 …

安装要领书
1
1. 基本构成和各部分的名称
1-1. JM-20
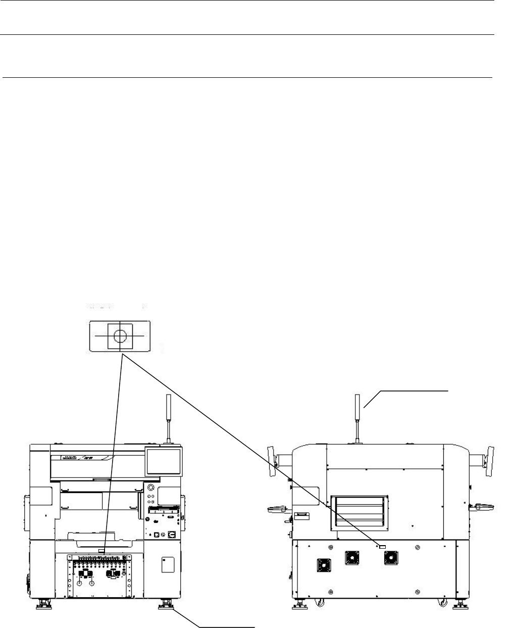
图 1-1 正面图 图 1-2 右侧面图
① 液晶显示器(触摸屏)
② 主开关
③ 信号灯
④ 键盘(附带轨迹球):背侧配置是选项
注意
如果刚开封就发现机器有故障部位、缺少零件等,请拍下照片并记录下来。
处理索赔时可能需要。
①
④
③
③
②

安装要领书
2
2. 主机的搬运方法
<程序>
用叉车移动时,请把叉车的爪从主机前方放入,确认叉车爪全部伸出主机的后方之后,再抬起移动。
如果有选购的脚轮,请升起调节器,使脚轮充分接触地板(地面)后再进行机器的搬运及移动。(作
业方法请参照以下所述。)
<注意>
1. 用叉车移动时,请把货物重心标志放到叉车爪的中央位置。
(板条货架也同样。)
2. 请不要安装着视觉监视器、信号灯的状态用叉车移动主机。
(板条货架也同样。)
信号灯
脚轮
货物重心标志

安装要领书
3
3. 有关包装箱包装材料等的除去
3-1. 机器主体
请取下包装机器的塑料包装。
(仅限对国内出货机器)
塑料包装尺寸(横宽×纵深×高度)
1500×1870 (2080)×1650
※( )内为包含前侧 LCD 的尺寸
塑料包装厚度
t = 0.05 mm
注) 塑料包装尺寸,均是按照对应最大基板
尺寸的机器外形尺寸设定的。
设置作业结束之后,请把注意事项标签(4 张)剥下。
请撕掉覆盖在传送装置、座架部上的防锈纸。