NPM-W2--规格说明书2014.12.16.pdf - 第124页
NPM-W2 2014.1216 - 1 18 - 交换台车时,是必须的最小限空间。 设置机器时请必须确保以下的空间。 ( 单位 : mm) 安装双式托盘供料器时,是必须的最 小限空间。 在维护作业时有时会卸下托盘供料器 ,所以设置机器时请必须确保以下的空间。 ・ 单式托盘供料器时, 是 ( ) 内的尺寸。 Remarks 交换台车设置范围的地面倾斜,需要台车 的左右方向在 6 mm 以内,前后方向在 11 mm 以内。…

NPM-W2 2014.1216
- 117 -
■ 单式托盘供料器
(单位: mm)
※ 托盘供料器高度 896 mm,是 NPM-W2 的基板搬送高度是 900 mm 时的标准值。
可调整范围是: 896 mm
■ 双式托盘供料器
(单位: mm)
※ 托盘供料器高度 838 mm,是 NPM-W2 的基板搬送高度是 900 mm 时的标准值。
可调整范围是: 838 mm
896
※
1 052
985
68
873
828
480
+65
-16.5
基板中心
(750 × 550 mm
基板
)
872
828
542.5
838
※
1 052
986
945
978
353 68
542.5
基板中心
(750 × 550 mm
基板
)
+65
-16.5

NPM-W2 2014.1216
- 118 -
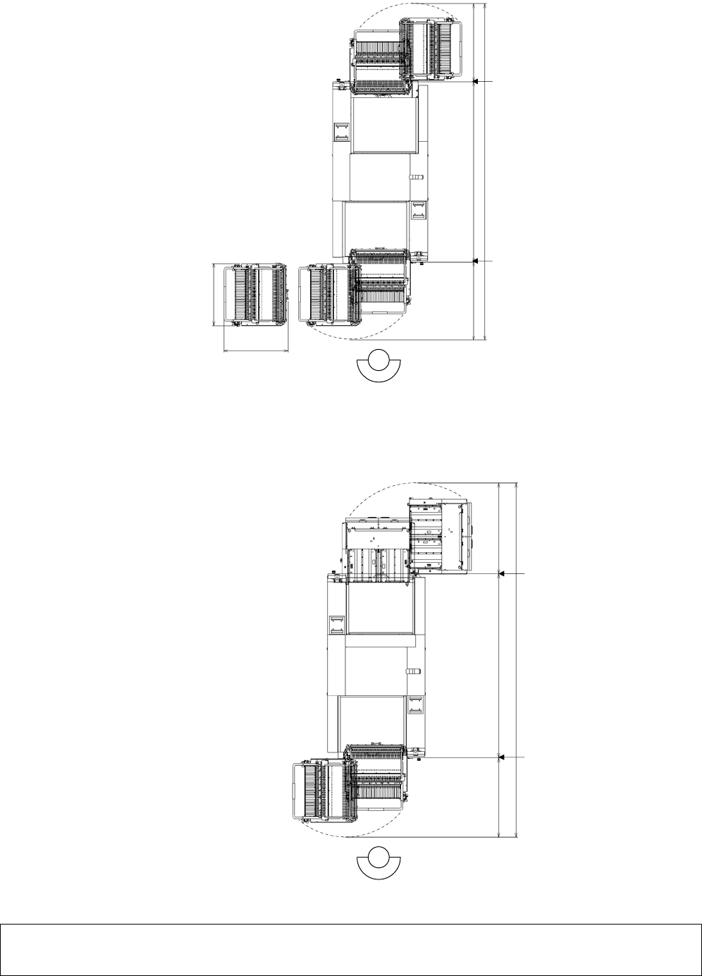
交换台车时,是必须的最小限空间。
设置机器时请必须确保以下的空间。
(单位: mm)
安装双式托盘供料器时,是必须的最小限空间。
在维护作业时有时会卸下托盘供料器,所以设置机器时请必须确保以下的空间。
・单式托盘供料器时,
是( )内的尺寸。
Remarks
交换台车设置范围的地面倾斜,需要台车的左右方向在 6 mm 以内,前后方向在 11 mm 以内。
地面倾斜度超过此范围时,不可搬移交换台车。
前 侧
前 侧
859
808
4 492
2 332 1 080 1 080
安全盖端面
安全盖端面
4 602 (4 267)
1 080
1 190 (855)
2 332
安全盖端面
安全盖端面

NPM-W2 2014.1216
- 119 -
14. 有关许可证
为了启动以下软件(选购件),需要各自的使用许可证。
・ PanaCIM-EE 对应
・ 元件校对
・ 自动机种切换
・ 供料器准备导向
・ 上位通信
・ APC 系统对应
※1
・ 其他厂家检查机界面软件
※2
・ 支援站箱(元件校对类型)
每台启动的设备都需要一个使用许可证。
对以上的软件选择,生产线中的所有设备,必须是相同的。
如果一条线中软件的使用许可证或有或无,就不能保证生产线整体的运转。
※1 以下每一台设备需要本选购件。
1)
搭载 2D 检查头的生产线的第一台设备 NPM-W2
2)
接收 APC 补正数据的 NPM-W2
※2 每台接收 APC 补正数据的 NPM-W2 都需要本选购件。(APC 系统许可证也需要相同数量。)
【重要】
为了使用以上应用软件,需要在下页的「软件的使用条件」签字同意。请必须浏览确认。
正确例子 错误例子
自动机种切换 × 3
自动机种切换 × 2
有许可证
NPM-W2
有许可证
无许可证
NPM-W2