NPM-W2--规格说明书2014.12.16.pdf - 第98页
NPM-W2 2014.1216 - 92 - B-8 希望自动准备支撑销。 On-site 机器整体 支撑销自动更换 在贴装头自动配置支撑销的功能。 1 片基板最多可以自动配置 40 个支撑销。 ( 不可使用标准规格的支撑销。 ) 点胶头 / 检查头+贴装头 ( 或者无工作头+贴装头 ) 规格时,在一侧的贴装头对应前侧轨道和后侧轨道的销配置。 支撑销配置数据在 NPM-DGS 编制而成。可以在 PC 画面确认销的配置位置。 附属品 内…

NPM-W2 2014.1216
- 91 -
B-7
为了缩短机种切换时间,在离线作业时切换基板支撑销的位置。
Customer
基板支撑块
(
单轨传送带用
)
基板支撑块
(
双轨传送带用
)
・ 附属基板支撑块(4 块)和支撑销(20 个)。
・ 能够以 1 块为单位进行追加购买。追加购买时不附属支撑销。根据需要,请选择「追加支撑销」。
・ 若在离线作业时决定新基板支撑销的位置,请选择「支撑销安装治具」。
・与 NPM-W 可通用。
※ 与「支撑销自动更换」不可兼用。
Customer
单轨模式对应基板支撑块
(
双轨传送带用
)
・ 单轨模式生产时需要 2 块。
与双轨传送带用支撑块组合使用。(参照下图)
・ 能够以 1 块为单位进行追加购买。
・ 不附属支撑销。根据需要,请选择「追加支撑销」。
・ 若在离线作业时决定新基板支撑销的位置,请选择「支撑销安装治具(双轨传送带用)」。
・与 NPM-W 可通用。
※ 与「支撑销自动更换」不可兼用。
Customer
支撑销安装治具
(
单轨传送带用
)
支撑销安装治具
(
双轨传送带用
)
・ 由于在离线作业准备支撑销,请选择「基板支撑块」。
・ 与 NPM-W 可通用。
Customer
追加支撑销
・ 需要追加时请选择。(20 个/套)
・ 单轨、双轨共用。
・ NPM-W, NPM-D3/ D2/ D, NPM-TT, AM100 以及 NPM(双轨规格)的支撑销可以通用。
基板支撑块(单轨传送带用)
(348 × 248 mm)
基板支撑块(双轨传送带用)
(353 × 231 mm)
基板支撑块(单轨模式对应)
(353 × 270 mm)
基板支撑块(双轨传送带用)
(
353 × 231 mm
)

NPM-W2 2014.1216
- 92 -
B-8
希望自动准备支撑销。
On-site
机器整体
支撑销自动更换
在贴装头自动配置支撑销的功能。
1 片基板最多可以自动配置 40 个支撑销。(不可使用标准规格的支撑销。)
点胶头/检查头+贴装头(或者无工作头+贴装头)规格时,在一侧的贴装头对应前侧轨道和后侧轨道的销配置。
支撑销配置数据在 NPM-DGS 编制而成。可以在 PC 画面确认销的配置位置。
附属品 内 容 备 注
基板支撑块(自动更换用): 根据传送带规格,请选择任一项。
与 NPM-W 可通用
单轨传送带用 1套 (4 块)
双轨传送带用 1套 (前/后各 2 块)
专用更换器 1 套 (前/后各 1 个) 与 NPM-W/ D3/ D2/ D/ TT 可通用
选 项 内 容 备 注
支撑销(自动更换用) 与 NPM-W/ D3/ D2/ D/ TT, AM100 可通用
支撑销配置用吸嘴
100
吸嘴: 16/ 12/ 8 吸嘴贴装头用
1100
吸嘴: 3 吸嘴贴装头用
与 NPM-W/ D3/ D2/ D/ TT 可通用
支撑销配置用吸嘴,收纳于专用的吸嘴更换器。
专用吸嘴更换器可以收纳#100 吸嘴和#1100 吸嘴各 1 个。
进行支撑销的自动更换时的有关限制条件,请参考下一页。
Customer
支撑销
(
自动更换用
)
・ 1 片基板最多可以配置 40 个。(基板尺寸 L= 350 mm 以下时: 最多 20 个)
(双轨传送带规格时: 前侧轨道+后侧轨道最多 80 个)
Customer
支撑销配置用吸嘴
・ 请根据贴装头构成进行选择。(各贴装头使用 1 个。)
支撑销(自动更换用)
基板支撑块(自动更换用)
专用更换器
机种 A
机种 B
标准位置
※2
(基准轨道侧)
支撑销的再配置时间: 100 s/ 10 个
※1
(机种 A → 机种 B)
尖端直径: φ1.5 mm
100 吸嘴
(16/ 12/ 8
吸嘴贴装头用)
1100
吸嘴
(3
吸嘴贴装头用)
※1 350 × 260 mm 基板时(不包括传送轨道的宽度变更时间。)
※2 根据条件不同,从机种 A 直接切换到机种 B 的支撑销配置。

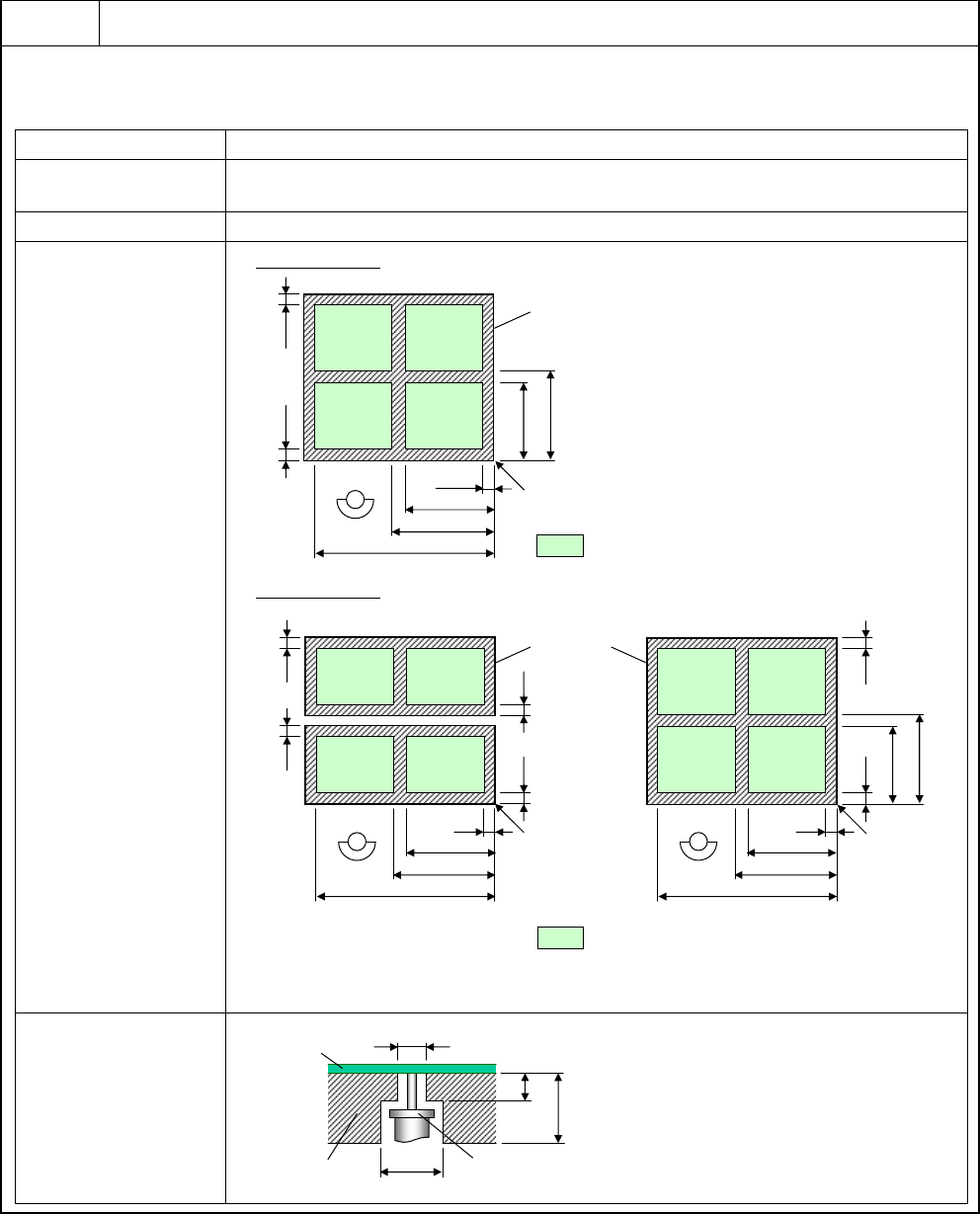
NPM-W2 2014.1216
- 93 -
B-8
希望自动准备支撑销。
进行支撑销的自动更换时,有以下限制条件。
限制条件
项 目 内 容
可配置支撑销的
最小基板尺寸
单轨传送带规格时: L 50 × W 90 mm
双轨传送带规格时: L 50 × W 70 mm
销的配置间距 16 mm 以上(X, Y 方向)
销的配置区域
(左→右流向)
※1
・ 单轨传送带规格
: 可配置销(中心)的范围
※2
・ 双轨传送带规格
: 可配置销(中心)的范围
※2
※1 右→左流向时,上述尺寸为左右对称。
※
2 可配置销(中心)的范围内,不包括图的外形线。
销的配置条件
请按照左边尺寸配置销的位置。
另外,请避开基板的空隙进行配置。
(单位: mm)
基板
支撑销
φ8
6
28
φ15
反面的元件等
基板外形
286
335.5
基准
414.5
735.5
32.5 32.5
264
单轨模式时
双轨模式时
基板外形
21
248.5
21
21 21
21 21
基准
基准
344
406
744
6
268.5
344
406
744
6
14.5